Đăng nhập Đăng ký Bật nhạc nền Bật lời nhắc

Hãy cùng tiên phong với SốngXanh.vn, cộng đồng đầu tiên

tại Việt Nam cổ vũ cho lối sống xanh tiến bộ, nhân văn,

hài hòa giữa con người, thiên nhiên và các thế hệ.

Sống Xanh - Hạnh phúc hơn cho cả Bạn và Thế hệ sau!

 

Thăm lại những ngôi nhà Xanh

09:17 28/12/2011   Surfman 0

SGTT.VN - Với sự tìm tòi của các kiến trúc sư, sự ủng hộ của các chủ nhà, một số căn nhà ở đã được xây dựng với giải pháp của kiến trúc sinh thái như giảm sức nóng bức xạ mặt trời, tăng độ thông thoáng, tái sử dụng nước mưa... Một số trong đó đã được giới thiệu trên KT&ĐS. Trong chuyên đề tết Sống xanh này, phóng viên KT&ĐS thăm lại ba trong số các công trình trên để ghi nhận tồn tại thực tế với ý định muốn “... mách có chứng” về kiến trúc sinh thái. Áp dụng kiến trúc sinh thái có lợi hay hại? Bạn có thể thấy câu trả lời từ thực tế của người sống trong đó.

Nhà trong vườn hồng xiêm

Ngôi nhà nằm bên hồ Tây (Hà Nội) đã được giới thiệu trên KT&ĐS số 6.2007. Công trình có điểm đặc biệt là được xây trong một vườn hồng xiêm (ở phía Nam còn gọi là cây sabôchê) lâu năm có một ngôi nhà thờ tổ của một gia đình. Chính vì vậy quyết định xây ngôi nhà mới mà bảo tồn lại những cái cũ đáp ứng nguyện vọng của chủ nhân đã được KTS Lê Lương Ngọc suy tính kỹ với việc bố trí các khối nhà xen lẫn trong vườn cây giữ lại từng gốc cây gắn bó với gia đình và đưa nhà thờ bằng gỗ vào bên trong lòng ngôi nhà. Nhà được bố trí theo trục dọc làm xương sống nối các khối nhà với nhau. Nhà được làm theo hướng sinh thái, thân thiện với môi trường nên các vấn đề tận dụng nguồn năng lượng tự nhiên được quan tâm giải quyết. Các khối nhà được bố trí so le về vị trí cũng như độ cao, để đón gió từ ngoài hồ Tây vào nhà. Nguồn nước mưa được tận dụng bằng hồ chứa lộ thiên phía trước, vừa là trang trí vừa làm mát cho cả căn nhà. Khi gió thổi qua mặt hồ sẽ đưa hơi nước làm dịu không khí. Các khối nhà cao nằm chỉ bằng với tán cây nên cây cũng che mát cho các khối nhà. Đứng trong nhà luôn có cảm giác mát mẻ vì có màu xanh bao bọc. Ánh sáng được giải quyết bằng các lăng kính gắn ở trên tường đưa ánh sáng trời vào bên trong nhà.

Điều thú vị là ngôi nhà hiện nay lại được một kiến trúc sư người Tây Ban Nha là anh Diego Cortizas thuê để ở. Hai vợ chồng anh đang làm nghề thiết kế ở Hà Nội. Diego Cortizas cho biết: “Tôi yêu ngôi nhà này ngay từ lần đầu tiên đặt chân đến đây. Là một kiến trúc sư đã sống tại Hà Nội bốn năm, tôi luôn tìm kiếm những công trình kiến trúc thực sự kết hợp được những nét truyền thống và hiện đại. Trước khi sang đây, tôi đã từng sống tại Mexico và Brazil, tại đó có những kiến trúc sư như Baragan và Lucio Costa, những người luôn biết cách thực hiện những công trình kiến trúc sinh thái truyền thống trong bối cảnh hiện đại. Với tôi, ngôi nhà này như một ốc đảo giữa Hà Nội. Mỗi không gian trong nhà đều được tính toán để phù hợp với điều kiện thời tiết Hà Nội và đều đạt được sự liên thông cao nhất giữa nội thất và sân vườn. Tóm lại, ngôi nhà đã giải quyết một cách hài hoà mối quan hệ giữa con người với môi trường, giữa những con người sinh sống tại đây. Với tôi, đây là những yếu tố hết sức quan trọng của một công trình sinh thái”.

Các khối nhà xen lẫn vườn hồng xiêm.

 

 

 

Mặt bằng tổng thể



 

Ngôi nhà nhiệt đới

Đây là công trình đoạt giải thưởng kiến trúc TP.HCM 2008 của KTS Trần Thị Ngụ Ngôn và KTS Phan Thanh Hùng đăng trên báo Kiến trúc và Đời sống số 11.2008. Nhà có đặc điểm riêng là được xây trong khu sản xuất thép của gia đình tại Hố Nai (Đồng Nai) nên môi trường có khói bụi, ồn ào và người xe ra vào liên tục. Để giải quyết vấn đề sinh sống ngay trong môi trường đó, KTS Trần Thị Ngụ Ngôn và Phan Thanh Hùng phải giải bài toán của vấn đề bằng cách xây tường có hai lớp, lớp tường xây và lớp khung bao bên ngoài ở phần nhà quay ra hướng xưởng. Ngoài ra, có các hồ nước chạy dọc hai bên nhà để hỗ trợ tạo mát bằng hơi nước nhằm điều hoà không khí. Phần bên hông nhà được xử lý thụt lùi để tạo khoảng cách nhiệt với bên ngoài. Một hàng cây được trồng bên hông để cản bớt nắng và bụi vào trong nhà. Bên trong nhà ở phía hông cũng chừa một khoảng giếng trời chạy dài. Thực tế, đây là nơi làm mát cho căn nhà vì liên tục có luồng gió lùa vào trong.

Chúng tôi quay lại thăm căn nhà vào một ngày nắng gắt cuối năm 2010. Bà Nguyễn Thị Thắng, chủ nhân ngôi nhà vui vẻ tiếp chuyện. Biết mục đích của người ghé thăm, bà tập trung mô tả công dụng chống ồn, chống nóng cũng như sự thông thoáng của ngôi nhà. Bà cho biết, thực tế thì căn nhà dành cho nhiều gia đình khác thế hệ chung sống và cũng là văn phòng làm việc. Tuy ở ngay gần xưởng nhưng nhà không bị nóng và bí. Do hoạt động của lò nấu thép ở gần nên có khi phải đóng kín cửa bên hông hướng ra xưởng. Nhưng không vì thế mà ngôi nhà bị nóng vì phần giếng trời bên trong nhà luôn thông gió cộng thêm hồ nước nằm ngay giếng trời làm mát bên trong nhà. Chỉ khi có thật đông người, nóng bức thì mới cần sử dụng quạt bổ sung.

Bà Thắng hài lòng về cấu trúc và giải thích thêm, do hoàn cảnh làm ăn nên phải ở ngay chỗ sản xuất nhưng nhờ vào thiết kế của ngôi nhà nên gia đình đông người vẫn thấy dễ chịu.

Tường có thêm khung bao bên ngoài.

 

Hồ nước bên hông nhà để giảm nhiệt.

 

Khoảng trống giếng trời làm mát bên trong nhà.

 

Mặt bằng tổng thể

 

Mặt bằng trệt

 

 

Nhà có hai lớp tường

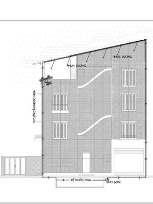
Đây là công trình cách đây 3 năm chúng tôi có dịp giới thiệu trên KT&ĐS số tháng 1&2.2008. Ngôi nhà nằm trong khu dân cư quy hoạch mới ở đường Nguyễn Khánh Toàn (quận Cầu Giấy – Hà Nội). Nhà có phần thô được xây sẵn hàng loạt. Khi mua, chủ nhà muốn cải tạo lại cho mát mẻ, thông thoáng và tiết kiệm được về điện và nước. KTS Lê Lương Ngọc đã tìm một số giải pháp để cải tạo căn nhà, cải thiện môi trường không khí và nhiệt độ để có thể sống trong nhà dễ chịu, thoải mái. Bên cạnh đó là giải pháp tiết kiệm năng lượng cho căn nhà.

 

Nhà được bao bọc bên ngoài kết hợp cửa sổ tạo thông thoáng

Nhà nằm ở góc đường nên có hai mặt tiền với hướng tây bắc và tây nam là hướng mặt trời chiếu rọi thẳng cả mùa đông lẫn mùa hè. Vấn đề lớn của căn nhà này là chống nóng cho toàn bộ với giá thành vừa phải. Giải pháp kiến trúc sư đưa ra là làm thêm một lớp che bên ngoài (double skin). Nói nôm na là khoác cho ngôi nhà một lớp áo nữa, nhằm không cho nắng chiếu trực tiếp vào tường để giảm nhiệt. Bên ngoài ngôi nhà được bọc trong các tấm prima, giữa lớp bên ngoài và tường chính của ngôi nhà một khoảng cách. Chính khoảng trống đệm giữa hai lớp này làm cho gió lưu thông và làm mát tường. Điều này khiến cho căn nhà không phải dùng máy lạnh nhiều do nhiệt độ trong nhà bị tăng cao bởi bức xạ mặt trời.

Bên trong nhà thiết kế một giếng trời nhỏ làm nơi không khí luân chuyển. Các cửa sổ được mở bằng những cánh dọc dài hẹp, chạy sát sàn nhà. Các cánh cửa khi mở ra như những cánh đón gió. Gió từ cửa sổ chạy qua giếng trời và các cửa sổ tạo luồng khí mát trong nhà. Đây là một cách tận dụng gió tự nhiên. Nước mưa được đưa vào sử dụng cho một số việc thích hợp nhằm tiết kiệm nước sạch bằng hệ thống thu nước mưa vào một bể chứa dưới nền nhà. Nước được bơm theo ống dẫn lên cao vào ngày nóng nực để phun sương giữa hai lớp bọc làm mát căn nhà.

Sau ba năm, chúng tôi gặp lại chủ nhà để tham quan và tìm hiểu xem chủ nhà trải nghiệm gì về ngôi nhà của mình. Anh Nguyễn Quốc Huy, chủ nhà cho biết: “Mặc dù nhà nằm hướng tây nam và tây bắc, bị nung nóng toàn bộ buổi chiều. Nhưng nhờ hai lớp tường đặc biệt, vào ban ngày, không khí trong nhà vẫn dễ chịu. Đến tối, nhà nguội đi rất nhanh theo nhiệt độ ngoài trời (không giống như ngôi nhà cũ của chúng tôi, vào những ngày nắng nóng bị oi bức đến tận 4 – 5 giờ sáng). Vì vậy, chúng tôi chỉ còn phải sử dụng máy lạnh 4 – 5 ngày trong cả mùa hè”.

 

Lớp bao bọc bên ngoài như lớp áo khoác cho ngôi nhà.

 

Ngôi nhà thoáng sáng nhờ xử lý kỹ thuật.

 

 

Sơ đồ tận dụng nước mưa

 

Mặt bằng phân tích hướng gió

 

Bản vẽ đường đi của gió

 

Mặt bằng phân tích hướng nắng

 

Toàn cảnh ngôi nhà. Giếng trời bên trong nhà.

 

Bài và ảnh Thu thuỷ - Sài Gòn Tiếp Thị Online



     Gửi bạn bè    Chia sẻ      In
Surfman TV đặc biệt   |   Bài gửi : 33   |   Bài hay: 75   |   Điểm : 1290  
bài HAY nhớ LIKE ngay bạn nhé! 0
nicekiwi
TV mới
Bài gửi : 0
Cảm ơn : 0
Xếp hạng :
Điểm : 30
22:20 06/01/2012

Cám ơn bạn!



Be a nice kiwi!

phản hồi   0 nội dung xấu
Surfman
TV đặc biệt
Bài gửi : 33
Cảm ơn : 75
Xếp hạng :
Điểm : 1290
10:02 28/12/2011

Tìm được một bài viết "cũ người mới ta", đưa lên đây chia sẻ với mọi người nhé. Ước gì mình được sống trong ngôi nhà này nhỉ


phản hồi   0 nội dung xấu

Nội dung phản hồi


Nhập mã bảo vệ Refresh

Lịch sự kiện

templates/web_tin/lichsukien.html
Diễn đàn Thanh niên Việt Nam và phát triển bền vững 2015
Diễn đàn Thanh niên Việt Nam và phát triển bền vững 2015

Bạn có muốn tạo ra những đổi thay tích cực trước sự nóng lên của Trái đất? Nếu câu trả lời là CÓ, hãy tham gia Diễn đàn Thanh niên Việt Nam và phát triển bền vững 2015

Kêu gọi Đề xuất dự án - Vòng tài trợ Cộng đồng Rút Ngắn Khoảng Cách 2014: Tiếp cận Giáo dục
Kêu gọi Đề xuất dự án - Vòng tài trợ Cộng đồng Rút Ngắn Khoảng Cách 2014: Tiếp cận Giáo dục

Trung tâm Hỗ trợ Phát triển Cộng đồng LIN kêu gọi đề xuất dự án từ các tổ chức phi lợi nhuận địa phương (NPO) đang làm việc để cải thiện tiếp cận giáo dục cho những nhóm người dễ bị tổn thương tại thành phố Hồ Chí Minh hoặc các tỉnh lân cận. Đây là vòng tài trợ thứ hai của LIN trong năm 2014 và là lần thứ tư của các khoản tài trợ tập trung vào một chủ đề cụ thể.

Không nên ăn gì trước khi tắm biển?
Không nên ăn gì trước khi tắm biển?Hè là mùa của du lịch và những chuyến đi biển. Để kỳ nghỉ mát ở biển trọn vẹn, ngoài bikini, kem chống nắng, mũ nón… bạn cũng cần lưu ý đến những thực phẩm cần tránh dùng trước khi tắm biển.
Cái trống thiếc - tiểu thuyết đoạt giải Nobel
Cái trống thiếc - tiểu thuyết đoạt giải Nobel9h sáng thứ bảy ngày 30/05/2015, tại SALON VĂN HÓA quán CÀ PHÊ THỨ BẢY, Lầu 1,19B Phạm Ngọc Thạch, Quận 3, TPHCM sẽ diễn ra buổi cà phê CÀ PHÊ VĂN HỌC Chủ đề: Giới thiệu tác phẩm văn học của văn hào Đức vừa qua đời (13/04/2015) Gunter Grass: cuốn tiểu thuyết đoạt giải Nobel: CÁI TRỐNG THIẾC. 19h30 tối cùng ngày sẽ diễn ra SALON ĐIỆN ẢNH Chuyên đề: Tháng phim Cannes-Từ tiểu thuyết sang phim. Chiếu phim: DIE BLECHTROMMEL (CÁI TRỐNG THIẾC)
Trở thành đại biểu phiên họp mô phỏng Liên Hợp Quốc
Trở thành đại biểu phiên họp mô phỏng Liên Hợp QuốcChương trình Thanh niên Việt Nam mô phỏng Liên Hợp Quốc - Vietnamese Youth Model United Nations 2015 là một hoạt động thường niên được tổ chức bởi Vietnamese Youth Coorperation Organization nhằm mô phỏng các phiên họp của Liên Hợp Quốc để giúp các bạn trẻ nâng cao nhận thức của các bạn trẻ Việt Nam về các vấn đề quốc tế,
Earth Hour for sustainable future
Earth Hour for sustainable future

Dear All,
Earth Hour started in 2007 in Sydney, Australia when 2.2 million homes and businesses turned their lights off for one hour to make their stand against climate change.

SALON ÂM NHẠC THÍNH PHÒNG
SALON ÂM NHẠC THÍNH PHÒNGBắt đầu từ tháng 5/2015, Cà Phê Thứ Bảy sẽ thực hiện các chương trình âm nhạc miễn phí phụ thu âm nhạc vào 19h30 các tối thứ sáu hàng tuân, và 9h sáng chủ nhật tuần lễ giữa tháng và cuối tháng.
Thử làm “doanh nhân xanh”
Thử làm “doanh nhân xanh”

Lần đầu tiên tại TP.HCM, các bạn trẻ sẽ có cơ hội thử làm “doanh nhân xanh” trong ngày hội “Greens - hành trình doanh nhân xanh” tại Cung văn hóa Lao Động, TP.HCM (55B Nguyễn Thị Minh Khai, Q.1) ngày 15-5.

TRỒNG CÂY GÂY…Ý THỨC XANH CHO THIẾU NHI
TRỒNG CÂY GÂY…Ý THỨC XANH CHO THIẾU NHI

Sáng ngày 25/05/2011, nhóm Dự án Tương lai xanh của bé GFOC đã triển khai chương trình cho ngày thứ hai với chủ đề “Ngày hội trồng cây” trong chuỗi “Ngày hội xanh 2”. Đúng như tên gọi của mình, ngày hội thực sự là ngày dành riêng cho các em học sinh trực tiếp tham gia vào việc trồng cây, nâng cao ý thức bảo vệ môi trường.

NÔ NỨC NGÀY HỘI “NGÔI NHÀ XANH CỦA EM”
NÔ NỨC NGÀY HỘI “NGÔI NHÀ XANH CỦA EM”

Sáng ngày 24/05/2011, tại Trường tiểu học Hanh Thông (5 Lê Lợi, Gò Vấp, P.4, Tp.HCM), chương trình Ngày hội vẽ tranh “Ngôi nhà xanh của em” nằm trong chuỗi “Ngày hội xanh 02” của nhóm Dự án Tương lai xanh của bé GFOC (Green Future Of Children), được tài trợ bởi Diễn đàn Sống xanh (songxanh.vn), Diễn đàn Tuổi trẻ Việt Nam VYF  và hỗ trợ mạng lưới 350VYP (Vietnam Youth Project) đã thu hút hơn 50 các em nhỏ tham gia.

Nhân Ngày Thế giới Không thuốc lá 31/5: Bảo vệ các thế hệ khỏi nguy cơ do hậu quả thuốc lá
Nhân Ngày Thế giới Không thuốc lá 31/5: Bảo vệ các thế hệ khỏi nguy cơ do hậu quả thuốc lá

Ngày thế giới không thuốc lá được chọn vào ngày 31-5 hàng năm. Năm 1987, các thành viên của Tổ chức Y tế Thế giới đã đề ra Ngày Thế giới không Thuốc lá nhằm thu hút sự chú ý của tất cả mọi người đến nạn dịch thuốc lá và các bệnh tật, sự chết có thể phòng ngừa do thuốc lá gây ra.

Ngày Môi trường thế giới 5-6-2011
Ngày Môi trường thế giới 5-6-2011

Ngày Môi trường thế giới (WED) là một sự kiện thường niên về môi trường được tổ chức rộng rãi trên khắp toàn cầu. Các hoạt động hưởng ứng WED diễn ra quanh năm nhưng lên đến cao trào vào ngày 05 tháng 6, thu hút đông đảo mọi người tham gia.

Lễ phát động chương trình Hỗ trợ Doanh nhân Xã hội 2011
Lễ phát động chương trình Hỗ trợ Doanh nhân Xã hội 2011

Dường như đã thành thông lệ, hai ngày đầu tháng 6 hàng năm, 01/06 và 03/06 đã trở thành ngày hội của các doanh nhân xã hội tại Hà Nội và tại TP Hồ Chí Minh.

THIỆN NGUYỆN - Mổ Mắt Miễn Phí cho Bà Con nghèo Bạc Liêu.
THIỆN NGUYỆN - Mổ Mắt Miễn Phí cho Bà Con nghèo Bạc Liêu.

Anh Chị Em thân mến, Đã lâu lắm rồi mình chưa tổ chức một chuyến từ thiện nào...

ENERTEC EXPO 2011 thúc đẩy tiết kiệm năng lượng
ENERTEC EXPO 2011 thúc đẩy tiết kiệm năng lượng

Sẽ có trên 200 công ty trong và ngoài nước tham gia trưng bày, giới thiệu các giải pháp, sản phẩm tiết kiệm năng lượng, năng lượng xanh tại Hội chợ Triển lãm quốc tế công nghệ sản phẩm tiết kiệm năng lượng và năng lượng xanh 2011 – ENERTEC EXPO 2011.

Hội thảo - triển lãm giải pháp xanh
Hội thảo - triển lãm giải pháp xanh

Phòng Thương mại châu Âu tại Việt nam (EuroCham) dự đoán sẽ có hơn 100 doanh nghiệp châu Âu giới thiệu các giải pháp, công nghệ giúp giảm thiểu tác động của hoạt động sản xuất, kinh doanh đến môi trường tại hội thảo và triển lãm về những giải pháp kinh doanh xanh của châu Âu lần thứ hai (GreenBiz 2011), diễn ra vào ngày 15 và 16-9 tại TPHCM.

ENCON Expo 2011 sẽ diễn ra vào tháng 10
ENCON Expo 2011 sẽ diễn ra vào tháng 10

Từ ngày 13-16/10/2011 tại TP.HCM sẽ diễn ra Hội chợ triển lãm sản phẩm hiệu quả năng lượng và năng lượng tái tạo lần III năm 2011 (ENCON Expo 2011).

CUỘC THI SÁNG TẠO TIẾT KIỆM NĂNG LƯỢNG NĂM 2011
CUỘC THI SÁNG TẠO TIẾT KIỆM NĂNG LƯỢNG NĂM 2011

Trung tâm phát triển khoa học và công nghệ trẻ - Thành đoàn TP.HCM vừa phát động cuộc thi “SÁNG TẠO TIẾT KIỆM NĂNG LƯỢNG NĂM 2011”

Vết chân tròn trên cát
Vết chân tròn trên cát

Hướng về các Thương binh Liệt sỹ trong ngày 27/7, trân trọng giới thiệu với các bạn bài hát “Vết chân tròn trên cát” cuả Nhạc sĩ Trần Tiến. Bài hát này nằm trong Tuyển tập bài hát Sống Xanh của diễn đàn songxanh.vn

Lần đầu tiên Việt Nam tổ chức ngày quốc tế Hổ
Lần đầu tiên Việt Nam tổ chức ngày quốc tế Hổ

Ngày quốc tế về Hổ sẽ lần đầu tiên diễn ra tại Hà Nội ngày mai, nhằm nâng cao nhận thức về việc bảo vệ loài vật đang bên bờ tuyệt chủng này.

Chuẩn bị cho “Ngày hành tinh chuyển động”
Chuẩn bị cho “Ngày hành tinh chuyển động”

Chiến dịch 350.org năm 2011 - chiến dịch chống biến đổi khí hậu được xem là có sức lan tỏa lớn nhất hành tinh - sẽ đến thời điểm quan trọng nhất với ngày 24-9 - “Ngày hành tinh chuyển động” (Moving planet day).

Thư mời tham dự gặp gỡ giao lưu thành viên các dự án xã hội ở miền Nam ngày 22/10/2011 tại TpHCM
Thư mời tham dự gặp gỡ giao lưu thành viên các dự án xã hội ở miền Nam ngày 22/10/2011 tại TpHCM

(SốngXanh.vn) - Thư mời tham dự gặp gỡ giao lưu thành viên các dự án xã hội ở miền Nam vào thứ Bảy ngày 22/10/2011 tại TpHCM

Giải thưởng Sankalp 2012
Giải thưởng Sankalp 2012

Trung tâm Hỗ trợ Sáng kiến và Phục vụ Cộng đồng (CSIP) và Diễn đàn Sankalp tìm kiếm ứng cử viên cho giải thưởng Sankalp 2012.

Trăm năm mới có 1 ngày: 11-11-11
Trăm năm mới có 1 ngày: 11-11-11

Thứ sáu tuần này, vào lúc 11 giờ 11 phút 11 giây, ngày và giờ sẽ hình thành một dãy số đọc xuôi ngược đều như nhau, đó là 11:11:11 ngày 11-11-11.

Chương trình ra mắt thành viên và team buiding của Mạng Xã hội Sống Xanh
Chương trình ra mắt thành viên và team buiding của Mạng Xã hội Sống Xanh

(SốngXanh.vn) - Ngày 26-11-2011 tới, tại TpHCM, Mạng Xã hội Sống Xanh sẽ tổ chức chương trình ra mắt thành viên và teambuiding lần 1

Khởi động dự án "Kết nối và hỗ trợ doanh nghiệp"
Khởi động dự án \

Từ ngày 20/11/2011, dự án Kết nối và Hỗ trợ doanh nghiệp vừa và nhỏ 2011 (SME networking and mentoring program 2011) sẽ chính thức khởi động dưới sự bảo trợ của Đại sứ quán Hoa Kỳ tại Việt Nam. Đây là một trong 38 dự án trên toàn thế giới được Bộ Ngoại giao Hoa Kỳ chọn hỗ trợ tài chính. Dự án do nhóm học giả, sinh viên các chương trình học bổng Fulbright, Humprey, International Visitor Leadership Program thực hiện.

Cuộc thi Kế hoạch Kinh doanh 2012 của tổ chức Social Impact Exchange
Cuộc thi Kế hoạch Kinh doanh 2012 của tổ chức Social Impact Exchange

Ngày 9 tháng 12 – Hạn cuối tham gia Cuộc thi Kế hoạch Kinh doanh 2012 của tổ chức Social Impact Exchange

MANG MÙA ĐÔNG ẤM ÁP VỀ VỚI ĐỒNG BÀO GIA RÒONG
MANG MÙA ĐÔNG ẤM ÁP VỀ VỚI ĐỒNG BÀO GIA RÒONG

Mùa đông đang tràn về mang theo cái lạnh buốt và bao nỗi trở trăn, lo toan của đồng bào vùng cao. Nơi mà những căn nhà lụp xụp xiêu vẹo khó chống chọi được với bão giông, nơi mà quần áo, chăn mền ấm cúng hay bữa cơm đạm bạc cũng là một ước mơ không nhỏ của người dân để có thể bình an đi qua một mùa đông giá.

Thông tin về buổi vận động thu âm tại Hà Nội & Hồ Chí Minh
Thông tin về buổi vận động thu âm tại Hà Nội & Hồ Chí Minh

Cuối tuần này, Thứ 7 & Chủ Nhật, Thích Đọc Sách sẽ tổ chức các buổi vận động tại 2 đầu cầu Hà Nội & HCM, trực tiếp thu âm mọi người. Chúng mình có mang những vật dụng cần thiết để mọi người tham gia: máy ghi âm, poster chương trình, quà tặng bookmark và một số quyển sách tổng hợp được.

Hội thảo khám phá & kết nối Nuôi dưỡng lòng trân quý bản thân
Hội thảo khám phá & kết nối Nuôi dưỡng lòng trân quý bản thân

Trân quý bản thân là chất xúc tác khơi thông dòng chảy tâm hồn, khởi tạo nguồn năng lượng và bồi đắp sức khỏe cho cảm xúc, tư duy và thể chất. Một khi bạn học cách trân quý bản thân, bạn sẽ bước vào một hành trình kết nối thế giới nội tâm. Nơi đó, những cung bậc cảm xúc được hé mở từ tình yêu thương, sự mất mác, cô đơn, đến khát vọng và ước mơ.

HỘI CHỢ TỪ THIỆN - GIÁNG SINH HỒNG - 2011
HỘI CHỢ TỪ THIỆN - GIÁNG SINH HỒNG - 2011

Sắp đến tết là dịp các gia đình thường hay dọn dẹp nhà cửa. Khi ấy thế nào chúng ta cũng phát hiện ra những vật dụng còn mới, còn tốt nhưng không mấy khi dùng đến hay là những đồ đạc “cũ ta mới người”. Vậy tại sao chúng ta không mang ra bán cho nhau để lấy tiền ủng hộ các em nhỏ kém may mắn hơn con chúng ta? Ngoài ra để phục vụ cho nhu cầu vui chơi giải trí của người tham dự, các gian hàng ăn uống, làm đẹp, các tiết mục văn nghệ “cây nhà lá vườn” cũng cần sự hưởng ứng hết mình của thành viên CMT

Đón tết vui và ý nghĩa
Đón tết vui và ý nghĩa

Tết bắt nguồn từ đâu? Vì sao lại có tết? Cái hay của các phong tục tết là gì? Điều gì giúp làm nên không khí tết? Có phải tết ngày nay không còn vui và nhiều ý nghĩa như ngày xưa không? Mọi người đang cảm nhận về ngày tết thế nào? Và làm gì để đón được 1 cái tết vui và ý nghĩa?

Đón Tết với HƯƠNG VỊ TẾT
Đón Tết với HƯƠNG VỊ TẾT

Chỉ còn 3 ngày nữa HƯƠNG VỊ TẾT sẽ khai mạc tại Nhà Vườn LONG THUẬN vào đêm trăng rất đẹp

Đạp xe đi thăm Doanh nghiệp xã hội Thiên Tâm
Đạp xe đi thăm Doanh nghiệp xã hội Thiên Tâm

(SốngXanh.vn) - Sáng thứ 7 này (14/1/2012), Mạng xã hội Sống Xanh tổ chức đạp xe đi thăm Doanh nghiệp xã hội Thiên Tâm, là nơi sản xuất những sản phẩm thảo dược từ thiên nhiên tốt cho sức khỏe, do những người khuyết tật trực tiếp làm ra.

Thành lập CLB Doanh nhân Xã hội miền Nam
Thành lập CLB Doanh nhân Xã hội miền Nam

(SốngXanh.vn) - Ngày 14 tháng 1 vừa qua, Câu lạc bộ Doanh nhân Xã hội miền Nam đã được thành lập theo sáng kiến của Mạng Xã hội Sống Xanh và bảo trợ của Trung tâm Hỗ trợ Sáng kiến Phục vụ Cộng đồng.

Công bằng xã hội
Công bằng xã hội

Thế nào là công bằng xã hội? Làm thế nào và làm gì để thực hiện được công bằng xã hội ngay trong từng bước phát triển? Đó là những vấn đề cần được trao đổi để có nhận thức chung trong quan niệm và giải pháp thực hiện.

ỦNG HỘ CHUYẾN "DU XUÂN GIEO PHƯỚC" ĐẦU NĂM
ỦNG HỘ CHUYẾN \

(SốngXanh.vn) Ở đâu có sự chia sẻ, ở đó có sự yêu thương. Và ở đâu đó xung quanh chúng ta, có thể là rất gần nhưng cũng có thể xa, rất xa, có nhiều cộng đồng người đang rất cần đến tình yêu thương.

Hình ảnh chuyến đi khám chữa bệnh Iarve - Easup - Daklak
Hình ảnh chuyến đi khám chữa bệnh Iarve - Easup - Daklak

Mời các bạn cùng xem một số hình ảnh được ghi lại trong chuyến đi (còn tiếp)

Cuộc thi sáng tác “Trao gửi những yêu thương”
Cuộc thi sáng tác “Trao gửi những yêu thương”

(SốngXanh.vn) Bạn có khả năng viết? Bạn có khả năng sáng tác ảnh hay làm video clip? Bạn muốn viết lên những thông điệp yêu thương bằng ngôn từ, những bức ảnh ý nghĩa hay bằng một đoạn video clip do bản thân tự sáng tạo? Hãy nhanh tay tham gia cuộc thi sáng tác do Mạng xã hội Sống Xanh tổ chức!

TRAO ĐỔI KĨ NĂNG VIẾT “HÃY BẮT ĐẦU TỪ NHỮNG ĐIỀU CƠ BẢN”
TRAO ĐỔI KĨ NĂNG VIẾT “HÃY BẮT ĐẦU TỪ NHỮNG ĐIỀU CƠ BẢN”

(SốngXanh.vn) Bạn thích viết nhưng lại không biết bắt đầu từ đâu? Bạn có nhiều ý tưởng cho những câu chuyện nhưng lại không biết diễn đạt nó như thế nào? Bạn có thông tin nhưng lại không biết xâu chuỗi chúng thành tin hay bài viết như thế nào? Hãy cùng đến và trao đổi kĩ năng viết với MXH Sống Xanh để cùng nhau học hỏi kinh nghiệm và nâng cao khả năng viết.

Chia sẻ về kiến thức thực tiễn sử dụng điện an tòan, tiết kiệm
Chia sẻ về kiến thức thực tiễn sử dụng điện an tòan, tiết kiệm

(SốngXanh.vn) MXH Sống Xanh sẽ tổ chức 1 buổi chia sẻ về kiến thức thực tiễn sử dụng điện an tòan, tiết kiệm vào 9-11h sáng ngày 3/3/2012 với khách mời là 1 chuyên gia đến từ Công ty Điện lực TP.HCM

An toàn hơn, tiết kiệm hơn trong sử dụng điện
An toàn hơn, tiết kiệm hơn trong sử dụng điện

(SốngXanh.vn) Nhằm cổ động thêm cho ngày thực hiện giờ trái đất sắp tới, Mạng Xã hội Sống Xanh đã tổ chức buổi “Chia sẻ kiến thức thực tiễn sử dụng điện an toàn tiết kiệm” tại Hội quán DRD, sáng 3/3. Với sự chia sẻ thông tin cũng như kiến thức của anh Nguyễn Ngọc Tuyến đến từ Tổng Công ty Điện lực Tp.HCM, những thắc mắc về cách sử dụng điện an toàn cũng như phương pháp để tiết kiệm điện có hiệu quả đã được giải đáp cho những người tham gia

Home - cánh cửa về “nhà” của bạn
Home - cánh cửa về “nhà” của bạn

Sáng 11/3, MXH Sống Xanh đã có cuộc offline đầy thú vị. Đón sinh nhật muộn hơn một chút nhưng các thành viên có ngày sinh trong tháng 1, 2, 3 ai cũng thật vui vì một không khí ấm cúng và độ “chơi hết mình, chơi thả ga” cùng các anh chị trong Sống Xanh...

Liên kết để thay đổi!
Liên kết để thay đổi!

Kết nối các doanh nghiệp, chung tay vì cộng đồng, Trung tâm Hỗ trợ Sáng kiến và Phục vụ Cộng đồng (CSIP) cùng các đối tác Trung tâm hỗ trợ phát triển cộng đồng LIN và Câu lạc bộ Doanh nhân Xã hội miền Nam (SSEC) đã tổ chức giao lưu kết nối với chủ đề “Linkage for Change” tại khách sạn Palace (Quận 1, Tp.HCM), chiều 16/3.

HƯỞNG ỨNG GIỜ TRÁI ĐẤT CÙNG MẠNG XÃ HỘI SốngXanh.vn
HƯỞNG ỨNG GIỜ TRÁI ĐẤT CÙNG  MẠNG XÃ HỘI SốngXanh.vn

Đồng hành cùng Giờ Trái Đất 2012, Mạng Xã hội SốngXanh.vn cùng hưởng ứng sự kiện này bằng việc chia sẻ các bài viết trên trang web songxanh.vn về biến đổi khí hậu và các hoạt động liên quan, đồng thời cùng tham gia Đêm sự kiện Giờ Trái Đất tối thứ 7 ngày 31/3/2012 tại Quảng trường Nhà hát Lớn để cùng có một sự kiện ý nghĩa. Mời các bạn đăng ký tham gia Đêm sự kiện với Hồng Liên (đt: 0903 987 347)

Tham gia chương trình “ĐAM MÊ HÀNH ĐỘNG ĐỂ THÀNH CÔNG”
Tham gia chương trình “ĐAM MÊ HÀNH ĐỘNG ĐỂ THÀNH CÔNG”

Với tiêu chí “Thành công bắt đầu từ hành động – Hành động bắt đầu từ trái tim”, Life Creation Training phối hợp cùng trường ĐH Kinh Tế TPHCM và Quỹ Tài Trợ VinaCapital Foundation đồng tổ chức chương trình “Đam mê hành động để thành công”. Chương trình được tổ chức từ 12h30 – 17h30, ngày 31/3/2012, tại Hội trường A.116, trường ĐH Kinh tế TP.HCM...

“ĐỒNG CA NHỎ” ĐẾN HÒA NHỊP VỚI NHỮNG THỢ VẼ NƯỚC
“ĐỒNG CA NHỎ” ĐẾN HÒA NHỊP VỚI NHỮNG THỢ VẼ NƯỚC

Vào 18h00 ngày 22/03/2012, tại NICHE café (66, D3, P.25, Q. Bình Thạnh, Tp. HCM) sẽ diễn ra sự kiện “WATER PAINTERS – Thợ vẽ nước”, nằm trong chiến dịch hưởng ứng Ngày nước Thế giới 22/03/2012, thực hiện bởi Tổ chức Thanh niên Vì tương lai xanh của bé GFOC (Green Future Of Children) lần đầu tiên tại Tp.HCM.

Khai mạc ngày hội của những người yêu sách lần thứ VII
Khai mạc ngày hội của những người yêu sách lần thứ VII

19h30 ngày 19/3, tại công viên Lê Văn Tám, đông đảo bạn đọc yêu sách đã tham gia buổi lễ khai mạc Hội chợ sách 2012 có quy mô lớn nhất cả nước. Lễ hội sách kéo dài suốt tuần từ ngày 19/3 – 25/3 với sự góp mặt của 45 nhà xuất bạn trong và ngoài nước với gần 500 gian hàng. Con số 200 ngàn đầu sách với hơn 20 triệu bản sách trên mọi lĩnh vực cùng 45 chương trình hoạt động, trong đó nổi bật là hoạt động triển lãm sách về Chủ tịch Hồ Chí Minh, triển lãm sách chủ đề biển đảo quê hương, triển lãm tủ sách gia đình,... 

BOM ĐẠN TRÊN ĐẤT HÒA BÌNH
BOM ĐẠN TRÊN ĐẤT HÒA BÌNH

Chỉ riêng trong cuộc chiến với Đế quốc Mỹ, Việt Nam đã chịu khoảng 16 triệu tấn bom mìn. 40 năm hậu chiến, hàng trăm nghìn tấn bom đạn vẫn nằm lại gây ảnh hưởng nặng nề đến tính mạng, đời sống sinh hoạt và kinh tế của người dân trong khu vực nguy hiểm

Kỳ 3: Kỳ vọng Y- Đức
Kỳ 3: Kỳ vọng Y- Đức

Từ ngàn xưa, y đức chính là kim chỉ nam của người làm thuốc. Khi tận tâm, tận lực, thì sẽ không có gì phải hối tiếc, người bệnh cũng vì thế mà yên tâm chữa trị. Nhưng thời nay, có nhiều bác sĩ vì đồng tiền mà thay đổi cái tâm, con sâu bỏ giàu nồi canh. Người dân vẫn phải đi khám bệnh, và luôn kỳ vọng y đức “Hải Thượng Lãn Ông”.

Những căn bệnh mang tên thế kỷ
Những căn bệnh mang tên thế kỷ

Trước kia và bây giờ, HIV hay H5N1 hay ung thư luôn là những căn bệnh mà mỗi khi nhắc tới tên đều khiến nhiều người sợ. Đây là những căn bệnh chưa tìm ra được phương thuốc đặc trị nhưng với những tiến bộ của y khoa cũng đã tìm ra cách khắc chế hiệu quả.

Nhóm Hành động Vì Môi trường Đồng bằng Kêu gọi tài trợ dự án
Nhóm Hành động Vì Môi trường Đồng bằng Kêu gọi tài trợ dự án

Chúng ta đều biết việc bảo vệ môi trường là một nhân tố không thể thiếu đối với cuộc sống của con người. Tiếc rằng môi trường ngày nay không những bị ô nhiễm một cách nặng nề, nguồn nước sạch cũng thiếu một cách trầm trọng, rác thải không được thu gom đúng cách, tình hình Biến đổi khí hậu diễn biến khó lường và ảnh hưởng nặng nề đến đời sống cộng đồng, đặc biệt là khu vực Đồng bằng sông Cửu Long.

Tiệc sinh nhật thành viên tháng 4
Tiệc sinh nhật thành viên tháng 4

Nhiệt liệt chúc mừng các bạn có sinh nhật trong tháng 4!

BẢO TỒN GIÁ TRỊ DI SẢN VĂN HÓA DÂN TỘC
BẢO TỒN GIÁ TRỊ DI SẢN VĂN HÓA DÂN TỘC

Song song với sự phát triển của nhân loại, những giá trị mang tính lịch sử của dân tộc cũng được trân trọng lưu giữ và phát triển trong hệ ý thức của con người. Tùy theo mỗi dân tộc, mỗi giá trị ấy lại chứa đựng những ý nghĩa vô cùng thiêng liêng. Di sản văn hóa của dân tộc được công nhận là di sản thế giới là niềm tự hào và hãnh diện lớn lao của mỗi quốc gia. Tuy nhiên, trong bối cảnh hiện tại, làm sao để giữ gìn được giá trị nguyên gốc của các di sản văn hóa dân tộc?

Ngày hội Tái chế chất thải TP.HCM lần thứ 5 - năm 2012: “3T trong sử dụng bao bì ”
Ngày hội Tái chế chất thải TP.HCM lần thứ 5 - năm 2012: “3T trong sử dụng bao bì ”

(TN&MT) - Với mong muốn phát huy những kết quả của các năm trước (từ năm 2008 - 2011), Sở TN&MT TP.HCM sẽ tiếp tục tổ chức sự kiện "Ngày hội Tái chế chất thải TP.HCM lần 5 - năm 2012" với chủ đề "3T trong sử dụng bao bì". Ngày hội sẽ diễn ra từ 8h00 - 17h00 ngày 15/4/2012 tại Cung Văn hóa Lao động, số 55 Nguyễn Thị Minh Khai, Quận 1.

Thạc sĩ Võ Thị Hoàng Yến- Không chỉ là một tên gọi
Thạc sĩ Võ Thị Hoàng Yến- Không chỉ là một tên gọi

Nhiều người coi chị là người chị, người thân đăc biệt của mình. Với những người khuyết tật chị là niềm tin, là mục đích sống để họ vươn lên. Đó là một gương mặt không chỉ có trong tay hai bằng đại học mà còn “săn” được học bổng chương trình đào tạo thạc sĩ tại Hoa Kỳ.

Cùng tới ĐH Kinh tế TP.HCM tham gia hội sách nào!
Cùng tới ĐH Kinh tế TP.HCM tham gia hội sách nào!

Với chủ đề “Sách kinh điển & sinh viên thời hội nhập”, trường ĐH Kinh tế TP.HCM tổ chức một loạt các chương trình về sách hưởng ứng ngày Sách và Bản quyền thế giới (23/4). Bao gồm các hoạt động: triển lãm sách, trao đổi sách và hội thảo “Sách kinh điển & sinh viên thời hội nhập”. Các bạn cùng Sống Xanh tham gia nhé!

Bản quyền sách- cuộc chiến không cân sức
Bản quyền sách- cuộc chiến không cân sức

 Nhiều người nghĩ rằng việc giá rẻ chính là lý do khiến sách lậu “sống được”, nhưng đó cũng chỉ là một phần rất nhỏ trong vô vàn lỗi khác xung quanh chuyện in ấn sách tại nước ta. Không thể phủ nhận rằng từ lâu, sách lậu đã trở thành một vấn nạn thật sự với ngành xuất bản VN khi mà từ tiểu thuyết, sách kiến thức và thậm chí cả truyện tranh đều bị in lậu và bày bán công khai, ngay cả trong nội thành sầm uất ở các thành phố lớn Hà Nội và TP HCM...

Tết sách cho bạn tại NVH Sinh viên
Tết sách cho bạn tại NVH Sinh viên

Nhân ngày Sách và bản quyền thế giới (23/4), Thái Hà Books tổ chức rất nhiều hoạt động và ưu đãi giảm giá sách cho các bạn học sinh, sinh viên từ 8h – 19h các ngày 21, 22, 23/4. Cùng đến NVH Sinh viên để chung vui Tết sách các bạn nhé!

Tinh giản cuộc sống bằng phiên chợ “Cuộc sống giản đơn”
Tinh giản cuộc sống bằng phiên chợ “Cuộc sống giản đơn”

Phiên chợ “Cuộc sống giản đơn” do Friends of Initiatives of Change (F.I.C) tổ chức là nơi giúp bạn tinh giản cuộc sống của mình bằng cách bày bán những vật dụng không cần thiết và nhận lại những vật dụng của người khác. Cuộc sống sẽ trở nên đơn giản hơn khi người khác có thể tận dụng những món hàng bạn không còn dùng đến và ngược lại. Đó cũng là một cách để bạn bảo vệ môi trường, tiết kiệm năng lượng.

Việt Nam – ô nhiễm và suy thoái nước!
Việt Nam – ô nhiễm và suy thoái nước!

Theo đánh giá của Ngân hàng Thế giới, Việt Nam không phải là quốc gia mạnh về tài nguyên nước bởi hơn 60% lượng nước bề mặt ở Việt Nam có nguồn gốc từ các nước khác. Dù Chính phủ Việt Namđã có nhiều nỗ lực nhưng khoảng một nửa dân số Việt Nam vẫn chưa có đủ nước sinh hoạt. Những vấn đề nảy sinh từ biến đổi khí hậu cũng tác động đến tài nguyên nước Việt Nam.

Rio +20: Tương lai chúng ta mong muốn!
Rio +20: Tương lai chúng ta mong muốn!

 Mời các bạn cùng tham cuộc thi The Future we want- Tương lai chúng ta mong muốn bằng cách thể hiện những thông điệp về một lối sống lành mạnh để bảo vệ môi trường qua video clip, sáng tác truyện, thơ, bài hát...

“Ngày hội Bình Dương xanh - 2012”
“Ngày hội Bình Dương xanh - 2012”

Các bạn trẻ thân mến ! Hòa trong không khí Ngày môi trường Thế giới 05/06, bạn đã chuẩn bị những gì ? Bạn có muốn chính bạn sẽ là tác nhân thay đổi môi trường theo chính cách mà bạn suy nghĩ bấy lâu nay ? Bạn có muốn tham gia vào Ngày hội cùng hơn 1000 bạn trẻ khác sống trong một không gian cực kì “xanh” tại công viên VH Thanh Lễ ?

Thông điệp gì cho Ngày Sốt rét thế giới năm 2012?
Thông điệp gì cho Ngày Sốt rét thế giới năm 2012?

Tổ chức Y tế Thế giới (WHO) đã quyết định bắt đầu từ năm 2007 lấy ngày 25 tháng 4 hàng năm làm Ngày Sốt rét thế giới (World Malaria Day). Chủ đề của Ngày Thế giới phòng chống sốt rét đầu tiên: “Sốt rét là một bệnh không biên giới”. Năm nay thông điệp chính là: “Giữ vững thành quả, cứu lấy mạng sống, đầu tư cho sốt rét”.

Đón xem pháo bông nhân dịp lễ 30/4 – 1/5
Đón xem pháo bông nhân dịp lễ 30/4 – 1/5

Theo thông báo của Ủy ban nhân dân TP.HCM, vào lúc 21 giờ đến 21 giời 15 phút ngày 30/4, thành phố sẽ tổ chức bắn pháo hoa tầm thấp tại 2 điểm: phường Thủ Thiêm (Quận 2) và Công viên Văn hóa Đầm Sen (Quận 11). Hoạt động này nhằm chào mừng kỷ niệm 37 năm Ngày Giải phóng hoàn toàn miềnNam, thống nhất đất nước (30/4/1975 – 30/4/2012) và 126 năm Ngày Quốc tế Lao động (1/5/1886 – 1/5/2012).

Tuần lễ Quốc gia nước sạch - vệ sinh môi trường
Tuần lễ Quốc gia nước sạch - vệ sinh môi trường

Tuần lễ Quốc gia nước sạch và vệ sinh môi trường do Thủ tướng Chính phủ phát động hàng năm đã trở thành hoạt động truyền thống nhằm quản lý sử dụng nguồn nước sạch, bảo vệ chất lượng môi trường sống xã hội.

Những điểm thú vị về ngày Quốc tế Lao động 1/5
Những điểm thú vị về ngày Quốc tế Lao động 1/5

Quốc tế lao động 1/5 là ngày lễ lớn không chỉ riêng đối với nước ta mà còn là ngày lễ lớn của nhiều quốc gia trên thế giới. Đây là ngày lễ để nhằm tôn vinh lao động và xây dựng sự đoàn kết lao động thế giới. Tuy nhiên không phải tất cả các quốc gia đều chọn ngày 1-5 hằng năm làm Ngày lao động của nước mình và mỗi nước cũng có những cách tổ chức đặc trưng riêng.

TÁCH! TÁCH! TẠCH! TẠCH! TÁCH! TÁCH! GFOC TUYỂN CTV CHO GALA "TÁCH! TÁCH! CẤT CHAI"
TÁCH! TÁCH! TẠCH! TẠCH! TÁCH! TÁCH! GFOC TUYỂN CTV CHO GALA \

Tách! Tách! ... Cậu đã chuẩn bị gì cho mùa hè này? Tách! Tách! ... Cậu đang rục rịch lên kế hoạch tham gia các hoạt động vì cộng đồng? Tách! Tách! ... Cậu yêu môi trường và cực yêu con nít? Tách! Tách! … Cậu còn chờ gì nữa mà không tham gia cộng tác cùng chúng tớ trong chương trình lớn nhất từ trước đến giờ của GFOC

Tuổi trẻ cùng hành động- Thông điệp của tương lai
Tuổi trẻ cùng hành động- Thông điệp của tương lai

Chủ đề của Ngày Chữ thập đỏ và Trăng lưỡi liềm đỏ quốc tế (8/5) năm nay là: “Tuổi trẻ cùng hành động: Làm nhiều hơn - Làm tốt hơn - Vươn xa hơn”. Thông điệp nhấn mạnh cam kết: Tuổi trẻ cùng hành động: Làm nhiều hơn - Làm tốt hơn - Vươn xa hơn, nhằm giúp đỡ những người dễ bị tổn thương trong cộng đồng. Với cam kết đó, thanh niên Chữ thập đỏ, Trăng lưỡi liềm đỏ trên toàn thế giới đang nỗ lực thực hiện sứ mệnh của mình, góp phần cải thiện cuộc sống của những người kém may mắn.

Thư mời SE Cafe - Cafe Doanh nhân Xã hội tháng 5
Thư mời SE Cafe - Cafe Doanh nhân Xã hội tháng 5

SE Cafe- Cafe Doanh nhân xã hội Nơi gặp gỡ - giao lưu giữa các cá nhân và tổ chức quan tâm sâu sắc đến các thách thức xã hội, nhằm tạo điều kiện chia sẻ - học hỏi kinh nghiệm và trao cơ hội kết nối hợp tác phát triển.

Nghệ thuật Ứng dụng lần đầu được giới thiệu tại TP HCM
Nghệ thuật Ứng dụng lần đầu được giới thiệu tại TP HCM

Từ ngày 12 đến ngày 14 tháng 5 tại thành phố Hồ Chí Minh, lần đầu tiên một chuỗi 05 hội thảo chuyên sâu về nghệ thuật phát triển con người dành cho nhiều đối tượng khác nhau bao gồm thanh niên, nghệ sỹ, doanh nhân, những nhà hoạt động xã hội và những chuyên gia tâm lý học sẽ được tổ chức.

Món quà yêu thương nhân Ngày Của Mẹ
Món quà yêu thương nhân Ngày Của Mẹ

Ngày chủ nhật thứ nhì của tháng 5 hàng năm là Ngày Của Mẹ. Năm nay, Ngày Của Mẹ rơi vào ngày 13/5, các bạn đã vắt óc suy nghĩ món quà ý nghĩa nhất tặng mẹ chưa nào? Sống Xanh đưa ra cho bạn một vài gợi ý thú vị đây!

Chương trình chiếu phim tháng 5 - CLB Sách DRD
Chương trình chiếu phim tháng 5 - CLB Sách DRD

Tình mẹ yêu con vô bờ bến đến như thế nào trong từng hoàn cảnh? Và đứa con được đặt ở đâu khi cha mẹ không thể đồng hành tiếp tục…

Tiệc sinh nhật thành viên tháng 5
Tiệc sinh nhật thành viên tháng 5

Xin chúc mừng các bạn có sinh nhật trong tháng 5!

Khởi động chiến dịch Tiêu dùng Sản phẩm Xanh 2012
Khởi động chiến dịch Tiêu dùng Sản phẩm Xanh 2012

Hôm nay, hơn 700 người dân cùng đông đảo tình nguyện viên đã cùng tham gia Ngày hội Người tiêu dùng hướng đến sản phẩm của doanh nghiệp thực hiện tốt công tác bảo vệ môi trường tại khuôn viên chung cư Đào Duy Từ (hẻm 51 đường Thành Thái, quận 10). Đây là hoạt động mở màn cho chiến dịch thường niên Tiêu dùng Sản phẩm Xanh lần 3-2012.

Ngày Tết Thiếu Nhi xứ Ràng
Ngày Tết Thiếu Nhi xứ Ràng

Đối với các trẻ em nghèo tại Ấp Ràng, Củ Chi, ngày Quốc tế thiếu nhi có trở thành niềm mong chờ của các em không khi mà cảnh sống đầy khó khăn, thiếu thốn đã bao trùm lên tuổi thơ của các em

Chương trình ươm tạo Doanh nghiệp Xã hội 2012
Chương trình ươm tạo Doanh nghiệp Xã hội 2012

Trung tâm Hỗ trợ Sáng kiến Phục vụ Cộng đồng (CSIP) trân trọng mời các dự án, tổ chức, doanh nghiệp xã hội đang quan tâm và góp phần giải quyết các vấn đề xã hội, môi trường tại Việt Nam tham gia: Chương trình Ươm tạo Doanh nghiệp xã hội 2012 - Cung cấp hỗ trợ tài chính và Tư vấn phát triển Doanh nghiệp xã hội.

HỒI HỘP GALA XANH "TÁCH! TÁCH! CẤT CHAI"
HỒI HỘP GALA XANH \
ngày hội xanh “Tách! Tách! cất chai”
ngày hội xanh “Tách! Tách! cất chai”

Tim vui khi thấy em cười Sáng 3.6 vừa qua, Tổ chức Thanh niên vì Tương lai xanh của Bé GFOC (Green Future Of Children) đã tổ chức ngày hội xanh “Tách! Tách! cất chai” để hưởng ứng ngày môi trường thế giới tại trường tiểu học Đống Đa (Tân Bình).

TpHCM, ngày 04/06/2012 BUỔI TIỆC Ý THỨC XÃ HỘI
TpHCM, ngày 04/06/2012 BUỔI TIỆC Ý THỨC XÃ HỘI

Đại học Houston sẽ tổ chức Buổi tiệc Ý thức Xã hội(**) tại Nhà hàng KOTO Sài Gòn cho các cá nhân quan tâm đến cộng đồng của thành phố. Sự kiện này, diễn ra từ 7-9 giờ tối ngày 10/6, sẽ là dịp cho nhân viên các công ty, tổ chức và sinh viên gặp gỡ, không chỉ để tìm hiểu về tình trạng người nghèo ở Việt Nam, mà còn học hỏi về di sản âm nhạc dân tộc, và quan trọng hơn cả là lắng nghe cách mọi người có thể giúp cộng đồng người nghèo tìm thấy sự tự tin, khám phá khả năng kinh doanh khởi nghiệp của họ

Ngày hội Doanh nghiệp Xã hội Á – Âu tại Việt Nam
Ngày hội Doanh nghiệp Xã hội Á – Âu tại Việt Nam

Hội đồng Anh, Phòng Thương mại và Công nghiệp Việt Nam (VCCI), Quỹ Á-Âu (ACEF), Trung tâm Hỗ trợ Sáng kiến Phục vụ Cộng đồng (CSIP) và Trung tâm Phát triển Doanh nghiệp Xã hội Tia Sáng (Trung tâm Tia Sáng) cùng phối hợp tổ chức

HÃY ĐẾN VỚI DYNAMIC SPACE - KHÔNG GIAN BÙNG NỔ
HÃY ĐẾN VỚI DYNAMIC SPACE - KHÔNG GIAN BÙNG NỔ

• 50s’ Fair - Giản dị với Âm nhạc đường phố - Bạn có muốn nghe? • 50s’ Fair - Đương đại cùng Bói bài Tarot và MBTI – Bạn có muốn phán? • 50s’ Fair - Sành điệu trao đổi đồ cũ – Mottainai – Bạn có muốn bán? • 50s’ Fair - Vintage cùng Casting Model – Bạn có muốn mặc? • 50s’ Fair - Thời bao cấp – Tư vấn việc làm – Bạn có muốn làm? • 50s’ Fair - Độc đáo cùng các gian hàng – Bạn có muốn mua?

Thư mời SE Cafe - Cafe Doanh nhân Xã hội tháng 6
Thư mời SE Cafe - Cafe Doanh nhân Xã hội tháng 6

SE Cafe- Cafe Doanh nhân xã hội Nơi gặp gỡ - giao lưu giữa các cá nhân và tổ chức quan tâm sâu sắc đến các thách thức xã hội, nhằm tạo điều kiện chia sẻ - học hỏi kinh nghiệm và trao cơ hội kết nối hợp tác phát triển.

TP.HCM 23/6: CHƯƠNG TRÌNH “CUỘC ĐỜI VÀ NHỮNG CHUYẾN ĐI”
TP.HCM 23/6: CHƯƠNG TRÌNH “CUỘC ĐỜI VÀ NHỮNG CHUYẾN ĐI”

Mời bạn tham gia chương trình với sự có mặt của khách mời đặc biệt là bạn Huyền Chíp, cô gái 20 tuổi đi khắp thế gian với 700 USD.

Update: Giờ trà chiều
Update: Giờ trà chiều

Chương trình Giờ trà chiều sẽ được tổ chức từ 14g – 17g ngày 28.7, tại cafe Phố, 116 Nguyễn Du, Quận 1, TP. Hồ Chí Minh

Vào bếp - Làm từ thiện cuối tuần
Vào bếp - Làm từ thiện cuối tuần

Gần 4 triệu đồng được Sống Xanh quyên góp tại Giờ trà chiều lần 1 sẽ được quyên tặng cho bếp ăn từ thiện Bình Hòa. Chương trình sẽ bao gồm quyên tặng tiền và phụ việc chợ búa, bếp núc vào sáng thứ 7 ngày 18.8 tới đây.

Chương trình SE cafe tháng 8
Chương trình SE cafe tháng 8

Thời gian 9-11h | Chủ Nhật ngày 26/08/2012 Địa điểm : Cafe SAMBA | 19B Mai Thị Lựu, P Đa Kao Q1. Lầu 2 Chủ đề: Nổ lực vượt qua khó khăn ban đầu khi khởi nghiệp, kinh nghiệm phát triển kinh doanh dựa trên mạng lưới và “những người khổng lồ”

"Trăn trở đến tột cùng"
\

"Trăn trở đến tột cùng, Nổ lực đến tột cùng". Thông điệp chung của những trái tim rực lửa đang trăn trở vì cuộc sống còn nhiều khó khăn, đau khổ. Thông điệp từ những khối óc đang nổ lực hết mình để biến những ý tưởng cao đẹp của mình thành hành động góp phần làm đẹp cuộc đời này.

Nụ cười cho em
Nụ cười cho em

Những ký ức ngọt ngào về tuổi thơ luôn là hành trang để chúng ta có thể vững bước vào đời. Thế nhưng không phải tất cả trẻ em đều có cái may mắn đó.

Hội thảo "Chia sẻ và Kết nối"
Hội thảo \

Hơn 20 CLB đội nhóm hoạt động cộng đồng sẽ tham dự hội thảo "Chia sẻ và Kết nối" vào 9h ngày 8.9.2012, tại Hội quán DRD (Đời rất đẹp), số 91/6N Hòa Hưng, P.12, Quận 10, TPHCM.

Các hoạt động quốc gia hưởng ứng Chiến dịch Làm cho thế giới sạch hơn năm 2012
Các hoạt động quốc gia hưởng ứng Chiến dịch Làm cho thế giới sạch hơn năm 2012

Chiến dịch Làm cho thế giới sạch hơn năm 2012 (Chiến dịch) có chủ đề “Nơi sinh sống của chúng ta… Hành tinh của chúng ta… Trách nhiệm của chúng ta” (Our Place… Our Planet… Our Responsibility), được phát động và hưởng ứng trên phạm vi toàn cầu từ ngày 14 đến 16 tháng 9 năm 2012.

Thư mời tham gia Diễn đàn Tiếng nói tình nguyện và Thành lập mạng lưới các tổ chức tình nguyện tại Việt Nam
Thư mời tham gia Diễn đàn Tiếng nói tình nguyện và Thành lập mạng lưới các tổ chức tình nguyện tại Việt Nam

THƯ MỜI THAM GIA Diễn đàn Tiếng nói tình nguyện và Thành lập mạng lưới các tổ chức tình nguyện tại Việt Nam

HỘI THẢO "CẦN GÌ TRƯỚC KHỞI NGHIỆP?" 4/10/2012
HỘI THẢO \

Trước khó khăn chung của nền kinh tế thế giới cũng như ở nước ta hiện nay, nhiều doanh nghiệp non trẻ đã phá sản hoặc ngưng hoạt động. Vậy những bạn muốn khởi nghiệp cần chuẩn bị gì để sẵn sàng đương đầu với thử thách, khó khăn trên chặng đường gian nan phía trước.

Khóa huấn luyện "KHỞI NGHIỆP THÀNH CÔNG" ngày 21/10/2012
Khóa huấn luyện \

Con đường khởi nghiệp là con đường khó khăn nhất mà bất cứ một người doanh nhân thành công nào cũng phải trải qua. Nếu bạn thực sự muốn thành công trong kinh doanh, bạn phải vượt qua được con đường đó.

Sự kiện “Đêm tĩnh lặng - Silent Night” tại TP.HCM ngày 14-10-2012
Sự kiện “Đêm tĩnh lặng - Silent Night” tại TP.HCM ngày 14-10-2012

Nhằm xây dựng ý thức khi tham gia giao thông trong cộng đồng, hướng đến việc phát triển văn hoá giao thông tại Việt Nam, dưới sự điều phối của Trung tâm Live&Learn kết hợp cùng chiến dịch “Không còi” 2012 của “ FORD DRIVING SKILL”, các thành viên mạng lưới Be Change Agents tổ chức sự kiện “Silent Night – Đêm tĩnh lặng” tại Thành phố Hồ Chí Minh.

Hội chợ Mottainai tại HN ngày 14-10-2012
Hội chợ Mottainai tại HN ngày 14-10-2012

“Mottainai là một thán từ trong ngôn ngữ của người Nhật cổ từ xa xưa.Trong cổ ngữ Nhật, Mottainai được sử dụng với rất nhiều nghĩa, như “bất tiện quá” hoặc “tiếc quá”. “Mottainai” thường được thốt lên đầy cảm thán khi sự hữu dụng (thức ăn, thời gian, trí tuệ , năng lực…) bị lãng phí một cách đáng tiếc trong lúc giá trị sử dụng vẫn còn."

Chương trình bốc thăm trúng "quà" từ Lắng Nghe Thành Phố (CitySound)
Chương trình bốc thăm trúng \

Nhanh tay đăng kí để có cơ hội nhận quà từ Lắng Nghe Thành Phố,

Chương trình: "Định hướng của sinh viên trong bối cảnh kinh tế toàn cầu" (17-10-2012)
Chương trình: \

Trong bối cảnh kinh tế toàn cầu và kinh tế Việt Nam với rất nhiều biến động và sóng gió, làm sao để có những nhìn nhận và định hướng phù hợp nhất, làm sao để thế hệ trẻ có thể cùng góp sức cho con tàu Việt Nam dũng mãnh giữa đại dương? Hãy cùng tìm câu trả lời trong chương trình vào 18h - 20h, thứ 4, ngày 17/10/2012...

SE Workshop - Doanh nghiệp xã hội: từ chiến lược đến hành động (18-10-2012)
SE Workshop - Doanh nghiệp xã hội: từ chiến lược đến hành động (18-10-2012)

SE workshop là chương trình giúp gia tăng chất “Doanh nhân, Doanh nghiệp” cho các dự án/doanh nghiệp Xã Hội – cộng đồng học tập mở nhằm chia sẻ, nâng cao tinh thần, kỹ năng lãnh đạo DNgXH, kỹ năng quản lý điều hành và trau dồi tư duy kinh doanh, thị trường.

Cuộc thi "Hành Trang Kinh tế Xanh của Tôi" - 15/10-25/11/2012
Cuộc thi \

Cuộc thi tìm hiểu “Hành trang Kinh tế Xanh của tôi” do Trung tâm Đào tạo và Truyền thông môi trường - trực thuộc Tổng cục Môi trường (CETAC), Trung tâm Sống và Học tập vì Môi trường và Cộng đồng (Live&Learn) và Mạng lưới Thế Hệ Xanh Việt Nam tổ chức.

Giao lưu trực tuyến miễn phí: “6 kênh truyền thông kỹ thuật số dành cho DNgXH” - 25/10/2012
Giao lưu trực tuyến miễn phí: “6 kênh truyền thông kỹ thuật số dành cho DNgXH” - 25/10/2012

Tiếp nối sự thành công giai đoạn 1 của dự án "Nâng cao năng lực cho DNgXH" do sự tài trợ của Đại Sứ Quán Ai Len, Trung tâm Hỗ trợ Sáng kiến Phục vụ Cộng đồng (CSIP) trân trọng kính mời các cán bộ, nhân viên làm việc trong các DNgXH Việt nam tham gia chuỗi chương trình giao lưu trực tuyến từ tháng 10 - tháng 12/2012.

Tuyển 121 Tình Nguyện Viên (TNV) Hội Thao Người Khuyết Tật Toàn Quốc - 4/11/2012
Tuyển 121 Tình Nguyện Viên (TNV) Hội Thao Người Khuyết Tật Toàn Quốc - 4/11/2012

Hàng trăm vận động viên Người Khuyết tật đến từ khắp nơi trên cả nước sẽ cùng nhau tranh tài tại Hội Thao Người Khuyết Tật Toàn Quốc. Hiện tại, Hội thao có 7 môn thi đấu : Điền Kinh, Bơi Lội, Bóng Bàn, Cử Tạ, Cầu Lông, Cờ Vua. Chính vì vậy chúng tôi cần những TNV để cùng tổ chức hội thao. Một CƠ HỘI TUYỆT VỜI để cảm nhận được những ý chí phi thường từ những người “bình thường”.

Thăm và cùng trải nghiệm công việc của người khuyết tật - 27/10/2012
Thăm và cùng trải nghiệm công việc của người khuyết tật - 27/10/2012

Tiếp nối chuyến thăm lần trước, Mạng Xã hội SốngXanh.vn sẽ tổ chức đi thăm Cơ sở Dạy nghề dành cho Người khuyết tật Thiện Tâm Hương vào sáng thứ 7 ngày 27/10/2012.

Chương trình thiện nguyện "Chung Tay Tay Kết Nối" tại Lộc Ninh - Bình Phước ngày 17-18.11.2012
Chương trình thiện nguyện \

Với mong muốn chia sẽ được phần nào khó khăn cho người dân, tổ chức một ngày hội phát triển kỹ năng, mang sách đến cho các em, chúng tôi rất mong nhận được sự chung tay, ủng hộ của quý mạnh thường quân, anh chị và các bạn!

[TP HCM] TUYỂN ĐỘI CHƠI CHƯƠNG TRÌNH "HÀNH TRÌNH CỦA CHÚNG TA"
[TP HCM] TUYỂN ĐỘI CHƠI CHƯƠNG TRÌNH \

Bạn là người trẻ với niềm đam mê du lịch và khám phá những miền đất lạ ? Bạn yêu môi trường, hứng thú với các hoạt động hướng tới phát triển bền vững? Bạn muốn được kết nối với các bạn trẻ chung mối quan tâm và tạo sự lan tỏa tới những người xung quanh?

Hội thảo Kiến trúc Xanh (24/11/2012)
Hội thảo Kiến trúc Xanh (24/11/2012)

Thay mặt Ban chủ nhiệm CLB Kiến trúc xanh TpHCM và Trung tâm tiết kiệm Năng lượng TpHCM, trân trọng kính mời ACE tham dự buổi Hội thảo chuyên đề "Kiến trúc xanh"

Giao lưu trực tuyến miễn phí: “Tuyển dụng ai, khi nào và như thế nào trong 2 năm đầu tiên của DNXH?”
Giao lưu trực tuyến miễn phí: “Tuyển dụng ai, khi nào và như thế nào trong 2 năm đầu tiên của DNXH?”

Tiếp nối sự thành công giai đoạn 1 của dự án "Nâng cao năng lực cho DNgXH" do sự tài trợ của Đại Sứ Quán Ai Len, Trung tâm Hỗ trợ Sáng kiến Phục vụ Cộng đồng (CSIP) trân trọng kính mời các cán bộ, nhân viên làm việc trong các DNgXH Việt nam tham gia chuỗi chương trình giao lưu trực tuyến từ tháng 10 - tháng 12/2012.

Ngày hội Kết Nối Tình Nguyện 02/12/2012
Ngày hội Kết Nối Tình Nguyện 02/12/2012

Tiếp nối thành công năm 2011, Mạng lưới các nhóm tình nguyện Miền Nam tổ chức NGÀY HỘI KẾT NỐI TÌNH NGUYỆN 2012 tạo tinh thần đoàn kết và giao lưu với các đơn vị HĐXH

Đăng kí tham dự Chương trình giao lưu trực tuyến- Phong cách lãnh đạo
Đăng kí tham dự Chương trình giao lưu trực tuyến- Phong cách lãnh đạo

Mục đích của chương trình nhằm thúc đẩy mạng lưới giao lưu kết nối và chia sẽ chuyên môn trong cộng đồng các Doanh Nghiệp Xã Hội Việt Nam (đã từng hoặc chưa tham gia các trong dự án). Qua kinh nghiệm thực tế của riêng CSIP lẫn của các cộng đồng tương tự khác, sự tham gia tích cực trong các mạng lưới sẽ giúp các tổ chức xây dựng nguồn vốn xã hội dồi dào, đa dạng cho tất cả nhằm hỗ trợ sự phát triển bền vững và ổn định.

Chương trình "Thể nghiệm Nhật Bản" ngày 25/11 tại TP.HCM
Chương trình \

Những điều bạn biết về Nhật Bản có thể qua Bộ phim "Một lít nước mắt", hay câu chuyện về chú cho Mari... Tác phẩm "Kafka bên bờ biển", "Tiếng hát nhân ngư"... Hay hoa anh đào, núi Phú Sĩ, kimono...

Double S Project tuyển tình nguyện viên

Bạn khéo tay, có khả năng làm những món đồ handmade? Bạn quan tâm đến vấn đề môi trường, một trong những vấn đề đang rất nóng hiện nay? Bạn muốn tham gia các hoạt động tình nguyện bổ ích để nâng cao các kĩ năng mềm của bản thân? Hãy đến với chúng tôi, Dự án Double S, Enactus FTU Hà Nội! Chúng tôi cần bạn!

Green Drinks Saigon: Opportunities for Wind and Biomass Energy 27/11 HCMC
Green Drinks Saigon: Opportunities for Wind and Biomass Energy 27/11 HCMC

Hãy tham dự với chúng tôi để biết thêm về năng lượng gió và những triển vọng, những chính sách mới nhất dành cho năng lượng tái tạo… và hơn thế nữa, tiếp xúc với người trực tiếp tạo nên những kinh nghiệm tiên phong của Green Energy Biomass - một trong những công ty năng lượng sinh học đầu tiên tại Việt Nam.

Thi thiết kế nhà thích ứng biến đổi khí hậu
Thi thiết kế nhà thích ứng biến đổi khí hậu

Ngày 21-11, Tập đoàn SCG và Tổ chức phi chính phủ Habitat for Humanity Việt Nam đã phát động cuộc thi thiết kế “Ngôi nhà thích ứng trong thời đại biến đổi khí hậu và thiên tai”.

Chuỗi chương trình chia sẻ và kết nối với "Green Agents" sáng Chủ nhật hàng tuần
Chuỗi chương trình chia sẻ và kết nối với \

Bạn là người quan tâm đến các vấn đề môi trường, xã hội và phát triển con người, mong muốn được học hỏi, chia sẻ, kết nối và lan tỏa những ý tưởng và hành động xanh? Mạng Xã hội SốngXanh.vn – Sống Xanh Cafe sẽ giúp bạn thực hiện mong ước này.

TUYỂN TÌNH NGUYỆN VIÊN CHO CHƯƠNG TRÌNH “ GIÁNG SINH ẤM ÁP” NGÀY 18 /12/2012
TUYỂN TÌNH NGUYỆN VIÊN CHO CHƯƠNG TRÌNH “ GIÁNG SINH ẤM ÁP” NGÀY 18 /12/2012

Giữa tháng 12 này, BenSmile Charity sẽ tổ chức chương trình lớn để cùng “đầu tròn” đón Giáng Sinh, chi tiết chương trình đã được lên kế hoạch và thông tin sẽ được post cụ thể lên web và facebook trong thời gian sớm nhất . Thế nhưng, nhân sự tham gia mới chính là chìa khóa thành công, nên sự hỗ trợ của các bạn TNV là điều thiết yếu giúp chương trình có thể tiến hành thật trọn vẹn. BSC chính thức đăng tải thông tin tuyển TNV cho sự kiện lần này và rất mong nhận được sự đón nhận của các bạn.

[DỰ ÁN VOTE FOR WILDLIFE] PHÁT ĐỘNG CUỘC THI THIẾT KẾ ẤN PHẨM QUẢNG CÁO CÔNG CỘNG
[DỰ ÁN VOTE FOR WILDLIFE] PHÁT ĐỘNG CUỘC THI THIẾT KẾ ẤN PHẨM QUẢNG CÁO CÔNG CỘNG

Cuộc thi thiết kế ấn phẩm quảng cáo công cộng (PSA - Public Service Announcement) là một trong những hoạt động chính và tiêu biểu của dự án này. Cuộc thi được tổ chức với mục đích thu hút sự tham gia của các cá nhân cũng như đơn vị thiết kế đồ hoạ chuyên và không chuyên trong việc truyền tải những thông điệp về bảo vệ ĐVHD, truyền cảm hứng nhằm thay đổi nhận thức và hành vi của người dân Việt Nam đối với các loài ĐVHD, từ đó giảm tình trạng tiêu thụ trái phép các sản phẩm từ ĐVHD vốn đang là một

Giao lưu trực tuyến cùng Doanh nghiệp Xã hội Việt Nam: "Giải pháp Vượt qua 7 Thử thách khi Khởi sự một DNgXH"
Giao lưu trực tuyến cùng Doanh nghiệp Xã hội Việt Nam: \

Như anh/ chị đã biết, tuần vừa rồi do một số trục trặc kỹ thuật không mong muốn chương trình Giao lưu trực tuyến số thứ 06 đã bị hoãn lại, nay BTC xin thông báo lịch tổ chức mới của chương trình Giao lưu trực tuyến cùng Doanh nghiệp Xã hội Việt Nam – Số thứ 06:

Khóa học "Bắt đầu doanh nghiệp xã hội của bạn - SYSE", 23/12/2012, Hà Nội
Khóa học \

Ngày nay, Doanh nghiệp Xã hội đã trở thành một phương thức tiếp cận mới để đạt mục tiêu phát triển cộng đồng một cách bền vững và hiệu quả. “Doanh nghiệp xã hội sử dụng một cách chọn lọc những thông lệ, công cụ và phương pháp của cả khối kinh doanh và xã hội để cấu trúc lại những giải pháp cho những vấn để của cộng đồng nhằm mang lại những giá trị mới và bền vững cho xã hội”(Alex Nicholls,2006).

Hội thu heo đất – Hội chợ từ thiện “giáng sinh ấm” (16/12/2012)
Hội thu heo đất – Hội chợ từ thiện “giáng sinh ấm” (16/12/2012)

Hàng trăm chú heo đất sẽ hội thu trong ngày hội để cùng chung tay đóng góp áo ấm tặng trẻ em nghèo vùng cao, trong ngày hội thu Nhóm Những ước mơ xanh cũng mong muốn tiếp nhận những đóng góp kinh phí; áo ấm cho trẻ em,người lớn; sách vở; nhu yếu phẩm từ cộng đồng.

GIỜ TRÀ CHIỀU 2 - GIÁNG SINH XANH, 22/12/2012 tại TPHCM
GIỜ TRÀ CHIỀU 2 - GIÁNG SINH XANH, 22/12/2012 tại TPHCM

Họp chợ bán buôn kiếm xu lẻ;
Chia sẻ lợi nhuận cùng từ thiện;
Tụ tập cà phê ngồi buôn chuyện.

Khóa huấn luyện "KHAI PHÁ NGUỒN NĂNG LƯỢNG VÔ HẠN TRONG BẠN" Ngày 06/01/2013
Khóa huấn luyện \

Khóa huấn luyện đặc biệt “KHAI SÁNG NGUỒN NĂNG LƯỢNG VÔ HẠN TRONG BẠN” sẽ giúp bạn có một trải nghiệm cuộc đời bạn theo cách hoàn toàn mới. Giúp bạn tìm chính mình, tìm lại ước mơ và biến nó thành hiện thực. Khóa huấn luyện này sẽ giúp bạn đánh thức "con người phi thường" đang ngủ yên trong bạn.

Psych Café 17: Phương pháp “Shared Concern” (Bày tỏ quan ngại) đối với trẻ em liên quan đến hành vi bắt nạt trong học đường
Psych Café 17: Phương pháp “Shared Concern” (Bày tỏ quan ngại) đối với trẻ em liên quan đến hành vi bắt nạt trong học đường

Thời gian gần đây, nạn bắt nạt và bạo lực trong học đường đã và đang nổi lên như một vấn đề gây mệt mỏi cho các nhà giáo dục, giáo viên và nhân viên làm việc trong trường học cũng như các tổ chức khác có liên quan ngoài cộng đồng. Hẳn nhiên, nhiều cách thức/ phương pháp cũng đã được đề nghị và đưa vào áp dụng với hy vọng giảm thiểu trình trạng bắt nạt và bạo lực trong học đường tại Việt Nam.

Chương trình "Giáng Sinh Xanh" cho trẻ em phường Cô Giang
Chương trình \

(SốngXanh.vn) - Tối ngày 24/12/2012 vừa qua, toàn bộ số tiền quyên góp được từ chương trình "Giờ Trà Chiều 2" đã được Mạng Xã hội SốngXanh.vn ủng hộ cho chương trình "Giáng Sinh Xanh" cho trẻ em phường Cô Giang do Hội LHTN Việt Nam Phường Cô Giang, quận 1 tổ chức tại hội trường UBND Phường, số 69 Hồ Hảo Hớn.

Hội thảo Tiếp sức Doanh nghiệp Xã Hội Việt Nam vững bước (10/01/2013)
Hội thảo Tiếp sức Doanh nghiệp Xã Hội Việt Nam vững bước (10/01/2013)

Trung tâm Hỗ trợ Sáng kiến Phục vụ Cộng đồng (CSIP), KOTO Quôc tế và Phòng Thương Mại và Công Nghiệp Việt Nam kính mời Anh/Chị tham dự: Hội thảo Tiếp sức Doanh nghiệp Xã Hội Việt Nam vững bước

Ngày Thủy "Rác đại dương" nằm trong chuỗi Ngũ hành GFOC phiêu lưu kí (10/01/2013)
Ngày Thủy \

Chương trình sẽ được diễn ra từ 15h00 - 17h00 ngày 10/01/2013 tại trường tiểu học Nguyễn Bỉnh Khiêm. Tiết mục "Chuông gió đại dương", vở kịch "Rác đại đương", trò chơi "bé đoán hay bé đoán giỏi", cuộc thi "Làm sao em bảo vệ biển" là những nội dung chính mà GFOC sẽ thực hiện nhằm giúp các bé biết được đời sống dưới đại dương như thế nào và con người đã tác động ra sao tới thế giới đại dương ấy.

"TẾT QUÊ" (19/01/2013)
\

Tiếp bước 12 hành trình xuyên suốt trong năm qua của nhóm; bước sang năm 2013, GIA ĐÌNH CẦU VỒNG muốn xuôi về miền tây sông nước, đặt chân đến khu vực vùng sâu của Bến Tre. Vốn là vùng đất xứ dừa, Bến Tre nổi tiếng với những sản phẩm từ dừa. Nhưng Mỹ Thạnh là xã vùng sâu thuộc Huyện Ba Tri, tỉnh Bến Tre có cuộc sống khó khăn hơn nhiều.

Tọa đàm kinh tế xanh từ những góc nhìn -19/01/2013
Tọa đàm kinh tế xanh từ những góc nhìn -19/01/2013

Hãy đến với tọa đàm “Kinh tế xanh từ những góc nhìn” để cùng nhau tìm hiểu, bày tỏ quan điểm và hành động về chủ đề rất thời sự này

Saigon's Green Networking Night 22/1/2013
Saigon\'s Green Networking Night 22/1/2013

Không cần phải chờ đợi lâu hơn nữa để gặp lại những “đồng đội Xanh”của mình. Hãy tham dự Green Drinks 15 vào ngày 22.1.2013 để cùng nâng ly mừng năm mới, gặp gỡ và chuyện trò với những người bạn tuyệt vời của Green Drinks.

"Chương trình TUYỂN MỘ VÀ TẬP HUẤN TNV TẠI Tp. Hồ Chí Minh" -20/01/2013
\

Sáng ngày 20.1.2013, Trung tâm giáo dục thiên nhiên - ENV sẽ tổ chức chương trình Tập huấn và tuyển mộ TNV bảo vệ ĐỘNG VẬT HOANG DÃ tại TP.Hồ Chí Minh.

phiên chợ sinh viên 2013- 20/1/2013
phiên chợ sinh viên 2013- 20/1/2013

Với mong muốn mở ra một sân chơi thường xuyên - chuyên nghiệp cho các bạn trẻ và mở rộng tới các tầng lớp nhân dân. Đồng thời iHanoiMarket mong muốn sẽ là nơi thu hút các tài năng trẻ, nơi để các bạn có cơ hội thể nghiệm những khám phá văn hóa nghệ thuật mới và tìm kiếm những cơ hội thử thách bản thân BTC iHanoiMarket xin thông báo: Kể từ ngày 20/01/2013 chúng tôi sẽ mở cửa phiên chợ sinh viên 2013. Phiên chợ sẽ được diễn ra vào chủ nhật hàng tuần và MIỄN PHÍ vị trí gian hàng dành cho các đơn vị

Thư mời Tham dự: Cà phê Ý tưởng Lần 1 - Năm 2013 -“Hiến kế Thanh niên & Sống xanh cùng Buýt”
Thư mời Tham dự: Cà phê Ý tưởng Lần 1 - Năm 2013 -“Hiến kế Thanh niên & Sống xanh cùng Buýt”

NÀO TA CÙNG BUÝT – Chiến dịch môi trường rầm rộ trong suốt năm 2011 & 2012 Hàng loạt các hoạt động: Cà phê Ý tưởng, Tọa đàm Tiếng nói Thanh niên & Văn minh xe Buýt, Ngày hội Chuyển Động Xanh 2012, 4000 lượt khách tham gia, Buýt sống xanh cùng đại sứ Hồ Quang Hiếu, Quốc Thiên Idol,….

XUÂN TÌNH NGUYỆN CÙNG QUẢNG NAM YÊU DẤU
XUÂN TÌNH NGUYỆN CÙNG QUẢNG NAM YÊU DẤU

sinh viên Quảng hướng về xứ Quảng

Nộp đề xuất kinh doanh Quỹ Thách thức Doanh nghiệp Việt Nam (VBCF)
Nộp đề xuất kinh doanh Quỹ Thách thức Doanh nghiệp Việt Nam (VBCF)

Quỹ VBCF được thiết kế nhằm hỗ trợ các doanh nhiệp tư nhân đang hoạt động tại Việt Nam xây dựng mô hình kinh doanh sáng tạo cùng người thu nhập thấp và có thể mang lợi ích kinh tế cho doanh nghiệp cũng như tác động tích cực cho xã hội thông qua mô hình Kinh doanh cùng người thu nhập thấp.

Gia Đình Cầu Vồng- hành trình tháng 1-2013
Gia Đình Cầu Vồng- hành trình tháng  1-2013

Tiếp bước 12 hành trình xuyên suốt trong năm qua của nhóm; bước sang năm 2013, GĐCV muốn xuôi về miền tây, đặt chân đến khu vực vùng sâu của Bến Tre.Vốn là vùng đất xứ dừa, Bến Tre nổi tiếng với những sản phẩm từ dừa. Nhưng Mỹ Thạnh là xã vùng sâu thuộc Huyện Ba Tri, tỉnh Bến Tre có cuộc sống khó khăn hơn nhiều. Hiện tại xã có 4 ấp, có 1394 hộ dân trong đó có 207 hộ nghèo và 64 hộ cận nghèo. Bà con ở nơi đây làm mướn kiếm sống qua ngày, nguồn thu nhập để bà con sinh sống là làm ruộng, chăn nuôi,

Ngày hội "GÓI MÙA XUÂN - ĐONG HẠNH PHÚC" -26/01/2013
Ngày hội \

• Là khi ngồi cùng nhau chuẩn bị nguyên liệu gói bánh chưng: gạo nếp, đậu xanh, thịt lợn và không thể thiếu màu xanh của lá – nghe từng hơi ấm mùa xuân len vào tim • Là khi quây quần bên nhau đong chén gạo nếp thơm, nắn những viên đậu tròn, xếp từng thớ thịt vào khuôn vuông vức - thắt chặt niềm hạnh phúc yêu thương vào bánh.

“Hành trình Chắp cánh Ước mơ tháng 3/2013” - LÂM ĐỒNG
“Hành trình Chắp cánh Ước mơ tháng 3/2013” - LÂM ĐỒNG

Sau Ngày hội Chắp cánh Ước mơ tại trường tiểu học Bế Văn Đàn, Bảo Lộc, chương trình có nhận được điện thoại từ người phụ trách của một nhóm trẻ dân tộc trên vùng Đơn Dương, Lâm Đồng. Nhận thấy cần phải làm một cái gì đó, nên Inspire A Dream quyết định tổ chức quyên góp để thực hiện một chuyến hành trình nên vùng cao nguyên xa xôi này. Cụ thể chương trình như sau:

Tọa đàm “Giới trẻ đối thoại về Doanh nghiệp xã hội” & Lễ khai mạc dự án Hỗ trợ và phát triển DNXH Việt Nam – VSEED 2013
Tọa đàm “Giới trẻ đối thoại về Doanh nghiệp xã hội” & Lễ khai mạc dự án Hỗ trợ và phát triển DNXH Việt Nam – VSEED 2013

Chương trình sẽ cùng các bạn giải đáp những khó khăn trên con đường khởi nghiệp, những thắc mắc về hoạt động kinh doanh của doanh nghiệp xã hội, những đóng góp cũng như vai trò cộng đồng của mô hình doanh nghiệp mới mẻ này.

CUỘC THI : SÁNG TÁC TRANH DÀNH CHO THIẾU NHI
CUỘC THI : SÁNG TÁC TRANH DÀNH CHO THIẾU NHI

CUỘC THI : SÁNG TÁC TRANH DÀNH CHO THIẾU NHI Chủ đề: “NĂM MỚI CỦA CON SẼ…TRÔNG NHƯ THẾ NÀO?” Đơn vị tổ chức : Doanh nghiệp Xã hội Tòhe

THÔNG BÁO TUYỂN TNV CHIẾN DỊCH GIỜ TRÁI ĐẤT 2013 TẠI TP.HCM
THÔNG BÁO TUYỂN TNV CHIẾN DỊCH GIỜ TRÁI ĐẤT 2013 TẠI TP.HCM

Nhằm hưởng ứng Giờ Trái đất diễn ra trên toàn thế giới vào ngày 23/03 năm nay, BTC chiến dịch Giờ Trái đất tại TP.HCM (do UBND TP.HCM chỉ đạo, Sở Công thương và báo Sài Gòn Giải Phóng thực hiện) trân trọng thông báo tuyển Tình nguyện viên cho các hoạt động sau:

“Hành trình phi lý trên biển” – Giao lưu kết nối với đoàn doanh nhân xã hội quốc tế
“Hành trình phi lý trên biển” – Giao lưu kết nối với đoàn doanh nhân xã hội quốc tế

“Hành trình phi lý trên biển”(Unreasonable At Sea) là đoàn doanh nhân xã hội công nghệ cao thực hiện Hành trình 100 ngày trên biển vòng quanh thế giới với sự tham gia của 11 doanh nghiệp công nghệ cao có tiềm năng về tài chính và tác động xã hội hàng đầu thế giới là sáng kiến do The Unreasonable Institute, Stanford D.School và Semester at Sea hợp tác tổ chức. Với sứ mệnh thúc đẩy phong trào doanh nghiệp xã hội trên thế giới, Hành trình phi lý trên biển đã cập bến Việt Nam và mong muốn được giao

Lễ trao chìa khóa Sống Xanh Cafe - TP. HCM ngày 21/2/2013
Lễ trao chìa khóa Sống Xanh Cafe - TP. HCM ngày 21/2/2013

Đón chào Xuân mới và đón chào các hoạt động sắp tới của các cá nhân, tổ chức hoạt động về xã hội, môi trường, phát triển con người và doanh nghiệp xã hội, Mạng Xã hội Sống Xanh (SốngXanh.vn) sẽ khai trương hội quán Sống Xanh Cafe vào ngày 21/2/2013. Với mục đích làm ngôi nhà chung cho các cá nhân và tổ chức hoạt động vì cộng đồng, cũng trong dịp khai trương này, Sống Xanh Cafe sẽ tổ chức "Lễ trao chìa khóa" cho đại diện các tổ chức, đồng thời phát động cuộc thi "Thiết kế poster" cho các tổ chức

MỜI BẠN THAM GIA CHƯƠNG TRÌNH “SHARE TO GROW” (10/03/2013)
MỜI BẠN THAM GIA CHƯƠNG TRÌNH “SHARE TO GROW” (10/03/2013)

Bạn là sinh viên đại học năm 1,2,3 hay học sinh cấp 3 đang háo hức trải nghiệm một điều thật mới cho năm mới Quý Tỵ 2013? Bạn yêu thích hoạt động tình nguyện? Bạn có nhu cầu chia sẻ kinh nghiệm, kĩ năng? Bạn muốn tìm hiểu mô hình tình nguyện viên chuyên môn, cách thức hoạt động của các câu lạc bộ đội nhóm tình nguyện tại Thành phố Hồ Chí Minh? Và cùng lắng nghe câu chuyện khi tình nguyện ở nước ngoài và những điều thú vị khi tham gia tình nguyện?

THÔNG BÁO TUYỂN THÀNH VIÊN CHÍNH THỨC – ĐỢT TUYỂN MÙA XUÂN 2013
THÔNG BÁO TUYỂN THÀNH VIÊN CHÍNH THỨC – ĐỢT TUYỂN MÙA XUÂN 2013

Bạn đang tìm kiếm sự thay đổi bản thân? Bạn muốn thỏa sức phát huy ý tưởng sáng tạo? Bạn khao khát trở thành một phần của dự án Youth Empowerment – Sustainable Development Challenges, được tham gia các khóa tập huấn thường kỳ, phát triển các kỹ năng làm việc chuyên nghiệp?

Học bổng Impact Forum cho Doanh nghiệp xã hội tại Châu Á Thái Bình Dương
Học bổng Impact Forum cho Doanh nghiệp xã hội tại Châu Á Thái Bình Dương

Impact Forum (Diễn đàn Tầm Ảnh Hưởng) đang chuẩn bị tổ chức một Thị Trường Vốn Xã Hội Hóa (SCM) tại Châu Á. Chúng tôi coi các doanh nghiệp xã hội (SEs) là những thành viên rất quan trọng của SCM. Chúng tôi đã chào mừng các doanh nghiệp xã hội bằng việc trao tặng 10 suát học bổng của Impact Forum cho 10 doanh nghiệp xã hội tại Châu Á Thái Bình Dương hướng tới mục tiêu kết nối và hội nhập. Những doanh nghiệp đoạt giải sẽ có cơ hội được học hỏi kiến thức từ Impact Forum và giao lưu kết nối với nhữ

Gia Đình Cầu Vồng_HÀNH TRÌNH THÁNG 2-2013
Gia Đình Cầu Vồng_HÀNH TRÌNH THÁNG 2-2013

Mái ấm La Vang do anh Nguyễn Minh Chánh phụ trách, chuyên chăm nuôi các cháu bé mồ côi, lang thang cơ nhỡ (từ 3 đến 18 tuổi). Hiện tại Mái ấm có khoảng 41 em đang sống chủ yếu nhờ sự hỗ trợ của các nhà hảo tâm và phải tự tìm nguồn kinh phí để duy trì các sinh hoạt nơi đây. Dù gặp nhiều khó khăn và bản thân đang mang căn bệnh hiểm nghèo nhưng anh Chánh cũng cố gắng tạo điều kiện để các em trong mái ấm phải được đến trường với hy vọng các em sẽ có một kiến thức đầy đủ như các bạn đồng trang lứa và

THÔNG BÁO TUYỂN TÌNH NGUYỆN VIÊN DỰ ÁN GIÁO DỤC VÌ CỘNG ĐỒNG

1. Đơn vị đăng tuyển: Công ty CP VNG. 2. Đối tượng: - Là sinh viên thuộc địa bàn Tp.Hồ Chí Minh có điểm thi Đại học trên 24 điểm chưa nhân hệ số, hoặc có ít nhất môn thi từ 8.5 điểm trở lên, hoặc đạt giải trong các kì thi học sinh giỏi các cấp THPT. Ưu tiên sinh viên thuộc khối ngành Sư phạm. - Có trách nhiệm và đam mê với các hoạt động tình nguyện. - Có thời gian sử dụng máy tính và online thường xuyên.

Phát động cuộc thi thiết kế "Poster Xanh"
Phát động cuộc thi thiết kế \

Nhằm giúp quảng bá hoạt động cho các tổ chức hoạt động xã hội, môi trường, phát triển con người và doanh nghiệp xã hội, tạo một sân chơi và hoạt động mới mẻ nhằm khai thác và phát triển tiềm năng thành viên các tổ chức cũng như tạo cơ hội giao lưu cho các thành viên các tổ chức khác nhau, Mạng Xã hội Sống Xanh thân mời các tổ chức cùng tham gia cuộc thi “Thiết kế Poster Xanh" với thể lệ như sau:

"Tiếp cận nguồn hỗ trợ của các tổ chức quốc tế và Việt Nam - cơ hội cho doanh nghiệp Việt Nam 2013"
\

Truyền hình trực tiếp Sự kiện mở đầu năm 2013 - "Tiếp cận nguồn hỗ trợ của các tổ chức quốc tế và Việt Nam - cơ hội cho doanh nghiệp Việt Nam 2013"

Khóa huấn luyện NGHĨ GIÀU - LÀM GIÀU 17/03/2013 tại TP HCM

[Thaihabooks] Làm giàu là một nhu cầu và khát vọng chính đáng của con người từ xưa đến nay. Ai cũng muốn làm giàu nhưng làm bằng cách nào? Làm như thế nào để thành công mới là vấn đề quyết định.

Chính thức phát động chiến dịch Giờ Trái đất 2013
Chính thức phát động chiến dịch Giờ Trái đất 2013

Nhằm tạo chuyển biến lớn trong hành động tiết kiệm năng lượng và chống biến đổi khí hậu của mọi tầng lớp nhân dân, ngày 25/2, tại Hà Nội, Bộ Công Thương chính thức phát động chiến dịch Giờ Trái đất 2013 với thông điệp “Tôi và bạn hãy cùng hành động.”

Chương trình giao lưu giữa DNXH Việt Nam với Small Giants (04/03/2013)
Chương trình giao lưu giữa DNXH Việt Nam với Small Giants (04/03/2013)

Chương trình giao lưu giữa DNXH Việt Nam với Small Giants (nhà đầu tư xã hội đến từ Úc) do Pots 'n Pans và Small Giants tổ chức

Cuộc thi NỐT SOL CUỘC SỐNG
Cuộc thi NỐT SOL CUỘC SỐNG

Bên cạnh đó, chúng tôi mong muốn tập hợp những câu chuyện liên quan đến các bạn khiếm thị nói riêng và khuyết tật nói chung, vẫn thường ngày hiện diện một cách âm thầm xung quanh đời sống chúng ta. Từ trăn trở trên, Dự án Sound Of Light tổ chức cuộc vận động viết bài (những mẩu chuyện có thực hoặc tản văn ngắn) và chụp ảnh với tên gọi “NỐT SOL CUỘC SỐNG”

Psych Café Quý 1/2013: KHÁM PHÁ TÍNH NỮ TRONG BẢN THÂN
Psych Café Quý 1/2013: KHÁM PHÁ TÍNH NỮ TRONG BẢN THÂN

Đến hẹn lại lên, kết thúc tháng 3 với chủ đề Phụ nữ cũng là kết thúc Quý I của năm 2013. Psych Café Quý I/2013 (Chủ Nhật 31/03) sẽ là không chỉ dừng lại ở một buổi thảo luận hoặc một buổi chia sẻ thông tin chuyên đề. Lần này, Psych Café thân mời tất cả các anh chị em, các bạn trong tất cả các ngành nghề, thuộc mọi chuyên ngành, ở mọi độ tuổi, tôn giáo, giới tính đến tham gia và “KHÁM PHÁ TÍNH NỮ TRONG BẢN THÂN”.

Sạc đầy pin cho Tinh thần với chương trình Cafe Khoa học tháng 3 do CLB Bước Chân Khoa học tổ chức
Sạc đầy pin cho Tinh thần với chương trình Cafe Khoa học tháng 3 do CLB Bước Chân Khoa học tổ chức

Một cỗ máy không thể hoạt động nếu như không được cung cấp nhiên liệu. Một cái cây sẽ không thể phát triển nếu thiếu chất dinh dưỡng. Và con người cũng vậy, chúng ta sẽ không thể học tập, làm việc hiệu quả nếu không có đủ năng lượng. Hãy tham gia chương trình và cùng nạp đầy năng lượng cho cơ thể nhé (:

Tuyển thành viên lần 3 tổ chức GFOC

Tuyền thành viên lần thứ 3 cho tổ chức GFOC

Hội thảo chuyên đề PHƯƠNG PHÁP KINH DOANH CỦA NGƯỜI Mỹ: CHIẾN LƯỢC MARKETING

Anh/chị có phải là một chủ doanh nghiệp hoặc đang hoạt động trong lĩnh vực kinh doanh và muốn tìm hiểu thêm về chiến lược và thực tiễn kinh doanh ở Mỹ? Trung tâm Hoa Kỳ phối hợp với Hội Doanh nghiệp Trẻ Hà Nội kính mời anh/chị tới tham dự hội thảo chuyên đề do Đại sứ quán Hoa Kỳ tổ chức về chủ đề Phương pháp kinh doanh của người Mỹ.

Giờ Trà Chiều số 3 - 24/3/2013 TP. HCM
Giờ Trà Chiều số 3 - 24/3/2013 TP. HCM

Chiều chủ nhật 24/3 tuần này bạn chưa có kế hoạch đi đâu?

Bạn muốn săn lùng quần áo, đồ dùng còn tốt với giá rẻ như cho không? Hay bạn có một số đồ cũ không biết để đâu?

Bạn thích nhâm nhi trà bánh và trò chuyện với những người bạn cùng sở thích tham gia các hoạt động cộng đồng?

Bạn muốn biết thêm một quán cafe đặc biệt để hẹn hò bạn bè?

KHAI PHÁ NGUỒN NĂNG LƯỢNG VÔ HẠN TRONG BẠN lần 3 tại Hà Nội
KHAI PHÁ NGUỒN NĂNG LƯỢNG VÔ HẠN TRONG BẠN lần 3 tại Hà Nội

Khóa huấn luyện đặc biệt “KHAI PHÁ NGUỒN NĂNG LƯỢNG VÔ HẠN TRONG BẠN” sẽ giúp bạn có một trải nghiệm cuộc đời bạn theo cách hoàn toàn mới. Giúp bạn tìm chính mình, tìm lại ước mơ và biến nó thành hiện thực. Khóa huấn luyện này sẽ giúp bạn đánh thức "con người phi thường" đang ngủ yên trong bạn.

Ngày hội tình nguyện toàn cầu - GLOBAL VOLUNTEERING DAY 2013
Ngày hội tình nguyện toàn cầu - GLOBAL VOLUNTEERING DAY 2013

CƠ HỘI được tham gia vào các hoạt động thú vị về tình nguyện nước ngoài của VPV : chương trình Sending, Workcamp trên các tỉnh thành Việt Nam,… cũng như tham gia buổi lễ trao giải “ Học Bổng Tình nguyện “. Ngoài ra, với mỗi phí vào cửa là 50.000đ, bạn đã đóng góp cho dự án “ Thắp sáng vùng cao 2013” để đem ánh sáng về trường học cho trẻ em nghèo Hà Giang của VPV rồi đấy!

Mở lớp học nhạc - TP.HCM 20/4/2013
Mở lớp học nhạc - TP.HCM 20/4/2013

Mạng xã hội SốngXanh.vn đang chiêu sinh các lớp nhạc, học tại Sống Xanh Cafe - 64 Hồ Hảo Hớn, P. Cô Giang, Q.1, TP.HCM vào các buổi như sau:

Chương trình Ánh sáng và niềm tin lần 9 - 2013
Chương trình Ánh sáng và niềm tin lần 9 - 2013

Bạn có biết rằng, những gì thật sự đến từ trái tim sẽ đến được trái tim? Cũng như cách bạn muốn giúp đỡ một người khuyết tật, chia sẻ của bạn sẽ thật sự có giá trị khi bạn thấu hiểu và đồng hành cùng người khuyết tật.

Sống Xanh tham gia ngày hội tái chế - TP.HCM 14/4/2013
Sống Xanh tham gia ngày hội tái chế - TP.HCM 14/4/2013

Hưởng ứng Ngày hội tái chế 2013 do Quỹ Tái chế chất thải - Sở Tài nguyên và Môi trường TP.HCM tổ chức ngày 14/4/2013 tại Cung Văn hóa Lao động (55B Nguyễn Thị Minh Khai Q.1), Mạng Xã hội Sống Xanh và Sống Xanh Cafe sẽ tham gia trưng bày các thiết bị nội thất tái chế đang sử dụng.

Họp offline thành viên SốngXanh.vn - TP.HCM 7/4/2013
Họp offline thành viên SốngXanh.vn - TP.HCM 7/4/2013

Mời các bạn đến dự buổi họp offline thành viên Sống Xanh đầu tiên trong năm 2013 để cảm ơn sự ủng hộ của các bạn trong thời gian qua, tạo điều kiện gặp gỡ và trao đổi trực tiếp giữa những người bạn trên web lâu nay, đồng thời cập nhật thông tin hoạt động sắp tới và giao lưu trong một số tiết mục văn nghệ cây nhà lá vườn.

CUỘC THI THIẾT KẾ LOGO TẾT SÁCH 23/04

Tết sách sắp đến rồi! Tết Sách là ngày để tôn vinh sách, các tác giả và những người làm sách. Logo Tết Sách được sử dụng với ý nghĩa cộng đồng, lan truyền văn hóa đọc đến từng gia đình, từng cá nhân nhằm hướng đến một xã hội văn minh và phát triển.

Chiếu phim và nói chuyện về môi trường, TP.HCM 21/4/2013
Chiếu phim và nói chuyện về môi trường, TP.HCM 21/4/2013

The Earth is hot, and getting hotter! We all become used to the phrase: “Global warming”. Have you ever wonder what is the principal driver behind it? What is causing the temperature to skyrocket that high exactly?

Chương trình nấu cơm tặng hoàn cảnh khó khăn - TPHCM 9-10/4/2013
Chương trình nấu cơm tặng hoàn cảnh khó khăn - TPHCM 9-10/4/2013

(SốngXanh.vn) Từ số tiền quyên góp được trong chương trình Giờ Trà chiều 3, mạng Xã hội SốngXanh.vn sẽ phối hợp cùng Hội Chữ thập đỏ phường Cô Giang, quận 1 và Chùa Pháp Hoa (183 Cô Bắc, Phường Cô Giang, Quận 1 - Hồ Chí Minh) tổ chức nấu cơm chay tặng những hoàn cảnh khó khăn trong địa bàn phường vào ngày 9 vào 10 tháng 4, 2013

Giờ Trà chiều 7 - Giáng Sinh Xanh, ngày 22/12/2013
Giờ Trà chiều 7 - Giáng Sinh Xanh, ngày 22/12/2013

Một mùa Giáng sinh yêu thương đã đến gần trước cửa, bạn muốn có cơ hội sở hữu những sản phẩm handmade vô cùng độc đáo từ Doanh nghiệp Xã hội Thiên Tâm và CLB Handmade Nhóm Thiện nguyện Nguyện Ước Xanh? Hay thậm chí bạn muốn tự tay làm ra những món quà tặng cho bạn bè và người thân?

Green Agents 2 với Nguyễn Thành Hưng - câu chuyện về thiên nhiên và động vật hoang dã
Green Agents 2 với Nguyễn Thành Hưng - câu chuyện về thiên nhiên và động vật hoang dã

Cùng sống trên hành tinh xanh, con người và môi trường thiên nhiên xung quanh chúng ta có một mối quan hệ gắn bó mật thiết. Vậy chúng ta đã hiểu gì và đã làm gì để bảo vệ thiên nhiên? Hãy đến tham gia chương trình "Green Agents" 2 để cùng chia sẻ với bạn Nguyễn Thành Hưng - Sáng lập Tổ chức Hành động vì Động vật Hoang dã - AWO.

Khai giảng lớp học handmade (HANUX''S HANDMADE CLASS)
Khai giảng lớp học handmade (HANUX\'\'S HANDMADE CLASS)

Hiện nay, Handmade đang là một xu hướng và mức độ 'hot' của những sản phẩm tự làm xinh đẹp thì không thể nào đo được. Thể nhưng, việc mua những sản phẩm handmade theo kiểu làm hàng loạt ở của hàng hoặc các shop handmade nhỏ đang dần trở nên nhàm chán. Sản phẩm handmade được bỏ tiền ra mua thì không thể nào thú vị bằng TỰ TAY LÀM NHỮNG SẢN PHẨM ĐÓ Hãy đến với Hanux's handmade class để thỏa sức sáng tạo.

Southeast Asia Life Matters Course 2013

Life Matters Course is a residential course for young adults to shape a path and purpose for living. The courses have run continuously since 1995, originally initiated by IofC Australia. These courses are based at Armagh, the Australia/Pacific Centre for Initiatives of Change in Melbourne. In 2012, the course started in South East Asia region for the first time and it has then become SEA Life Matters Course. The course gives a chance for participants to look at their lives and to develop new s

Green Drinks Saigon - 23/4/13 - Project Funding
Green Drinks Saigon - 23/4/13 - Project Funding

Hãy Lần đầu tiên tại Green Drink chúng tôi có topic về “ Kiếm tiền”. Aru David tới từ ASSIST ASIA sẽ chia sẻ những “bí quyết” giúp bạn kiếm được tài trợ cho các dự án phát triển bền vững của mình. Bài trình bày lần này sẽ có rất nhiều thông tin hữu ích để giúp các cá nhân, công ty, hay tổ chức phi chính phủ có thể tiếp cận được với các đơn vị tài trợ trong khu vực cũng như vượt qua những quy trình lựa chọn các dự án khả khi của họ.

Nói chuyện chuyên đề: Quản lý sự giận dữ - TPHCM 25/4/2013
Nói chuyện chuyên đề: Quản lý sự giận dữ - TPHCM 25/4/2013

Cuộc sống và công việc nhiều áp lực và những điều không vừa ý khiến đôi lúc chúng ta cảm thấy tức giận. Nhưng cơn giận dữ bộc phát tưởng chừng sẽ làm cho chúng ta giảm căng thẳng thì lại thường gây ra nhiều hậu quả tiêu cực lớn hơn.

THƯ MỜI THAM DỰ NHÓM THỬ NGHIỆM “TIÊU DÙNG BỀN VỮNG”
THƯ MỜI THAM DỰ NHÓM THỬ NGHIỆM “TIÊU DÙNG BỀN VỮNG”

Sống xanh Việt Nam (GGVn) là dự án thúc đẩy tiêu dùng bền vững được tài trợ bởi Liên minh châu Âu, hướng đến người tiêu dùng có thu nhập trung bình tại thành thị. Các đối tác chính thức của dự án là Trung tâm sản xuất sạch hơn Việt Nam (VNCPC), Viện Công Nghệ Châu Á tại Việt Nam (AIT-VN) và trường Đại học Công nghệ Delft (Hà Lan). Tại thành phố Hồ Chí Minh, Mạng xã hội SốngXanh.vn là đối tác đồng tổ chức và triển khai các hoạt động thử nghiệm.

"Giờ Trà chiều 4" và Ngày hội "Vì cuộc sống xanh", TP.HCM 12/5/2013
\

Đoàn TNCS HCM Phường Cô Giang, Q.1, TP.HCM phối hợp cùng Đoàn Khu chế xuất & Khu công nghiệp TP.Hồ Chí Minh - Công ty Cổ phần Giấy Sài Gòn - Công ty TNHH Âm Thanh Việt và Mạng xã hội SốngXanh.vn tổ chức chương trình ngày hội "Vì cuộc sống xanh" năm 2013 với nội dung như sau, thân mời các bạn cùng tham dự

Hội thảo “Công tác xã hội và Sức khỏe cộng đồng” năm 2013
Hội thảo “Công tác xã hội và Sức khỏe cộng đồng” năm 2013

Được sự đồng ý của Ủy ban nhân dân tỉnh An Giang, Trường Đại học An Giang phối hợp với Trường Đại học West Virginia (Hoa Kỳ) tổ chức Hội thảo Công tác xã hội và sức khỏe cộng đồng lần thứ 8, năm 2013 tại Trường Đại học An Giang từ ngày 27/5/2013 đến 12/6/2013.

Cuộc thi: MỘT PHÚT VỚI “IPHONE HAY AI LÚA – LỰA CHỌN PHÁT TRIỂN BỀN VỮNG CHO VIỆT NAM”
Cuộc thi: MỘT PHÚT VỚI   “IPHONE HAY AI LÚA – LỰA CHỌN PHÁT TRIỂN BỀN VỮNG CHO VIỆT NAM”

Bạn có biết gần 1 tỉ người trên thế giới đang không đủ ăn? Và giá cả lương thực đang tăng? Bạn có biết năm 2012 Việt Nam là nước dẫn đầu thế giới về xuất khẩu gạo. Và thế giới biết đến Việt Nam với lúa, cafe và các sản phẩm nông nghiệp

CUỘC THI SÁNG TÁC KỊCH BẢN TRUYỆN TRANH THIẾU NHI TUYÊN TRUYỀN GIẢM SỬ DỤNG TÚI NI-LÔNG
CUỘC THI SÁNG TÁC KỊCH BẢN TRUYỆN TRANH THIẾU NHI TUYÊN TRUYỀN GIẢM SỬ DỤNG TÚI NI-LÔNG

Cuộc thi nhằm tìm kiếm các kịch bản truyện tranh phù hợp sử dụng cho các mục đích tuyên truyền, giáo dục và nâng cao ý thức của các em học sinh trong sử dụng và thải bỏ túi túi ni-lông. Cuộc thi cũng tạo sân chơi lành mạnh, tạo điều kiện để người dân tham gia vào công tác tuyên truyền hạn chế sử dụng túi ni-lông.

CUỘC THI VIDEO CLIP TUYÊN TRUYỀN GIẢM SỬ DỤNG TÚI NI-LÔNG
CUỘC THI VIDEO CLIP  TUYÊN TRUYỀN GIẢM SỬ DỤNG TÚI NI-LÔNG

CUỘC THI VIDEO CLIP  TUYÊN TRUYỀN GIẢM SỬ DỤNG TÚI NI-LÔNG

THỂ LỆ CUỘC THI VIDEO CLIP TUYÊN TRUYỀN GIẢM SỬ DỤNG TÚI NI-LÔNG
THỂ LỆ CUỘC THI VIDEO CLIP TUYÊN TRUYỀN GIẢM SỬ DỤNG TÚI NI-LÔNG

Nằm trong các hoạt động hưởng ứng Chương trình giảm sử dụng túi ni-lông trên địa bàn thành phố, Sở Tài nguyên và Môi trường tổ chức Cuộc thi “Video clip tuyên truyền giảm sử dụng túi ni-lông” nhằm vận động sáng tác các video clip với nội dung tuyên truyền, nâng cao nhận thức cộng đồng về tác hại của việc sử dụng và thải bỏ không đúng túi ni-lông đồng thời vận động mọi người cùng giảm sử dụng túi ni-lông trong đời sống hàng ngày.

Khuyến mãi đặc biệt mừng các ngày Lễ lớn, TP.HCM 27/4/2013
Khuyến mãi đặc biệt mừng các ngày Lễ lớn, TP.HCM 27/4/2013

Nhân dịp Lễ 30/4 và 1/5, Sống Xanh Cafe có chương trình khuyến mãi đặc biệt lên đến 30% cho tất cả đồ uống và kem

{Thế Hệ Xanh} Thư ngỏ tọa đàm Iphone hay Ai lúa - Lựa chọn phát triển bền vững cho Việt Nam
{Thế Hệ Xanh} Thư ngỏ tọa đàm Iphone hay Ai lúa - Lựa chọn phát triển bền vững cho Việt Nam

Thế Hệ Xanh thân mời các bạn và nhóm/câu lạc bộ tham dự tọa đàm "Iphone hay Ai lúa - lựa chọn phát triển bền vững cho Việt Nam" Tọa đàm được tổ chức bởi mạng lưới Thế Hệ Xanh vào 8h00 - 11h30 thứ 7, ngày 11/5/2013 tại Trung tâm văn hóa Pháp L'Espace.

Nhân Tài Đất Việt mở rộng sang lĩnh vực môi trường
Nhân Tài Đất Việt mở rộng sang lĩnh vực môi trường

Ngày 8/5/2013, tại TPHCM, Tập đoàn Bưu chính Viễn thông Việt Nam, Đài Truyền hình Việt Nam và báo Dân trí đã tổ chức buổi họp báo phát động giải thưởng Nhân Tài Đất Việt năm 2013.

Tuyển TNV chiến dịch năng lượng chuyển bước 2013 tại Hà Nội
Tuyển TNV chiến dịch năng lượng chuyển bước 2013 tại Hà Nội

Hãy nhanh tay đăng kí để cùng giúp sức gia đình 350.org tại Hà Nội trong chiến dịch Vietnam Power Shift diễn ra từ 1/7/2013 đến 31/8/2013 ngay thôi nào >:D

Tọa đàm "Phương pháp điều trị Hương trị liệu - Thủy trị liệu" - 31/8/2913 TP.HCM
Tọa đàm \

Sức Khỏe vững bền là nền Hạnh Phúc. Vì thế ngày nay nhiều người quan tâm việc bảo vệ và chăm sóc sức khỏe. Tuy nhiên, lựa chọn phương pháp nào để bảo vệ chăm sóc sức khỏe bền vững mới là vấn đề chúng ta cần suy nghĩ.

Tổ chức chương trình “VUI TẾT THIẾU NHI với ẤP RÀNG”
Tổ chức chương trình “VUI TẾT THIẾU NHI với ẤP RÀNG”

Ngày Quốc tế thiếu nhi một lần nữa lại về trong sự nao nức, mong chờ của các em nhỏ ở khắp mọi miền Tổ Quốc. Nhưng đối với các trẻ em nghèo tại Ấp Ràng, Củ Chi, ngày Quốc tế thiếu nhi có trở thành niềm mong chờ của các em không khi mà cảnh sống đầy khó khăn, thiếu thốn đã bao trùm lên tuổi thơ của các em?

CHƯƠNG TRÌNH HOT4TEEN LẦN 4, Đà Lạt 1/6/2013
CHƯƠNG TRÌNH HOT4TEEN LẦN 4, Đà Lạt 1/6/2013

CHƯƠNG TRÌNH HOT4TEEN LẦN 4 – 2013 “SÂN CHƠI NĂNG ĐỘNG DÀNH CHO GIỚI TRẺ”

CÀ PHÊ Ý TƯỞNG MỚI, TP.HCM 1/6/2013
CÀ PHÊ Ý TƯỞNG MỚI, TP.HCM 1/6/2013

Các anh chị và các bạn thân mến. Vào 14h30 chiều thứ bảy,01/06/2013, tại SALON VĂN HÓA CÀ PHÊ THỨ BẢY, lầu 1, Trung Nguyên Coffee, 19B Phạm Ngọc Thạch, Quận 3 sẽ diễn ra buổi CÀ PHÊ Ý TƯỞNG MỚI “Cà phê” với TS.KTS Trần Văn Thành

Chương trình Hỗ trợ Doanh nghiệp xã hội 2013
Chương trình Hỗ trợ Doanh nghiệp xã hội 2013

Từ ngày 23/05/2012 Trung tâm Hỗ trợ Sáng kiến Phục vụ Cộng đồng (CSIP) chính thức mời các tổ chức, doanh nghiệp đăng ký tham gia Chương trình Hỗ trợ Doanh nghiệp xã hội 2013.

[TheHeXanh] Hà Nội: Tham dự Chương Trình Schooltour - Chiến dịch Tôi Học Thật
[TheHeXanh] Hà Nội: Tham dự Chương Trình Schooltour - Chiến dịch Tôi Học Thật

Bạn đã từng “lục tung” hết các trang mạng để TÌM KIẾM THÔNG TIN và nhặt nhạnh đưa vào bài làm của mình? Bạn đã từng “CHỈNH SỬA” bài tập của khóa trước để biến nó thành bài làm của mình?

[Thế Hệ Xanh] Toạ đàm Green Jobs - We Choose_ 19.05.2013
[Thế Hệ Xanh] Toạ đàm Green Jobs - We Choose_ 19.05.2013

Tọa đàm “Green Jobs We choose” phân tích cơ hội và thách thức của doanh nghiệp trong phát triển Kinh tế xanh và sinh viên - những người trẻ có thể làm gì để xanh hóa việc học, việc làm của mình để thúc đẩy sự phát triển bền vững.

Tuyển TNV tham gia Đợt khảo sát vào các ngày thứ Sáu trong tháng 5-6/2013
Tuyển TNV tham gia Đợt khảo sát vào các ngày thứ Sáu trong tháng 5-6/2013

Hiện tại văn phòng Tp HCM đang tổ chức Đợt khảo sát các vi phạm về ĐVHD tại các Quận tại TpHCM vào các ngày thứ 6 hàng tuần trong tháng 5 và tháng 6, vì vậy, mỗi ngày khảo sát ENV đang rất cần tuyển 3 bạn TNV tới hỗ trợ các anh chị trong văn phòng. Hi vọng các bạn vẫn sắp xếp thời gian tham gia mặc dù đang tới mùa thi nhé ^ ^

Phát vé miễn phí phim 'Đồi gió hú' - Phim tham gia Liên hoan phim Châu Âu 2013
Phát vé miễn phí phim \'Đồi gió hú\' - Phim tham gia Liên hoan phim Châu Âu 2013

Người hâm mộ điện ảnh thuộc mọi lứa tuổi tại Hà Nội, Đà Nẵng và Thành phố Hồ Chí Minh sẽ có dịp thưởng thức những bộ phim mới nhân dịp Liên hoan phim Châu Âu 2013.

Ngày 25/05/2013 hội quân Hành Trình Đỏ tại TP.HCM
Ngày 25/05/2013 hội quân Hành Trình Đỏ tại TP.HCM

Theo đó, sau vòng sơ tuyển và phỏng vấn trực tuyến BTC Hành Trình Đỏ đã tuyển chọn ra 250 hồ sơ ứng viên ( 100 miền Bắc, 50 miền Trung và 100 miền Nam) tham gia vòng trải nghiệm trực tiếp; sau đó sẽ chọn 100 ứng viên tham gia xuyên Việt vào tháng 07/2013.

Ngày hội hữu nghị quốc tế (International Friendship Day) 25/5/2013 - TP. HCM
Ngày hội hữu nghị quốc tế (International Friendship Day) 25/5/2013 - TP. HCM

Đừng bỏ qua cơ hội tham dự Ngày hội Kết Nối đầy tiềm năng này và hãy chia sẻ thông tin mời các bạn bè của chúng ta cùng đến chung vui nhé!

24h Sống xanh tổ chức chương trình “Đạp xe vì môi trường”
24h Sống xanh tổ chức chương trình “Đạp xe vì môi trường”

(Thành phố Hồ Chí Minh, ngày 16 tháng 5 năm 2013) - Sáng ngày 25 tháng 5 năm 2013 – Chương trình truyền hình 24h Sống xanh phối hợp cùng Ngân hàng Thương mại Cổ phần An Bình (ABBANK) và Đội Công tác xã hội – Học viện HCQG tổ chức hoạt động tình nguyện mang tên “Đạp xe vì môi trường” tại Thành phố Hồ Chí Minh.

Thư ngỏ chương trình Be Change Agents 2013
Thư ngỏ chương trình Be Change Agents 2013

Bạn có biết - những vấn đề phát triển hiện tại ở Việt Nam và trên thế giới: Cứ 1 giây, thế giới có 1 người chết vì đói. [1] Mỗi ngày, thế giới có 2.000 trẻ em tử vong vì tiêu chảy, 90% trong đó do nước ô nhiễm.[2] Mỗi ngày, Việt Nam có 10 trẻ em chết đuối, tỉ lệ cao nhất trong khu vực.[3]....

Dự án Bản Đồ Tiếp Cận tuyển tình nguyện viên
Dự án Bản Đồ Tiếp Cận tuyển tình nguyện viên

Dự án Bản Đồ Tiếp Cận thuộc Trung tâm Khuyết tật và phát triển (DRD) đang tìm kiếm các CTV cho các hoạt động sẽ diễn ra từ tháng 6/2013 đến tháng 01/2014.

THƯ NGỎ TUYỂN TNV:Trải Nghiệm Mùa Hè Rực Lửa Cùng Hành Trình Xuyên Miền Tây “Hành Trình Trên Đất Phù Sa” 2013!
THƯ NGỎ TUYỂN TNV:Trải Nghiệm Mùa Hè Rực Lửa Cùng Hành Trình Xuyên Miền Tây “Hành Trình Trên Đất Phù Sa” 2013!

Hoạt động TÌNH NGUYỆN – đương đầu với khó khăn- khám phá năng lực bản thân – du lịch -kết bạn với những bạn trẻ cùng chung chí hướng – bon bon trên chiếc xe đạp qua những vựa lúa bạt ngàn – những dòng sông mênh mông sóng nước….Vậy bạn còn chần chờ gì nữa? Hãy trải nghiệm một mùa hè rực lửa cùng "Hành trình trên đất phù sa" xuyên miền tây 2013 !!!

Thư mời tham dự chương trình IChallenged 2013
Thư mời tham dự chương trình IChallenged 2013

Nỗ lực chuyển động, thích nghi với cuộc sống, vươn lên, khẳng định bản thân hay phó mặc cho dòng đời xô đẩy - tất cả cuối cùng vẫn là do chúng ta quyết định.

Đăng ký tham gia Câu lạc bộ Tiếng Anh Sống Xanh
Đăng ký tham gia Câu lạc bộ Tiếng Anh Sống Xanh

Để nâng cao khả năng nói tiếng Anh cho các bạn có nhu cầu, Mạng Xã hội Sống Xanh thành lập Câu lạc bộ tiếng Anh hoạt động vào tối thứ 3 hàng tuần với các nội dung cơ bản sau

ĐẠI SỨ MÔI TRƯỜNG 2013
ĐẠI SỨ MÔI TRƯỜNG 2013

Bạn quan tâm đến các vấn đề môi trường? Bạn mong muốn đóng góp ý tưởng và hành động với một trái tim nhiệt huyết nhằm cải thiện chất lượng môi trường sống trong cộng đồng? Hãy tham gia và trở thành Đại sứ Môi trường Bayer 2013 để cùng Bayer Việt Nam mang đến cho cộng đồng một môi trường sống tốt đẹp hơn.

ĐƠN ĐĂNG KÝ THAM GIA RỪNG ƠI 2013
ĐƠN ĐĂNG KÝ THAM GIA RỪNG ƠI 2013

500 học sinh, sinh viên sẽ tham dự Tháng giáo dục về rừng nhiệt đới. Sau đó, 50 bạn với thành tích xuất sắc nhất sẽ được tuyển chọn để tham gia Trại hè khám phá ở vườn Quốc Gia Cúc Phương. Được tài trợ bởi Quỹ vì hoà bình Davis, chi phí của dự án Rừng Ơi! sẽ được miễn phí hoàn toàn.

Cơ hội nhận sách miễn phí: “Sức mạnh của những người phi lý”
Cơ hội nhận sách miễn phí: “Sức mạnh của những người phi lý”

Chỉ cần SHARE poster đăng ký hội thảo trực tuyến tại http://on.fb.me/13DnFVE trong thời gian từ 20/05 – 24h, 26/05/2013, BTC sẽ ngẫu nhiên chọn ra 03 người may mắn để trao 03 cuốn sách "Sức mạnh của những người phi lý” do Trung tâm Hỗ trợ Sáng kiến Phục vụ Cộng đồng (CSIP) trao tặng.

Chương trình tình nguyện cho giới trẻ Asean
Chương trình tình nguyện cho giới trẻ Asean

Chương trình tình nguyện cho giới trẻ Asean có thể hiểu là tăng cường vai trò của công tác tình nguyện trong Kế hoạch tổng thể xây dựng cộng đồng văn hoá xã hội Asean (ASCC) và nỗ lực đưa Asean gần hơn tới người dân trong khu vực.

Tuyển tình nguyện viên tham gia Ngày hội môi trường năm 2013
Tuyển tình nguyện viên tham gia Ngày hội môi trường năm 2013

Hoạt động bảo vệ môi trường là hoạt động giữ cho môi trường trong lành, sạch đẹp; phòng ngừa, hạn chế tác động xấu đến môi trường. Chính vì thế, hoạt động bảo vệ môi trường là một trong những yếu tố cần thiết góp phần đảm bảo sức khỏe con người, cũng như xây dựng nếp sống văn minh đô thị, giúp vệc nâng cao ý thức của người dân trong lĩnh vực môi trường và hướng đến phát triểm môi trường bền vững. Văn phòng Kết nối tình nguyện (Trung tâm Công tác xã hội Thanh niên) tuyển tình nguyện viên tham gia

CHƯƠNG TRÌNH HỖ TRỢ DOANH NGHIỆP XÃ HỘI 2013
CHƯƠNG TRÌNH HỖ TRỢ DOANH NGHIỆP XÃ HỘI 2013

Từ ngày 23/05/2013 Trung tâm Hỗ trợ Sáng kiến Phục vụ Cộng đồng (CSIP) chính thức mời các tổ chức, doanh nghiệp đăng ký tham gia Chương trình Hỗ trợ Doanh nghiệp xã hội 2013.

GREEN DRINKS 17 - Passion for Sustainability, Ho Chi Minh City 28/5/2013
GREEN DRINKS 17 - Passion for Sustainability, Ho Chi Minh City 28/5/2013

Đam mê về môi trường của bạn là gì? Tại sao bạn lại lựa chọn làm việc hoặc quan tâm đến lĩnh vực phát triển bền vững ở Việt Nam hay ở bất cứ đâu trên thế giới. 4 diễn giả “nghiệp dư” lần này, mỗi người sẽ có 10 phút sẽ chia sẻ niềm đam mê của họ với hoạt động môi trường tại sự kiện Green Drinks lần thứ 17 của chúng tôi được tổ chức vào ngày 28/5.

ASEAN YOUTH VOLUNTEER PROGRAMME (AYVP)
ASEAN YOUTH VOLUNTEER PROGRAMME (AYVP)

Tổ chức AYVP đang tuyển 100 thanh niên tình nguyện trong khu vực ASEAN từ 18 đến 30 tuổi, với tinh thần và nguyện vọng giúp đỡ, bảo tồn và bảo vệ khu vực ASEAN khỏi vấn đề khai thác nguồn tài nguyên quá mức và biến đổi khí hậu (15/08/2013 – 20/09/2013). Chương trình sẽ cung cấp vé máy bay khứ hồi, chỗ ở, 3 bữa ăn mỗi ngày, chi phí đi lại trong suốt thời gian diễn ra dự án tại Malaysia.

Giờ Trà chiều 5 - Hưởng ứng Ngày Môi trường Thế giới
Giờ Trà chiều 5 - Hưởng ứng Ngày Môi trường Thế giới

Bạn muốn săn lùng quần áo, đồ dùng còn tốt với giá rẻ như cho không? Hay bạn có một số đồ cũ không biết để đâu?
Bạn thích nhâm nhi trà bánh, trò chuyện với những người bạn và tham gia các hoạt động ý nghĩa và thú vị với những phần quà hấp dẫn?

Dichung.vn tuyển Cộng tác viên Truyền thông
Dichung.vn tuyển Cộng tác viên Truyền thông

Dichung.vn là một doanh nghiệp xã hội vận hành ứng dụng đi chung xe trên online và mobile. Trên các nền tảng này, thành viên có thể chia sẻ ( mua bán) những chỗ trống trên phương tiện của mình, qua đó cùng nhau tiết kiệm chi phí, giảm ùn tắc giao thông và bảo vệ môi trường.

Diễn Đàn Tuổi Trẻ Việt Nam 2013 mở đơn đăng ký
Diễn Đàn Tuổi Trẻ Việt Nam 2013 mở đơn đăng ký

Được thành lập từ năm 2008, xuất phát từ niềm mong mỏi thành lập được một diễn đàn dành riêng cho tuổi trẻ tại Việt Nam, nơi các bạn khám phá và thảo luận những kiến thức không có trong nhà trường, được thúc đẩy để khám phá tiềm năng của cá nhân mình, cũng như được gặp gỡ và giao lưu với những ngừoi trẻ có cùng ham muốn tìm tòi học hỏi

Thông báo casting phim ngắn “ABC về Biến đổi khí hậu”
Thông báo casting phim ngắn “ABC về Biến đổi khí hậu”

“ABC về Biến đổi khí hậu” là một bộ phim ngắn được thực hiện bởi Trung tâm Sống và Học tập vì Môi trường và Cộng đồng (Live&Learn), tài trợ bởi Plan tại Việt Nam,. Đây là bộ phim tài liệu kết hợp với hoạt hình nhằm truyền tải các kiến thức chung về biến đổi khí hậu theo cách dễ hiểu và vui nhộn nhất với đối tượng trẻ em cũng như những người quan tâm khác. Nội dung chính là phần thuyết trình của người dẫn (MC) kết hợp đối thoại với một nhân vật hoạt hình là Bé Xanh (Trái Đất).

Tìm kiếm đại sứ thiện chí cho quyền của trẻ em gái ở châu Á
Tìm kiếm đại sứ thiện chí cho quyền của trẻ em gái ở châu Á

Chương trình Trao đổi đại sứ thiện chí cho quyền của trẻ em gái ở châu Á (The Asian Girls’ Human Rights Ambassador Exchange Program) đang tìm kiếm ba đai sứ (nữ, dưới 18 tuổi) để tham gia chương trình.

THÔNG BÁO TUYỂN TÌNH NGUYỆN VIÊN CHƯƠNG TRÌNH "NGÀY HỘI VIỆT NAM" 2013
THÔNG BÁO TUYỂN TÌNH NGUYỆN VIÊN CHƯƠNG TRÌNH \

Lời đầu tiên, SDC xin gửi đến tất cả các bạn lời tri ân sâu sắc nhất vì sự nhiệt tình tham gia và ủng hộ của các bạn đối với mọi hoạt động của SDC trong suốt thời gian vừa qua. Chính các bạn đã tạo nên sự thành công trong mỗi chương trình do SDC tổ chức. SDC cũng vui mừng gửi đến các bạn thông tin tuyển TNV cho chương trình “Ngày hội Việt Nam” (tên tạm thời) được tổ chức vào tháng 10 tới. Hy vọng rằng, SDC sẽ tiếp tục nhận được sự quan tâm nhiệt tình của các bạn!

THƯ MỜI THAM DỰ NHÓM THỬ NGHIỆM “TIÊU DÙNG BỀN VỮNG”
THƯ MỜI THAM DỰ NHÓM THỬ NGHIỆM “TIÊU DÙNG BỀN VỮNG”

Sống xanh Việt Nam (GGVn) là dự án thúc đẩy tiêu dùng bền vững được tài trợ bởi Liên minh châu Âu, hướng đến người tiêu dùng có thu nhập trung bình tại thành thị. Các đối tác chính thức của dự án là Trung tâm sản xuất sạch hơn Việt Nam (VNCPC), Viện Công Nghệ Châu Á tại Việt Nam (AIT-VN) và trường Đại học Công nghệ Delft (Hà Lan). Tại thành phố Hồ Chí Minh, Mạng xã hội SốngXanh.vn là đối tác đồng tổ chức và triển khai các hoạt động thử nghiệm.

Không chỉ là tre: Phát triển bền vững và thiết kế sản phẩm
Không chỉ là tre: Phát triển bền vững và thiết kế sản phẩm

Tháng này Green Drink sẽ chào đón Andrew Nguyen Miller với phần nói chuyện về việc chúng ta vượt qua khỏi vật liệu và năng lượng như thế nào để sống một cách bền vững hơn trong thế giới này.

THƯ MỜI Câu chuyện vỉa hè: Từ nem chua đến taxi
THƯ MỜI  Câu chuyện vỉa hè: Từ nem chua đến taxi

“Mỗi dòng sông thường nhận về mình những nguồn nước nhỏ to. Mỗi thành phố cũng nhận về mình tất cả sản vật, tinh túy, con người của mọi địa phương...Hà Nội là dòng sông ấy, thành phố ấy.

"PERSONAL LEADERSHIP TO MAKE SOCIAL IMPACT" PROGRAM
\

This program is designed for 16 young people (18 - 25 years old) who would love to: - Discover and understand personal issues. Develop personal capacity and leadership - Create social impact through social projects in sustainable development issues.

Thư ngỏ Dự án "Ngày hè Xanh 2013"
Thư ngỏ Dự án \

ngày hội “Ngày hè xanh” được tổ chức thường niên bởi Tổ chức Hành động vì động vật hoang dã (Action for Wildlife Organization – AWO) quay trở lại trong dịp hè năm 2013 với chủ đề “CHÚNG TA CHỈ CÓ MỘT HÀNH TINH”.

Tuyển TNV chiến dịch KHÔNG KHÓI XE
Tuyển TNV chiến dịch KHÔNG KHÓI XE

Với mong muốn đạt được hiệu quả cao nhất ở giai đoạn 2, Nhóm hoạt động Điểm đến xanh-Green Destination cần tuyển khoảng 30 TNV ở các vị trí : Nhóm hệ thống nhà hàng, nhóm truyền thông và nhóm sự kiện

Đăng ký học ngôn ngữ ký hiệu
Đăng ký học ngôn ngữ ký hiệu

Bạn có hiểu thông điệp mà cô bé trong hình đang muốn nói?

Khởi động cuộc thi “Ý tưởng xanh”
Khởi động cuộc thi “Ý tưởng xanh”

Với chủ đề “Cùng hành động một thành phố không rác”, Ban Thường vụ Thành đoàn TP.HCM đã tổ chức cuộc thi thiết kế mô hình từ sản phẩm tái chế “Ý tưởng xanh” năm 2013. Cuộc thi được triển khai nhằm nâng cao nhận thức, tăng cường vai trò của đoàn viên, thanh niên trong việc tuyên truyền và phát huy sáng kiến, ý tưởng, giải phát chế tạo các sản phẩm, mô hình từ vật liệu tái chế.

NỘI DUNG CHƯƠNG TRÌNH NGÀY HỘI "TÚI XANH VÌ MÔI TRƯỜNG XANH"
NỘI DUNG CHƯƠNG TRÌNH NGÀY HỘI \

Đây là thông tin chính thức về ngày hội "Túi xanh vì môi trường xanh" diễn ra vào chủ nhật tuần này nè các bạn!

Cuộc thi sáng kiến hành động vì vùng ven biển Việt
Cuộc thi sáng kiến hành động vì vùng ven biển Việt

Hưởng ứng Tuần lễ Biển và Hải đảo phát động từ ngày 1-8/6/2013 và Ngày đại dương Thế giới 8/6/2013, Chương trình Rừng ngập mặn cho Tương (MFF) Việt Nam dưới sự điều phối của Tổ chức Bảo tồn Thiên nhiên Quốc tế (IUCN) phát động cuộc thi “Sinh viên Việt Nam hành động vị một tương lai tốt đẹp, thịnh vượng và an toàn cho vùng ven biển Việt Nam” tập trung vào các giải pháp bảo tồn, phục hồi các hệ sinh thái ven biển góp phần bảo vệ tương lai vùng biển Việt Nam.

Tuyển CTV và TNV cho dự án "Giấc mơ 1001 khoảnh khắc"
Tuyển CTV và TNV cho dự án \

Dự án “Giấc mơ 1001 khoảnh khắc” là một sáng kiến của Mái ấm Hoa Hồng Nhỏ trực thuộc Hội bảo trợ trẻ em TP.HCM, dự án được tổ chức nhằm mục đích gây quỹ - giúp cho những trẻ em gái xây dựng một cuộc sống tốt đẹp hơn. Thông qua đó, chúng tôi cũng mong muốn nâng cao nhận thức cho các trẻ em gái, tạo điều kiện cho trẻ giao lưu, học tập về quyền trẻ em, giáo dục giới tính, kỹ năng sống.

Chương trình nâng cao năng lực thủ lĩnh trẻ "I AM A CLIMATE CITIZEN"
Chương trình nâng cao năng lực thủ lĩnh trẻ \

Năm 2013 và 2014 , 350.org Việt Nam cùng mạng lưới 350.org tại hầu hết các quốc gia phát động và thực hiện chiến dịch toàn cầu về BĐKH có tên gọi Global Power Shift vì một tương lai phát triển bền vững dựa trên các giải pháp về năng lượng sạch và thân thiện với môi trường. Chiến dịch tại Việt Nam, với tên gọi Vietnam Power Shift, sẽ bao gồm một loạt các hoạt động và dự án, diễn ra từ tháng 07.2013 tới hết năm 2014, tại 20 tỉnh thành trong cả nước.

JCI VIỆT NAM - ĐĂNG KÝ THAM GIA MINI MARATHON-"Đạp xe vào tương lai"
JCI VIỆT NAM - ĐĂNG KÝ THAM GIA MINI MARATHON-\

Chương trình Mini Marathon – chạy bộ gây quỹ từ thiện diễn ra vào ngày 4/8/2013 là một trong hai hoạt động gây quỹ thường niên của dự án Cycle to Future (Đạp xe vào tương lai) do Câu lạc bộ JCI Việt Nam, trực thuộc Hội Doanh Nhân Trẻ TP.HCM tổ chức với sự tài trợ chính của Công ty Chứng khoán Ngân Hàng Việt Nam Thịnh Vượng - VPBANK Security (VPBS).

Tuyển tình nguyện viên dự án nước sạch cho xã An Hiệp, huyện Ba Tri, tỉnh Bến Tre
Tuyển tình nguyện viên dự án nước sạch cho xã An Hiệp, huyện Ba Tri, tỉnh Bến Tre

Bạn đam mê lĩnh vực báo chí, PR, marketing? Bạn mong muốn thử thách bản thân và những kiến thức đã học trong một chiến dịch truyền thông? Bạn yêu thích các công việc tình nguyện? Vậy sao bạn không cùng với EVG chúng tôi đến với An Hiệp và đốt cháy mùa hè này bằng những thông điệp đầy yêu thương.

Dự án Big Friend Foundation tuyển 2 vị trí Coordinator
Dự án Big Friend Foundation tuyển 2 vị trí Coordinator

Dự án Big Friend Foundation, là Quỹ hoạt động xã hội được thành lập với mục tiêu tiếp sức và trợ lực cho các bạn trẻ hiếu học nhưng gặp khó khăn về tài chính có cơ hội hoàn tất ước mơ Đai học/Cao đẳng, đồng thời trang bị cho các em kỹ năng sống và làm việc cần thiết thông qua các hoạt động huấn luyện, chia sẻ, và kết nối của chương trình. Dự án sẽ ra mắt vào giữa tháng 8/2013 tới.

Chương trình Ngày Hè Xanh lần 1/2013 - Chúng Ta Chỉ Có Một Hành Tinh

Trải qua hàng ngàn năm tiến hóa và phát triển, con người luôn tự hào là thế hệ thông minh và tiến hóa nhất so với tất thảy những sinh vật đang tồn tại. Nhưng song song với đó, bạn có biết chúng ta cũng đang tự tay phá hủy Trái Đất - ngôi nhà chung của muôn loài. Với hy vọng góp phần thay đổi nhận thức của mọi người và cùng nhau hành động vì một tương lai tốt đẹp hơn,  tổ chức Hành động vì động vật hoang dã (Action for Wildlife Organization-AWO) chính thức phát động chuỗi sự kiện "Ngày hè xanh 2013" với chủ đề 'Chúng ta chỉ có một hành tinh" nhằm nâng cao hiểu biết và ý thức trách nhiệm của các em nhỏ dành cho mẹ Trái Đất thân yêu.

Giao lưu sinh viên ngành du lịch các Thành phố tiểu vùng Mê-kông
Giao lưu sinh viên ngành du lịch các Thành phố tiểu vùng Mê-kông

Chương trình Giao lưu sinh viên ngành du lịch các Thành phố tiểu vùng Mê-kông (gọi tắt là TYA) năm 2013 là một nội dung hoạt động triển khai theo tinh thần tuyên bố chung của Hội nghị Thị trưởng các Thành phố tiểu vùng Mê-kông về hợp tác và phát triển du lịch lần thứ nhất ngày 13/09/2012 tại TP. Hồ Chí Minh.

Chương trình "1000 ĐẠI SỨ GÓP SÁCH CHO TRẺ EM NÔNG THÔN VIỆT".
Chương trình \

Với ý nghĩa tất cả mọi tấm lòng nhân ái đều có thể trở thành Đại sứ cùng Chương trình Tủ sách Giải Trí & Giáo Dục quyên góp, kêu gọi & lan tỏa thông tin để xây dựng Tủ sách miễn phí cho cho trẻ em & người dân trong cộng đồng nghèo trong cả nước Việt Nam.

Ra mắt sách "Lá rơi trong thành phố" ngày 28/7/2013
Ra mắt sách \

Ra mắt sách "LÁ RƠI TRONG THÀNH PHỐ - Một Hà Nội đương đại" Vào lúc 8h30 - 10h30 tại quán cafe Jardin d'Amour – Khu vườn tình yêu số 8 Bis Nguyễn Văn Tráng, P. Bến Thành, Q.1, TP.HCM

Green Drinks Saigon - Tuesday 30th July - Antartica and 350.org!
Green Drinks Saigon - Tuesday 30th July - Antartica and 350.org!

Hãy tham dự Green Drinks để cùng thảo luận với Chị Hoàng Minh Hồng về hai chủ đề rất thú vị: trải nghiệm khám phá bắc cực và niềm đam mê cũng như nỗ lực của của chị trong việc thúc đẩy và kết nối thế hệ trẻ với các hoạt động bảo vệ môi trường cũng như chống lại sự thay đổi khí khậu ở Việt Nam cùng phong trào 350.org.

Green Hashtag phát động cuộc thi ảnh “Bye bye rác”
Green Hashtag phát động cuộc thi ảnh “Bye bye rác”

Khuyến khích hoạt động ảnh trên Facebook về đề tài “Vì một Sài Gòn xanh không rác” và phổ biến hashtag #byebyerac. Đây là cơ hội để bạn chủ động ghi lại tình yêu thành phố xanh-sạch của mình qua ảnh đăng tải lên Facebook để nhiều người cùng xem.

Offline giới thiệu cuộc thi ảnh “Bye Bye Rác"
Offline giới thiệu cuộc thi ảnh “Bye Bye Rác\

Chiều ngày 3/8/2013 tại Cafe Sống Xanh - Số 64 Hồ Hảo Hớn, Q1, TPHCM sẽ diễn ra Offline lần 1 giới thiệu cuộc thi ảnh “Bye Bye Rác" do nhóm môi trường Green Hashtag - top 8 cuộc thi đại sứ môi trường Bayer phối hợp với mạng xã hội SốngXanh.vn - Sống Xanh Cafe và công ty lữ hành du lịch Việt Kingfisher tổ chức.

Cuộc thi "Biến đổi khí hậu - Tiếng nói của em, vai trò của em"
Cuộc thi \

Bạn có biết Việt Nam là một trong những nước chịu ảnh hưởng nặng nề của biến đổi khí hậu? Và trẻ em là một trong những đối tượng dễ bị tổn thương nhất trước sự đổi thay của khí hậu? Là một người trẻ, nếu có cơ hội nói chuyện với các vị lãnh đạo về biến đổi khí hậu, bạn sẽ nói gì?

VIETNAM - JAPAN YOUTH EXCHANGE 2013
VIETNAM - JAPAN YOUTH EXCHANGE 2013

AAEE (Asia Association of Education and Exchange) would like to introduce Vietnam – Japan Youth Exchange 2013 (VJYE 2013) as the first AAEE program taken place in Vietnam. We greatly thank for the support from Vietnamese organizations including Hoa Sen University, Youth To Change firm and the media activities sponsored by Marketing Club (MARC).

Chiếu phim Pháp: JOYEUX NOEL (CHÚC MỪNG GIÁNG SINH) - 2005
Chiếu phim Pháp: JOYEUX NOEL (CHÚC MỪNG GIÁNG SINH) - 2005Giữa “địa ngục trần gian” của Chiến tranh thế giới thứ nhất lại có một trận chiến lạ kỳ. Nơi đó, ngay tại mặt trận, binh lính các bên tham chiến đã... bắt tay nhau, cùng thưởng thức những bản nhạc opera thắm thiết, cùng mời nhau chung rượu, khoe hình người thân, đùa giỡn như những người bạn, xóa nhòa ranh giới địch - ta...
HỌC BỔNG AMCHAM 2013 - NGÀY HỘI THÔNG TIN INFO SESSION
HỌC BỔNG AMCHAM 2013 - NGÀY HỘI THÔNG TIN INFO SESSION

HỌC BỔNG AMCHAM 2013 “Khởi đầu tương lai nhân tài Việt!” Chương trình sẽ trao 45 suất học bổng trị giá 10.000.000 đồng/suất và nhiều khóa huấn luyện kỹ năng mềm cho các sinh viên với thành tích học tập xuất sắc, giao tiếp tốt bằng tiếng Anh và tích cực tham gia vào các hoạt động xã hội đến từ 11 trường đại học tại thành phố Hồ Chí Minh: Khối Đại học Quốc gia TP.HCM: ĐH Bách khoa ĐH Khoa học Tự nhiên ĐH Khoa học Xã hội và Nhân văn ĐH Kinh tế - Luật ĐH Công nghệ Thông tin ĐH Quốc tế ĐH Ngoại thươn

Cuộc thi ảnh online "Bye Bye Rác"
Cuộc thi ảnh online \

Cơ hội để bạn thể hiện tình yêu Sài Gòn Xanh - Sạch - Đẹp

HỘI THẢO: HUNTING INTERNATIONAL OPPORTUNITIES
HỘI THẢO:  HUNTING INTERNATIONAL OPPORTUNITIES

DỰ ÁN SEALNET VIỆT NAM 2013 HỘI THẢO: SĂN CƠ HỘI QUỐC TẾ HUNTING INTERNATIONAL OPPORTUNITIES

Chương trình nguyện quốc tế trong tháng 8 năm 2013 của VPV tại miền Bắc
Chương trình nguyện quốc tế trong tháng 8 năm 2013 của VPV tại miền Bắc

Sau đây là thông tin về chương trình nguyện quốc tế trong tháng 8 năm 2013 của VPV tại miền Bắc. Thời gian: 19/08 – 31/08/2013

Giờ Trà chiều 6 - Trung Thu Xanh, Tp.HCM ngày 25/8/2013
Giờ Trà chiều 6 - Trung Thu Xanh, Tp.HCM ngày 25/8/2013

Bạn muốn săn lùng quần áo còn như mới với giá rẻ như cho không? Hay bạn có một số đồ cũ không biết để đâu? Bạn thích nhâm nhi trà bánh, trò chuyện với những người bạn và tham gia các hoạt động ý nghĩa và thú vị với những phần quà hấp dẫn? Đặc biệt trong chương trình lần này bạn sẽ có cơ hội có những tấm vé tham gia sự kiện Tri ân độc giả Thế giới gia đình (do Tạp chí Thế giới gia đình - TGGĐ tổ chức) chủ đề Kết nối ước mơ với sự có mặt của diễn viên, người mẫu Omar Borkan Al Gala từ Saudi Arabia.

Chương trình giao lưu "Mẹ ơi, con đồng tính" - Hiểu về đồng tính, luõng tính và chuyển giới
Chương trình giao lưu \

Vào lúc 08h40, thứ bảy ngày 24/08/2013 diễn ra chương trình giao lưu "Mẹ ơi, con đồng tính" - Hiểu về đồng tính, lưỡng tính và chuyển giới, tại quán Siena Coffee - số 64 Trần Quốc Thảo, P7, Q3, TP.HCM

English Access Microscholarship Program
English Access Microscholarship Program

Vào tháng 9, 2013, Tổng Lãnh sự quán Hoa Kỳ tại TP Hồ Chí Minh sẽ hợp tác với Trung tâm Anh văn Hội Việt Mỹ khai giảng lớp tiếng Anh Access mới cho 25 học viên có hoàn cảnh khó khăn ở TPHCM. Đây là lớp miễn phí, học vào buổi chiều tối (lịch học sẽ thông báo sau), thời gian từ tháng 9, 2013 đến tháng 12, 2014. Đề nghị các anh chị hoặc tổ chức muốn đề cử học viên liên hệ với Ô. Nguyễn Hữu Luận, Phòng Văn hoá-Thông tin (Email: NguyenLH2@state.gov hoặc điện thoại số 3520 4618). Hạn chót đề cử là th

Dự án “Rút Ngắn Khoảng Cách - Hè 2013: Vì trẻ em”
Dự án “Rút Ngắn Khoảng Cách - Hè 2013: Vì trẻ em”

Từ tháng 7-2013 đến tháng 9-2013, Trung tâm Hỗ trợ Phát triển Cộng đồng LIN tổ chức cuộc vận động tài trợ “Rút Ngắn Khoảng Cách - Hè 2013: Vì trẻ em”. Đây là cuộc vận động thường niên của LIN nhằm hỗ trợ kinh phí cho các dự án xã hội tại TP. HCM đang gặp khó khăn về tài chính.

Khóa học "Lý thuyết và kỹ thuật tham vấn tâm lý_K2" (Khai giảng: 04/09/2013)
Khóa học \

Thông tin khóa học "Lý thuyết và kỹ thuật tham vấn tâm lý" _ khóa 2

Dự án ĐEN HAY TRẮNG miền Nam tuyển thành viên
Dự án ĐEN HAY TRẮNG miền Nam tuyển thành viên

1. GIỚI THIỆU CHUNG Nhóm Đen hay Trắng được thành lập sau khóa học Be change Agents 2011. Sau 2 năm hoạt động, số thành viên của nhóm là 25 người - là các bạn trẻ đến từ nhiều trường đại học khác nhau nhưng cùng chung mục đích tổ chức các sự kiện để tăng cường nhận thức của giới trẻ về lối sống minh bạch cũng như tạo sân chơi cho các bạn trẻ quan tâm có cơ hội tìm hiểu, giao lưu và chia sẻ quan điểm của mình về vấn đề “Minh Bạch”

Thông báo tuyển đội chơi chương trình "City Greeners - Thợ xanh thành phố mùa 2"
Thông báo tuyển đội chơi chương trình \

Thợ Xanh Thành Phố đã trở lại !!! Sau thành công rực rỡ của mùa 1, Thợ Xanh Thành Phố mùa 2 với chủ đề “Ăn có trách nhiệm” hứa hẹn rất nhiều điều thú vị và hấp dẫn.

CUỘC THI LÀM THƠ ĐẶT VÈ CHỦ ĐỀ GIẢM NHẸ RỦI RO THIÊN TAI
CUỘC THI LÀM THƠ ĐẶT VÈ CHỦ ĐỀ GIẢM NHẸ RỦI RO THIÊN TAI

Hiện nay, Trung tâm Sống và Học tập vì Môi trường và Cộng đồng (Live & Learn) đang biên soạn Bộ thẻ trò chơi về Giảm nhẹ rủi ro thiên tai cho học sinh. Với mong muốn xây dựng bộ thẻ thú vị và gần gũi với các em nhỏ, thân mời các bạn tham gia cuộc thi về làm thơ và đặt vè mô tả nội dung Giảm nhẹ rủi ro thiên tai. Ví dụ như thẻ có nội dung hướng dẫn ngồi kiểu con ếch khi có dông tới có thể thay bằng câu vè

THƯ MỜI Đấu giá quà lưu niệm gây quỹ Đèn Trời Xuống Phố 2013
THƯ MỜI  Đấu giá quà lưu niệm gây quỹ  Đèn Trời Xuống Phố 2013

Đèn Trời Xuống Phố là chương trình thiện nguyện lớn nhất hằng năm của câu lạc bộ Saigon Hotpot với mục đích hỗ trợ các em nhỏ đang gặp khó khăn về mặt vật chất lẫn tinh thần. Chúng tôi trân trọng kính mời anh/chị đến tham dự buổi Đấu Giá quà lưu niệm từ các quốc gia trên thế giới nhằm mục đích gây quỹ hỗ trợ các em học sinh trường tiểu học Tân Cang, Ấp Tân Cang, Xã Phước Tân, Huyện Long Thành, Tỉnh Đồng Nai.

Thư mời Tham dự: Cà phê Ý tưởng Lần 2 - Năm 2013 -“Hiến kế Thanh niên & Sống xanh cùng Buýt”
Thư mời Tham dự: Cà phê Ý tưởng Lần 2 - Năm 2013 -“Hiến kế Thanh niên & Sống xanh cùng Buýt”

Bạn mong chờ điều gì từ NÀO TA CÙNG BUÝT 2013 ???

 

Trở thành một thành viên sống xanh của nhà Buýt?

Được góp ý tưởng về một hệ thống xe Buýt an toàn và thân thiện?

Được chia sẻ tâm tư, tình cảm, hiến kế của mình về một môi trường xanh?

Hay bạn muốn một nơi để được lắng nghe, trao dồi kỹ năng và giao lưu với bạn bè?

FFSC handicrafts @ VinGallery Art Market on Saturday September
FFSC handicrafts @ VinGallery Art Market on Saturday September

After the summer break, next Saturday 14th is our next FFSC handicrafts sales @ The Art Market at VinGallery in D2. There will be activities throughout the day and we have new products waiting for you...

THÔNG CÁO BÁO CHÍ: DỰ ÁN “AN TOÀN GIAO THÔNG TRONG MẮT EM”
THÔNG CÁO BÁO CHÍ: DỰ ÁN “AN TOÀN GIAO THÔNG TRONG MẮT EM”

Nối tiếp sự thành công của Chiến dịch nâng cao nhận thức An toàn giao thông trong học đường, dự án “An toàn giao thông trong mắt em 2012” được tổ chức tại các trường tiểu học TP.HCM, đồng thời hưởng ứng năm an toàn giao thông 2013, Ban văn hóa – giáo dục thanh thiếu niên vì cộng đồng BabyDream – Unesco phối hợp cùng Phòng Giáo dục Đào tạo Quận 1 TP.HCM tiếp tục thực hiện dự án “An toàn giao thông trong mắt em 2013” với chuyên đề: “Mũ bảo hiểm an toàn cho em” tại trường tiểu học Lương Thế Vinh,

Cuộc thi ảnh vì cuộc sống tốt đẹp hơn cho người VN
Cuộc thi ảnh vì cuộc sống tốt đẹp hơn cho người VN

Cuộc thi ảnh với chủ đề: “Các hệ thống thực phẩm bền bững vì cuộc sống tốt đẹp hơn cho người Việt Nam” do Văn phòng đại diện Tổ chức Lương Nông (FAO) tại Việt Nam tổ chức sẽ diễn ra từ nay cho đến hết ngày 30/9/2013.

Cuộc thi nhiếp ảnh Quốc tế "Tiết kiệm nước 2013"
Cuộc thi nhiếp ảnh Quốc tế \

Bạn yêu thích nhiếp ảnh? Bạn quan tâm đến môi trường? Vậy thì bạn hãy tham gia Cuộc thi nhiếp ảnh Quốc tế - Tiết kiệm nước 2013 ngay thôi. Hạn cuối nhận tác phẩm: 30/09/2013

Khởi động cuộc thi viết tiết kiệm điện năng năm 2013
Khởi động cuộc thi viết tiết kiệm điện năng năm 2013

Nhằm tiết kiệm điện hướng tới giảm phát thải khí nhà kính, ngày 30-9, tại Hà Nội, Viện Chiến lược Chính sách- Bộ Tài Nguyên & Môi trường phối hợp với Hội nhà báo tổ chúc cuộc thi viết “Loại bỏ bóng đèn sợi đốt năm 2013”.

Unilever Future Leader's League 2013
Unilever Future Leader\'s League 2013

Unilever Vietnam for the first time is launching its Future Leaders’ League (UFLL) in this year 2013. This is a league of young leaders and a league of leaders for the future.

TALKSHOW CHÚNG TÔI THAY ĐỔI THẾ GIỚI
TALKSHOW  CHÚNG TÔI THAY ĐỔI THẾ GIỚI

Đến để chia sẻ những câu chuyện về cách mà chúng ta đang cùng nhau thay đổi thế giới. Những câu chuyện về cách cưu mang người nghèo của Cơm có thịt, chống tham nhũng của PAPI hay xóa bỏ kỳ thị với người đồng tính của trung tâm ICS.

Tuyển tình nguyện viên đón Tàu thanh niên Đông Nam Á 2013
Tuyển tình nguyện viên đón Tàu thanh niên Đông Nam Á 2013

Thành Đoàn Thành phố Hồ Chí Minh vừa ra thông báo tuyển tình nguyện viên đón Tàu Thanh niên Đông Nam Á lần thứ 40 – năm 2013. Chương trình Tàu Thanh niên Đông Nam Á lần thứ 40 sẽ diễn ra từ ngày 28/10 đến 17/12/2013 và sẽ cập Cảng Sài Gòn, hoạt động tại Thành phố Hồ Chí Minh từ ngày 14/11 đến ngày 17/11/2013.

Green Drinks Saigon - Super Energy Savings with Metro Vietnam (HCMC 26/9)
Green Drinks Saigon - Super Energy Savings with Metro Vietnam (HCMC 26/9)

Nhà bán buôn khổng lồ tiết kiệm năng lượng thế nào? Green Drinks đã trở lại và sẽ chia sẻ câu chuyện thực tế của " Người Khổng Lồ" bán buôn Metro Việt Nam giảm lượng tiêu thụ năng lượng như thế nào. Giám đốc điều hành của Metro C&C, Erik Heens sẽ giới thiệu về phương thức kiểm soát Năng lượng, những kết quả đã đạt được và những kế hoạch sắp tới để tăng cường hiệu suất trong thời gian sắp tới.

Tuyển tình nguyện viên đi chung với người khuyết tật tại Hà Nội

Bạn là sinh viên, học sinh hay người đi làm? Bạn mong muốn được đóng góp cho các hoạt động xã hội? Bạn muốn được tiếp xúc và hỗ trợ những người có hoàn cảnh khó khăn, đặc biệt là người khuyết tật? Bạn muốn đi chung để tiết kiệm chi phí, bảo vệ môi trường và có những người bạn mới!!!

Thư mời - Lễ tổng kết trò chơi thực tế THỢ XANH THÀNH PHỐ MÙA 2
Thư mời - Lễ tổng kết trò chơi thực tế THỢ XANH THÀNH PHỐ MÙA 2

Hãy cùng chúng tôi tham gia Lễ tổng kết chương trình trò chơi thực tế “City Greeners - Thợ xanh thành phố mùa 2” do CLB Go green – Hành trình xanh tổ chức và khám phá những điều tuyệt vời nhất thay đổi khái niệm về một ngày chủ nhật của bạn nhé!

Việt Nam hưởng ứng Ngày du lịch thế giới 27-9
Việt Nam hưởng ứng Ngày du lịch thế giới 27-9

Hưởng ứng Ngày du lịch thế giới (27-9) năm 2013 với chủ đề “Bảo vệ tài nguyên nước”, dự án Chương trình phát triển năng lực du lịch có trách nhiệm với môi trường và xã hội (Dự án EU) sẽ phối hợp với Tổng cục Du lịch Việt Nam tổ chức hoạt động thiết thực vào ngày 26 và 27-9.

KHẢO SÁT SỬ DỤNG DỊCH VỤ XE BUÝTCỦA NGƯỜI DÂN TRÊN ĐỊA BÀN TP HỒ CHÍ MINH
KHẢO SÁT SỬ DỤNG DỊCH VỤ XE BUÝTCỦA NGƯỜI DÂN TRÊN ĐỊA BÀN TP HỒ CHÍ MINH

Nằm trong khuôn khổ Dự án Nào ta cùng buýt 2013. Chương trình KHẢO SÁT SỬ DỤNG DỊCH VỤ XE BUÝTCỦA NGƯỜI DÂN TRÊN ĐỊA BÀN TP HỒ CHÍ MINH chính thức khởi động từ tháng 9/2013.

Tọa đàm xanh: “Hiến kế Thanh niên - Văn minh xe Buýt”
Tọa đàm xanh: “Hiến kế Thanh niên - Văn minh xe Buýt”

Hãy cùng tôi đến với buổi Tọa đàm xanh: “HIẾN KẾ THANH NIÊN & VĂN MINH XE BUÝT" để được lắng nghe, chia sẻ; và cùng nhau tìm ra những phương án khả thi, thiết thực cho sự đổi mới của văn minh xe buýt.

Khóa học trực tuyến “ Bắt đầu DNXH của bạn – SYSE”
Khóa học trực tuyến “ Bắt đầu DNXH của bạn – SYSE”

Xin chào Anh/Chị - những người đã, đang và sẽ quan tâm tới doanh nghiệp xã hội, Khóa học trực tuyến “ Bắt đầu DNXH của bạn – SYSE” ra đời với mục đích cung cấp cho học viên những kiến thức nền tảng về DNXH cũng như những bước căn bản để trở thành 1 doanh nhân xã hội.

[Global Citizen_Cơ hội trải nghiệm ở nc ngoài]
[Global Citizen_Cơ hội trải nghiệm ở nc ngoài]

Trong cuộc đời chúng ta luôn nhớ về những Lần đầu tiên:
Đó có thể là những trải nghiệm vui buồn, nhưng sau những lần đầu tiên đó chúng ta luôn trưởng thành hơn…

Các bạn đã bao giờ biết đến chương trình Global Citizen của AIESEC chưa?

Cơ hội tình nguyện
Cơ hội tình nguyện

Hiện nay, LIN và một số Tổ Chức Phi Lợi Nhuận đối tác đang tìm kiếm tình nguyện viên có kỹ năng chuyên môn để giúp hỗ trợ hoạt động của tổ chức. Sau đây là danh sách các mô tả công việc cho Tình Nguyện Viên Chuyên môn chưa được đăng ký:

Phát động chiến dịch "Tin vào số KHÔNG"
Phát động chiến dịch \

Quỹ Nhi đồng Liên Hiệp Quốc (UNICEF) tại VN vừa phát động chiến dịch "Believe in ZERO” (Tin vào số KHÔNG) nhằm giảm xuống 0 - số trẻ em VN bị tử vong hoặc tổn thương vì những nguyên nhân có thể phòng tránh.

Cuộc thi thiết kế “Thử thách Cách mạng năng lượng Hòa Bình Xanh”
Cuộc thi thiết kế “Thử thách Cách mạng năng lượng Hòa Bình Xanh”

Cuộc thi Thử thách Cách mạng năng lượng Hòa Bình Xanh với mục đích thiết kế chiếc máy bơm chạy bằng năng lượng tái tạo mới đã chính thức khởi động.

Mời tham dự khai mạc LHP Khoa học 2013: Đuổi theo băng tuyết
Mời tham dự khai mạc LHP Khoa học 2013: Đuổi theo băng tuyết

Khai mạc cho Liên Hoan Phim Khoa Học lần thứ 3 tại Việt Nam viện Goethe trân trọng giới thiệu đến quý vị và các bạn bộ phim đã từng đoạt rất nhiều giải thưởng quốc tế lớn „Đuổi theo băng tuyết“ vào ngày 26.10. lúc 14h.

Hội thảo SWEM & Lễ phát động "Chuyển động 50/50"
Hội thảo SWEM & Lễ phát động \

Hội thảo SWEM - Student’s Women Empowerment Movement & Lễ phát động cuộc thi : “Chuyển động 50/50 – Sáng kiến kinh doanh, Tăng quyền năng phụ nữ”

Thư mời tham dự Hội thảo "Nâng cao hiệu quả truyền thông Biến đổi khí hậu"
Thư mời tham dự Hội thảo \

Sự kiện này sẽ được tổ chức dưới hình thức một diễn đàn cho các cơ quan chính phủ, các tổ chức trong nước và quốc tế, giới truyền thông cũng như một số bạn thanh niên tiêu biểu yêu thích hoạt động truyền thông về vấn đề môi trường chia sẻ, thảo luận về việc nâng cao hiệu quả truyền thông BĐKH thông qua phương pháp đặt đối tượng truyền thông làm trọng tâm.

Thư mời tham dự Festival phim và ý tưởng "Chuyện kể về nước"
Thư mời tham dự Festival phim và ý tưởng \

Con người cần nước, vạn vật cần nước, nhưng đã bao giờ bạn lắng nghe tâm sự của nước?

THƯ NGỎ: Hội chợ Sáng kiến Thanh niên - YIF 2013
THƯ NGỎ: Hội chợ Sáng kiến Thanh niên - YIF 2013

Hội chợ sáng kiến thanh niên 2013 (YIF 2013) là sự kiện do Be Change Agents tổ chức. Trưng bày, chia sẻ của 20 dự án của thanh niên ở các lĩnh vực: môi trường, văn hóa xã hội, kinh tế, giáo dục, minh bạch...

THƯ MỜI CHƯƠNG TRÌNH TẬP HUẤN “NGHĨ XANH – MUA SẠCH”
THƯ MỜI  CHƯƠNG TRÌNH TẬP HUẤN “NGHĨ XANH – MUA SẠCH”

Chúng tôi trân trọng kính mời các bạn trẻ trong độ tuổi 18-25 đang là sinh viên của các trường đại học và các bạn thanh niên đang tham gia hoạt động trong các câu lạc bộ, đội, nhóm trên địa bàn thành phố Hồ Chí Minh tham gia vào chương trình tập huấn “Nghĩ Xanh Mua Sạch”.

Thư mời hội thảo kiến trúc xanh lần 3
Thư mời hội thảo kiến trúc xanh lần 3

Hội Kiến trúc sư TP. Hồ Chí Minh, Trung tâm Tiết kiệm Năng lượng TP. Hồ Chí Minh và CLB Kiến trúc trúc Xanh TP.HCM trân trọng thân mời bạn tham dự buổi Hội thảo Kiến trúc Xanh lần 3: Kiến trúc Xanh - Trao đổi & Chia sẻ

Thông cáo báo chí: Học bổng Nghiên cứu Hoa Kỳ
Thông cáo báo chí: Học bổng Nghiên cứu Hoa Kỳ

Học bổng Nghiên cứu Hoa Kỳ - Chủ đề Môi trường Toàn cầu dành cho Thủ lĩnh Sinh viên năm 2014

Hội chợ yêu thương: GIÁNG SINH HỒNG 2011
Hội chợ yêu thương: GIÁNG SINH HỒNG 2011

Kết hợp với cộng đồng mạng Chung một tấm lòng và Trung tâm Văn hóa Q.1 - Tp.HCM. Mùa Giáng sinh sẽ diễn ráẽ tổ chức vào các ngày 24-25 tháng 12 năm 2011 tại Nhà hát Bến Thành với rất nhiều hoạt động diễn ra: bao gồm nhiều gian hàng tham gia Hội chợ, các khu vui chơi giải trí, các hoạt động xã hội đầy thiết thực do các đơn vị tài trợ tổ chức nên "Hội chợ yêu thương: GIÁNG SINH HỒNG 2011" đầy ấm cúng cùng nhiều mục đích từ thiện rất ý nghĩa.

Workshop: PERSONAL FINANCE - Chia sẻ kinh nghiệm quản lý tài chính cá nhân
Workshop: PERSONAL FINANCE - Chia sẻ kinh nghiệm quản lý tài chính cá nhân

Workshop chia sẻ thông tin và kinh nghiệm quản lý chi tiêu và tiết kiệm hiệu quả

Green Agents 3 với Phạm Trường Sơn - Chia sẻ kinh nghiệm công tác xã hội và phát triển cộng đồng
Green Agents 3 với Phạm Trường Sơn - Chia sẻ kinh nghiệm công tác xã hội và phát triển cộng đồng

Mời bạn cùng đến và chia sẻ với anh anh Phạm Trường Sơn - Phó Giám đốc Trung tâm Hỗ trợ Phát triển Cộng đồng LIN, người có nhiều năm kinh nghiệm trong các hoạt động xã hộiáin và phát triển cộng đồng.

Green Agents 4 với Nguyễn Thị Thanh Kiều - cùng trẻ em hành động về an toàn giao thông
Green Agents 4 với Nguyễn Thị Thanh Kiều - cùng trẻ em hành động về an toàn giao thông

Một trong những điều nhức nhối hàng đầu của người Việt hiện nay là vấn nạn giao thông. Cứ mỗi ngày lại có hàng chục người chết vì tai nạn. Có một cô gái luôn canh cánh suy nghĩ làm sao để nâng cao ý thức mọi người và giảm nhẹ hậu quả của tai nạn. Mời các bạn gặp gỡ và chia sẻ cùng chị Nguyễn Thị Thanh Kiều, Sáng lập dự án An toàn giao thông trong mắt em - Baby Dream.

Thư mời tham dự Tập huấn viên GetGreen Vietnam
Thư mời tham dự Tập huấn viên GetGreen Vietnam

Dự án “Sống xanh Việt Nam” (GetGreen Vietnam) hoạt động tại Việt Nam dưới sự tài trợ của Liên Minh Châu Âu với mục tiêu đào tạo 1000 người tiêu dùng thông thái - “nhân tố thay đổi” cho một môi trường sống và tiêu dùng bền vững.

Green Agents 5 với Võ An Quốc - tìm hiểu về rau mầm
Green Agents 5 với Võ An Quốc - tìm hiểu về rau mầm

Rau mầm là loại rau dễ trồng và chăm sóc tại nhà, vừa là thú vui vừa có thể cung cấp một lượng rau sạch nhất định cho nhu cầu tiêu thụ trong gia đình. Chương trình Green Agents 5 tuần này chúng ta sẽ cùng gặp gỡ anh Võ An Quốc, một người rất đam mê rau mầm từ nhiều năm qua. Anh Quốc đã thành lập Hội những người thích ăn và đam mê trồng rau mầm để cùng chia sẻ và học hỏi những kinh nghiệm mới.

Green Agents 6 với Đoàn Bảo Châu - Chia sẻ kinh nghiệm truyền thông cộng đồng
Green Agents 6 với Đoàn Bảo Châu - Chia sẻ kinh nghiệm truyền thông cộng đồng

Truyền thông không chỉ cần thiết cho các doanh nghiệp mà còn rất cần cho cả các tổ chức xã hội. Trong các phương thức truyền thông thông thì truyền thông cộng đồng là xu hướng mới hiện nay đang ngày càng được chú ý hơn. Là người sáng lập Dự án truyền thông Share2Grow về thông tin hoạt động tình nguyện, bạn Đoàn Bảo Châu sẽ chia sẻ kinh nghiệm truyền thông cộng đồng và câu chuyện của chính Share2Grow vào sáng Chủ nhật ngày 19/1/2014 tại Sống Xanh Cafe.

SenseDrinks with Bruno from Food Sense Tour
SenseDrinks with Bruno from Food Sense Tour

Bruno Pison is on the road for a 400 days World Tour to meet sustainable stakeholders of FOOD ! Since the 15th of October, he has gone through North Europe, Russia, Mongolia, China, Philippines and now he is booming South East Asia to make some Sense ! Let's gather all to meet him !

HEARTMADE EVENT
HEARTMADE EVENT

HEARTMADE EVENT_TỔ CHỨC DUY NHẤT MỘT LẦN TRONG NĂM MỞ CỬA TỪ 8H SÁNG NGÀY 09/02/2014 ĐỊA ĐIỄM : 64 HỒ HẢO HỚN Q1 TP.HCM HOTLINE : 0934 628 329 MỜI CÁC BẠN THAM GIA SỰ KIỆN BÁN HÀNG VỚI NHIỀU DỊCH VỤ HẤP DẪN GIÚP KHÁCH HÀNG CÓ ĐƯỢC SỰ CHUẨN BỊ CHO NGÀY LỄ TÌNH NHÂN THẬT ĐỘC ĐÁO. SỰ KIỆN DO TRUYENTRANHVIETNAM.VN TỔ CHỨC

Green Agents 7 với Nguyễn Tuấn Anh và FIC - Change starts with me
Green Agents 7 với Nguyễn Tuấn Anh và FIC - Change starts with me

Bạn thân mến,

Năm mới vừa đến với bao dự định tốt đẹp cho mỗi người. Rất nhiều điều trong đó bắt nguồn từ những sự thay đổi, trước hết là từ trong bản thân chúng ta.

Để giúp bạn có nhiều cảm hứng và động lực vào dịp xuân mới, Mạng Xã hội SốngXanh.vn - Sống Xanh Cafe sẽ mở đầu chuỗi chương trình Green Agents trong năm Giáp Ngọ bằng chương trình đặc biệt "Change starts with me" với khách mời là anh Nguyễn Tuấn Anh và nhóm Friends Initiatives of Change (FIC)

Cửa hàng Cơ Hội Thứ Hai - tháng 2/2014
Cửa hàng Cơ Hội Thứ Hai - tháng 2/2014

háng này, cửa hàng Cơ Hội Thứ Hai sẽ mở cửa vào lúc 8g30 - 11g sáng Chủ Nhật, ngày 23/2, tại 180/47 Nguyễn Hữu Cảnh, Phường 22, Quận Bình Thạnh.

Cuộc thi làm clip về đề tài giảm nhẹ rủi ro thiên tai
Cuộc thi làm clip về đề tài giảm nhẹ rủi ro thiên tai

UNISDR (United Nations International Strategy for Disaster Reduction) đang tổ chức một cuộc thi làm clip về đề tài giảm nhẹ rủi ro thiên tai. Các tác phẩm đoạt giải sẽ được trao giải thưởng từ 1,000 - 2,000 USD tại Buổi bế mạc của Hội nghị Bộ trưởng châu Á về giảm nhẹ rủi ro thiên tai tại Bangkok, diễn ra vào ngày 22-ngày 26 tháng 6 năm 2014.

Ngày hội tái chế chất thải lần 7-2014
Ngày hội tái chế chất thải lần 7-2014

Ngày hội tái chế chất thải lần 7-2014 do Sở TN&MT TP.HCM tổ chức sẽ diễn ra vào Chủ nhật, ngày 20-4 tại Cung Văn hóa Lao động TP.HCM, bắt đầu lúc 8 giờ sáng. Đến nay mọi công tác chuẩn bị cho ngày hội đang gấp rút triển khai để hoàn thành đúng tiến độ.

Chuỗi chương trình phát triển nội tâm - tháng 03/2014
Chuỗi chương trình phát triển nội tâm - tháng 03/2014
Sự Kiện Đua Xích Lô Từ Thiện năm 2014
Sự Kiện Đua Xích Lô Từ Thiện năm 2014

Cuộc Đua Xích Lô Từ Thiện là một hoạt động thường niên về thể thao/vui chơi cho cả gia đình của Hội Từ Thiện Trẻ Em Sài Gòn nhằm gây quỹ cho trẻ em có hoàn cảnh khó khăn. Tính đến thời điểm hiện tại, chúng tôi đã tổ chức thành công 13 kỳ sự kiện và bây giờ chúng tôi đang chuẩn bị cho Cuộc Đua Xích Lô Từ Thiện thứ 14.

14 tháng 3: Ngày quốc tế hành động vì các dòng sông
14 tháng 3: Ngày quốc tế hành động vì các dòng sông

Ngày 14 tháng 3 là Ngày quốc tế hành động vì các dòng sông. Hàng năm, hàng nghìn người khắp thế giới cất cao tiếng nói để kỷ niệm các dòng sông thế giới và những con người đã đấu tranh để bảo vệ chúng.

Chương trình Huấn luyện & Hướng dẫn dành cho nữ nhân viên tổ chức phi lợi nhuận tại TP.HCM

Đại diện cho một nhà tài trợ ẩn danh, Trung tâm Hỗ trợ Phát triển Cộng đồng LIN (LIN) xin mời những người quan tâm tham gia vào một chương trình mới được thiết kế nhằm trao quyền cho nữ nhân viên ở các tổ chức phi lợi nhuận tại TP.HCM:

Special Session: Youth in Southeast Asia

Chúng tôi xin gửi các bạn chương trình hội thảo dành cho những ai quan tâm về rừng nhé. Hy vọng thông tin sẽ có ích cho các bạn.

Chương trình giao lưu " Nhật ký của mẹ "

[Thaihabooks]“ Cánh cò cõng nắng cõng mưa, mẹ tôi cõng cả bốn mùa gió sương”

Đoàn kết để cứu Trái Đất
Đoàn kết để cứu Trái Đất

“Hãy đoàn kết để cứu Trái Đất” là thông điệp chính của chiến dịch Giờ Trái Đất năm 2014 – do Quỹ Quốc tế Bảo tồn Thiên nhiên (WWF) khởi xướng - gửi tới người dân trên toàn cầu.

Hội thảo Kiến trúc Xanh lần 4: Cửa sổ Xanh
Hội thảo Kiến trúc Xanh lần 4: Cửa sổ Xanh

Thay mặt CLB Kiến trúc trúc Xanh TP.HCM trân trọng thân mời bạn tham dự buổi Hội thảo Kiến trúc Xanh lần 4: Cửa sổ Xanh

Mời bạn tham gia "The Leadership Challenge"
Mời bạn tham gia \

CSDS và EyeOpenerWorks đồng tổ chức workcamp 2 ngày mang tên “The Leadership Challenge” với 4 hướng dẫn viên (facilitators) đến từ Hà Lan và Việt Nam.

Chương trình ra mắt sách "Trà kinh - Nghệ thuật thưởng trà trong lịch sử và văn hóa phương Đông"

Hình ảnh “bát nước chè xanh” trong dân gian luôn gắn với tâm thức uống trà của người lao động khi mỗi buổi sáng hay lúc đi làm về, cũng như cây trà đã từng đi vào thơ ca và nỗi nhớ của bao người khi xa quê và là một trong những hình ảnh “hoài cổ” gắn với những nét văn hóa bình dân tương đồng khác.

Green Agents 8 với anh Trần Minh Hải - Vận động tài trợ dự án phi chính phủ
Green Agents 8 với anh Trần Minh Hải - Vận động tài trợ dự án phi chính phủ

Gây quỹ là việc làm thường xuyên của bất kỳ tổ chức/chương trình/dự án nào mong muốn tồn tại và phát triển một cách bền vững. Dự án tốt nhất trên thế giới sẽ không được thực hiện nếu thiếu tiền chi trả cho các chi phí dự án.

Thư mời tham dự sự kiện: Đêm nhạc Earth Song- Skyline
Thư mời tham dự sự kiện: Đêm nhạc Earth Song- Skyline

Earth Song là một chương trình ca nhạc được tổ chức thường niên bởi nhóm các bạn trẻ yêu môi trường nhằm hưởng ứng chiến dịch giờ trái đất. Với mong muốn góp phần nâng cao nhận thức về môi trường và biến đổi khí hậu, các chương trình đại hội mang thông điệp về trái đất đã được tổ chức 3 năm liên tiếp.

Ngày Khí tượng Thế giới và những con số
Ngày Khí tượng Thế giới và những con số

Nhân kỷ niệm Ngày Khí tượng Thế giới năm nay, MTX xin đưa ra những con số để chúng ta cùng suy ngẫm và phải hành động khẩn trương để cứu Trái Đất.

Thông báo: Tuyển đại biểu tham gia chương trình giao lưu thanh niên sinh viên ASEAN – Nhật Bản

Trung ương Đoàn TNCS Hồ Chí Minh tổ chức thi tuyển để lựa chọn 23 đại biểu tham gia chương trình Giao lưu Thanh niên – Sinh viên ASEAN – Nhật Bản từ ngày 26/05 – 03/06/2014 trong khuôn khổ chương trình JENESYS 2.0 tại Nhật Bản.

Chương trình giao lưu SEO MASTER với tác giả NGUYỄN TRỌNG THƠ - CEO tập đoàn iNET
Chương trình giao lưu SEO MASTER với tác giả NGUYỄN TRỌNG THƠ - CEO tập đoàn iNET

Thời gian: ngày 26/3/2014, 17H -19H30 Địa điểm: phòng hội thảo 1, Hội sách 2014 công viên Lê Văn Tám

Giới thiệu triển lãm "Get in Touch with Mathematics" - Chạm vào toán học
Giới thiệu triển lãm \

Thông tin chương trình CHẠM VÀO TOÁN HỌC của viện Goethe từ ngày 26/3 đến ngày 12/4/2014.

Chương trình giao lưu với tiến sĩ Nguyễn Thị Hậu - tác giả "Thế giới mạng & Tôi"
Chương trình giao lưu với tiến sĩ Nguyễn Thị Hậu - tác giả \

Thời gian: ngày 25/3/2014 , từ 17h - 18h45 Địa điểm: phòng hội thảo 1, Hội sách 2014 Công viên Lê Văn Tám

Mời tham dự Roadshow Doanh Nghiệp Xã Hội - Cách tiếp cận sáng tạo cho các Tổ Chức Xã Hội Dân Sự - giới thiệu chương trình Hỗ Trợ Đổi Mới Tổ Chức Xã Hội Dân Sự
Mời tham dự Roadshow Doanh Nghiệp Xã Hội - Cách tiếp cận sáng tạo cho các Tổ Chức Xã Hội Dân Sự - giới thiệu chương trình Hỗ Trợ Đổi Mới Tổ Chức Xã Hội Dân Sự

Trung tâm Hỗ trợ sáng kiến phục vụ cộng đồng (CSIP) trân trọng thông báo chương trình Hỗ Trợ Đổi Mới Tổ Chức Xã Hội Dân Sự năm 2014 và kêu gọi sự tham gia của các tổ chức Phi lợi nhuận, phi chính phủ, các tổ chức thiện nguyện, các tổ chức cộng đồng, các hội nghề nghiệp.

Ngày Trái Đất 22-4-2014: Hành động vì thành phố xanh
Ngày Trái Đất 22-4-2014: Hành động vì thành phố xanh

Với chủ đề “Thành phố xanh“, Ngày Trái Đất (22/4/2014) các nước cùng hành động để giúp các thành phố trên toàn thế giới trở nên bền vững hơn, giảm được lượng phát thải carbon vì một tương lai sạch hơn, lành mạnh hơn...

Cuộc thi "Siêu thủ lĩnh" tuyển người tham dự
Cuộc thi \

Siêu thủ lĩnh là một cuộc thi truyền hình dành cho những nhà lãnh đạo trẻ do Ban Thanh thiếu niên – Đài truyền hình Việt Nam thực hiện. Với mục đích tạo ra một sân chơi dành cho những người trẻ đang có ý tưởng hoặc đang thực hiện những dự án vì cộng đồng, Siêu thủ lĩnh đã trải qua 2 mùa thi với hơn 800 gương mặt thí sinh xuất sắc đến từ mọi miền trên đất nước.

Thư mời tham gia chuỗi chương trình Sống Xanh Việt Nam
Thư mời tham gia chuỗi chương trình Sống Xanh Việt Nam

Mạng Xã hội Sống Xanh .vn sẽ tổ chức 1 nhóm tiêu dùng chọn lọc gồm 25 thành viên là những nhân viên văn phòng. Khuyến khích nhóm có những thành viên làm chung công ty, tổ chức, hoặc bạn bè để tăng hiệu quả kết nối.

Nhóm sẽ sinh hoạt 6 buổi bao gồm cả các chuyến đi thực địa. Mỗi cuộc họp sẽ kéo dài trong 2 giờ và được thực hiện mỗi tuần một lần bắt đầu vào Chủ nhật ngày 11/5/2014 và kết thúc sau ngày Chủ nhật 15/6/2014.

CÙNG GIƠ TAY - CÙNG CHIA SẺ
CÙNG GIƠ TAY - CÙNG CHIA SẺ

Bạn quen biết ai đó không thể đi học hoặc không thể theo học tại ngôi trường mà họ mơ ước? Đã bao giờ bạn tự hỏi họ cảm thấy thế nào, hoặc vì thế mà họ đã vuột mất bao nhiêu cơ hội chưa? Hay chính bản thân bạn có đang gặp phải một trở ngại nào trong việc tiếp cận giáo dục?

Thư ngỏ diễn đàn Thanh niên và Phát triển bền vững 2014
Thư ngỏ diễn đàn Thanh niên và Phát triển bền vững 2014

Ô nhiễm môi trường, năng lượng khan hiếm, trái đất nóng lên… Nhiều người nghĩ đó là câu chuyện của người khác, nơi khác, xã hội khác. Chắc phải là siêu nhân hay cần những phép màu kiểu “cây tre trăm đốt” mới giải quyết được các vấn đề này.

Thư mời mua hàng tại Cửa hàng Cơ Hội Thứ Hai 18/5
Thư mời mua hàng tại Cửa hàng Cơ Hội Thứ Hai 18/5

Buổi bán hàng tháng Năm của Cửa hàng Cơ Hội Thứ Hai sẽ diễn ra vào Chủ nhật tuần này. Cửa hàng lần này có sách tiếng Anh và tiếng Việt, đồ trẻ em đồ người lớn, vải vóc và đồ dùng gia đình. Rất mong anh/chị đến tham gia mua hàng và chuyển thông tin này đến nhân viên, tình nguyện viên và người hưởng lợi của tổ chức.

Quỹ tài trợ Cộng đồng Rút Ngắn Khoảng Cách 2014: Tiếp cận Giáo Dục
Quỹ tài trợ Cộng đồng Rút Ngắn Khoảng Cách 2014: Tiếp cận Giáo Dục

Trung tâm Hỗ trợ Phát triển Cộng đồng LIN thân mời Anh/Chị đến dự buổi hội thảo thân mật nhằm giới thiệu: Quỹ tài trợ Cộng đồng Rút Ngắn Khoảng Cách 2014: Tiếp cận Giáo Dục

Buổi chiếu phim kèm thảo luận với Gs. David Teh
Buổi chiếu phim kèm thảo luận với Gs. David Teh

Buổi chiếu phim kèm thảo luận với Gs. David Teh - Film Screening, followed by Q&A with Dr David Teh

Cuộc Thi “Green Talent” – Bảo Vệ Hành Tinh Xanh
Cuộc Thi “Green Talent” – Bảo Vệ Hành Tinh XanhCuộc thi “Green Talents” là cuộc thi dành cho những bạn trẻ có niềm đam mê và sang tạo trong lĩnh vực bảo vệ môi trường. Đến với cuộc thi, bạn sẽ có cơ hội giới thiệu những ý tưởng độc đáo của mình về các vấn đề môi trường: cân bằng và đa dạng sinh học, biến đổi khí hậu, hiệu ứng nhà kính, việc cắt giảm khí CO2,..
Chương trình chiếu phim:"Thời đại Nhôm" - Tiện nghi và hiểm họa
Chương trình chiếu phim:\Ngày 12/3/2013 vừa qua đài truyền hình Pháp – Đức Arté đã lần đầu tiên công chiếu một phim tài liệu về Nhôm mang tên « Planète Alu ». Cuốn phim lập tức gây xôn xao dư luận tại châu Âu và Pháp nói riêng. Vài ngày sau đó, đài truyền hình quốc gia Pháp France 2 đã phải lập tức thông tin cảnh báo và trấn an về việc sử dụng mỹ phẩm và dược phẩm có chứa hợp chất Nhôm trong bản tin buổi tối 20h (giờ cao điểm) đến với người tiêu dùng.
Chính thức giới thiệu chương trình Hỗ trợ Doanh nghiệp Xã hội 2014
Chính thức giới thiệu chương trình Hỗ trợ Doanh nghiệp Xã hội 2014

Trung tâm Hỗ trợ Sáng kiến Phục vụ Cộng đồng (CSIP) chính thức giới thiệu Chương trình Hỗ trợ Doanh nghiệp xã hội 2014 (SESP 2014).

CƠ HỘI TÌNH NGUYỆN (VOLUNTEER OPPORTUNITIES)
CƠ HỘI TÌNH NGUYỆN (VOLUNTEER OPPORTUNITIES)

Bạn đang tìm kiếm cơ hội để tham gia vào cộng đồng và biến nó thành nơi tốt đẹp hơn? Mùa hè này, trung tâm Hỗ trợ Phát triển Cộng đồng LIN đem lại cho bạn một loạt cơ hội tình nguyện thú vị để bạn có thể tận dụng kỹ năng về Thẩm định đề xuất tài trợ, Marketing hoặc Truyền thông.

CHƯƠNG TRÌNH TÌNH NGUYỆN VIÊN (TNV) THAM GIA BẢO TỒN RÙA BIỂN TẠI CÔN ĐẢO, BÀ RỊA – VŨNG TÀU, VIỆT NAM NĂM 2014
CHƯƠNG TRÌNH TÌNH NGUYỆN VIÊN (TNV) THAM GIA BẢO TỒN RÙA BIỂN TẠI CÔN ĐẢO, BÀ RỊA – VŨNG TÀU, VIỆT NAM NĂM 2014

Vườn quốc gia Côn Đảo được thành lập năm 1993, thuộc hệ thống rừng đặc dụng, là 1 trong 30 Vườn quốc gia của Việt Nam. Vườn quốc gia Côn Đảo có diện tích gần 20.000 hecta trong đó 6.000 hecta trên cạn và 14.000 hecta biển.

CHƯƠNG TRÌNH TẬP HUẤN- “DU LỊCH XANH HƯỚNG TỚI TƯƠNG LAI”
CHƯƠNG TRÌNH TẬP HUẤN-  “DU LỊCH XANH HƯỚNG TỚI TƯƠNG LAI”

Việt Nam của chúng ta là một đất nước có thiên nhiên giàu đẹp, những bãi biển trải dài, những hang động hoang sơ độc đáo, những vùng đồi núi hùng vĩ. Đồng thời, Việt Nam có một nền văn hóa đa dạng mang đậm bản sắc dân tộc. Những điều này đã thu hút một số lượng đông đảo khách du lịch trong nước và nước ngoài đến tham quan và trải nghiệm.

Hội thảo giới thiệu sách -HIỆN TƯỢNG CON NGƯỜI
Hội thảo giới thiệu sách -HIỆN TƯỢNG CON NGƯỜICuốn sách « Hiện tượng con người » được xuất bản lần đầu tiên năm 1955 sau khi ông đã mất. Tác phẩm đã gây một tiếng vang lớn trong nhiều năm tiếp đó và những âm hưởng mạnh mẽ của nó vẫn còn cho đến giờ.
Xem phim miễn phí ""Trái đất không thuộc về Con người mà chính Con người thuộc về trái đất"
Xem phim miễn phí \"Trái đất không thuộc về Con người mà chính Con người thuộc về trái đất" Tập phim dài 90 phút này sẽ đưa chúng ta đi chứng kiến từ kiểu phát triển vô chính sách tại một số quốc gia nghèo, cho tới hình thức phát triển bằng những công trình “vĩ đại” tại Hoa Kỳ, Trung Quốc, cùng với những hệ lụy về môi sinh “xứng tầm” với nó.
TONIGHT: Green Drinks Saigon - 10th June - PUMA's journey towards sustainability
TONIGHT: Green Drinks Saigon - 10th June - PUMA\'s journey towards sustainabilityHãy tham gia Green Drink tháng 6 này để cùng nhìn lại chặng đường của PUMA trong quá trình hướng tới sự phát triển biền vững sau đòn tấn công của truyền thông vào những năm 1999 đối với ngành công nghiệp thời trang bằng những cáo buộc về vi phạm luật lao động. Tiến sỹ Reiner Hengstmann, Giám đốc toàn cầu của PUMA về chuỗi cung ứng an toàn sẽ chia sẻ với chúng ta câu chuyện PUMA đã thiết lập một nhóm toàn cầu nhằm giải quyết các vấn đề về xã hội và môi trường như thế nào.
Mời tham dự hội thảo MÔ HÌNH KINH DOANH XANH tại AITVN
Mời tham dự hội thảo MÔ HÌNH KINH DOANH XANH tại AITVNViện Công nghệ Châu Á tại Việt Nam (AIT-VN) trân trọng kính mời đại diện doanh nghiệp tham dự Hội thảo số 2 với chủ đề “Mô hình kinh doanh Xanh”, tổ chức ngày 17 tháng 6 năm 2014 tại AIT-VN, Toà nhà B3, Trường Đại học Giao thông Vận tải, Láng Thượng, Đống Đa, Hà Nội (Phòng 1.1).
Thư mời hội thảo kiến trúc xanh lần 5-NHÀ Ở XANH
Thư mời hội thảo kiến trúc xanh lần 5-NHÀ Ở XANHThay mặt CLB Kiến trúc trúc Xanh TP.HCM trân trọng thân mời Anh/Chị tham dự buổi Hội thảo Kiến trúc Xanh lần 5: NHÀ Ở XANH
Chữa bệnh bằng dấm
Chữa bệnh bằng dấmGiấm là gia vị hỗ trợ đắc lực cho các bà nội trợ trong việc bếp núc. Và tác dụng trị bệnh của giấm có thể làm chúng ta ngạc nhiên.
Cửa hàng Cơ Hội Thứ Hai
Cửa hàng Cơ Hội Thứ Hai
Dạ tiệc gây quỹ từ thiện “Thưởng thức những câu chuyện”
Dạ tiệc gây quỹ từ thiện “Thưởng thức những câu chuyện”KOTO vinh dự hợp tác với Cô Christine Hà – Quán quân cuộc thi“ Vua đầu bếp Mỹ” năm 2012 thực hiện dạ tiệc gây quỹ từ thiện.
Dương Thụ gửi thư mời Cà Phê Sách, 9h, 28/06/2014
Dương Thụ gửi thư mời Cà Phê Sách, 9h, 28/06/2014Buổi CÀ PHÊ SÁCH, cà phê với TS Nguyễn Thị Từ Huy, tác giả cuốn “Viết- cô đơn & sức mạnh” (NXB Hội Nhà Văn quí II/2014) Chủ trì: Học giả Bùi Văn Nam Sơn
Giải thưởng Môi trường TP Hồ Chí Minh năm 2014
Giải thưởng Môi trường TP Hồ Chí Minh năm 2014Giải thưởng là cơ sở để giới thiệu các cá nhân và tập thể tham gia Giải thưởng Môi trườngViệt Nam năm 2015 của Bộ Tài nguyên & Môi trường.
Thư mời tham gia cuộc thi Youth Environmental Seminar 2014
Thư mời tham gia cuộc thi Youth Environmental Seminar 2014Hiện nay, các phương pháp khai thác năng lượng trên toàn thế giới đã để lại những hậu quả không nhỏ về môi trường, có thể kể đến như hiện tượng biến đổi khí hậu toàn cầu, cạn kiệt tài nguyên, xảy ra thiên tai tại nhiều nơi,... Bạn từng nghĩ đó là vấn đề của một người khác, một quốc gia khác, một xã hội khác? Vậy bạn nghĩ sao nếu sứ mệnh giải cứu Mẹ Thiên Nhiên có thể nằm trong tay thế hệ trẻ là bạn và chúng tôi?
THƯ MỜI CÀ PHÊ GẶP GỠ & ĐỐI THOẠI
THƯ MỜI CÀ PHÊ GẶP GỠ & ĐỐI THOẠIAnh chị và các bạn thân mến! Vào 9h sáng thứ bảy 12/07/2014, tại SALON VĂN HÓA CÀ PHÊ THỨ BẢY, Lầu 1, Trung Nguyên Coffee, 19B Phạm Ngọc Thạch, Quận 3 sẽ diễn ra buổi cà phê gặp gỡ và đối thoại với KTS NGUYỄN HỮU THÁI & Bà LÊ DIỆU ÁNH - Điều phối quốc gia chương trình ACCA thuộc Mạng lưới Quỹ Phát triển cộng đồng Hiệp hội đô thị Việt Nam Chủ đề: Bảo tồn di sản đô thị, phát triển đô thị bền vững
CÀ PHÊ THỨ BẢY - THƯ MỜI CÀ PHÊ SÁCH
CÀ PHÊ THỨ BẢY - THƯ MỜI CÀ PHÊ SÁCHCác anh chị và các bạn thân mến. Vào 09h sáng thứ bảy ngày 19/07/2014, SALON VĂN HÓA CÀ PHÊ THỨ BẢY, tại lầu 1, Trung Nguyên Coffee 19B Phạm Ngọc Thạch , Q.3 sẽ diễn ra buổi CÀ PHÊ SÁCH, “Cà phê” với dịch giả GSTS Nguyễn Văn Trọng về cuốn sách BỐN TIỂU LUẬN VỀ TỰ DO của I. Berlin
Hội thảo “Kĩ năng viết hồ sơ dự án cộng đồng dành cho giới trẻ”
Hội thảo “Kĩ năng viết hồ sơ dự án cộng đồng dành cho giới trẻ”

Với mong muốn nâng cao chất lượng cho các dự án từ Việt Nam tham gia cuộc thi Quỹ dự án YSEALI Seeds for the Future của Bộ Ngoại Giao Hoa Kỳ, Đại Sứ Quán Hoa Kỳ tại Hà Nội tổ chức buổi hội thảo “Kĩ năng viết hồ sơ dự án cộng đồng dành cho giới trẻ” vào 9:00 ngày Thứ Ba 22/7 tại Toà nhà Vườn Hồng 170 Ngọc Khánh, Hà Nội.

CUỘC THI K0 CÒI 2
CUỘC THI K0 CÒI 2Mời các bạn tham gia cuộc thi "K0 còi 2" để đóng góp vào một môi trường giao thông lành mạnh hơn ở Việt Nam và nhận những phần thưởng giá trị
Cuộc thi: Năng lượng xanh cho cuộc sống
Cuộc thi: Năng lượng xanh cho cuộc sống

Trong bối cảnh chung các quốc gia trên thế giới phải đối mặt với vấn đề khan hiếm năng lượng, mỗi công dân đều có trách nhiệm sử dụng nguồn năng lượng một cách tiết kiệm và hiệu quả, không chỉ mang lại lợi ích cho bản thân mà còn cho cộng đồng, đất nước. Thực hiện thói quen tiết kiệm năng lượng không chỉ giúp cho sự phát triển của mỗi gia đình, quốc gia trong hôm nay mà còn giúp cho sự thay đổi của các thế hệ mai sau. 


CÀ PHÊ THỨ BẢY: THƯ MỜI CÀ PHÊ VĂN HỌC
CÀ PHÊ THỨ BẢY: THƯ MỜI CÀ PHÊ VĂN HỌCAnh chị và các bạn thân mến! Vào 9h sáng thứ bảy ngày 13/09/2014, tại SALON VĂN HÓA CÀ PHÊ THỨ BẢY, Lầu 1, Trung Nguyên Coffee, 19B Phạm Ngọc Thạch, Quận 3 sẽ diễn ra buổi cà phê CÀ PHÊ VĂN HỌC Chuyên đề: HIỆN THỰC XÃ HỘI và VĂN HỌC VIỆT NAM ĐƯƠNG ĐẠI Diễn giả : Nhà văn Dạ Ngân & Nhà thơ Inrasara Chủ trì: Dương Thụ
Thư ngỏ Chương trình Be Change Agents 2014
Thư ngỏ Chương trình Be Change Agents 2014Hành tinh này không cần thêm những người "thành công". Nó vật vã mong cần thêm những người kiến tạo bình an, những người chữa lành, những người kể chuyện, và những người biết yêu thương. Nó cần những người vui sống ở nơi họ sống. Nó cần những người có đủ can đảm và đạo đức để tham gia giúp thế giới tháo gỡ những khó khăn, giúp biến đổi thế giới thành một nơi có tình người và có thể cư ngụ được.
BUỔI BÁN HÀNG THÁNG BẢY
BUỔI BÁN HÀNG THÁNG BẢYTrung tâm LIN gửi thông tin về buổi bán hàng của Cửa hàng Cơ Hội Thứ Hai sẽ diễn ra vào sáng Chủ nhật, ngày 27/7 sắp tới. Địa điểm: Trung tâm Cộng đồng LIN, 180/47 Nguyễn Hữu Cảnh, Phường 22, Quận Bình Thạnh. Thời gian: 8h30 - 11h sáng Chủ nhật, 27/7/2014 Lần này, cửa hàng chỉ bán sách, gồm sách tiếng Anh, tiếng Pháp và một số sách tiếng Đức, tiếng Việt.
Green Drinks #20: Visions for a more sustainable Coffee future in Vietnam
Green Drinks #20: Visions for a more sustainable Coffee future in Vietnam

Phá sản, nợ nần, đói nghèo và các thảm hoạ tự nhiên chỉ là một vài trong số những vấn đề đang làm suy yếu ngành cà phê tại Việt Nam. Ngay cả khi giá cà phê giảm khiến cho các nhà sản xuất phải bán với giá chỉ bằng hơn một nửa giá thành sản xuất thì việc mở rộng quy mô vẫn đang gây sức ép lên họ. Xu hướng này càng khiến cho giá cà phê trên thế giới giảm xuống và có thể ảnh hưởng đến sự phát triển bền vững của ngành này.

Cuộc thi làm phim ngắn “PHÁ BỎ RÀO CẢN”
Cuộc thi làm phim ngắn “PHÁ BỎ RÀO CẢN”Lần đầu tiên Trung tâm Khuyết tật và Phát triển DRD(1) tổ chức cuộc thi làm phim ngắn "Phá bỏ rào cản", trong thời gian từ 15/8/2014 đến hết 5/10/2014, tại khu vực TP.HCM. Thông điệp của những thước phim luôn ẩn chứa một sức mạnh. Sức mạnh đó có thể tham gia giải quyết các vấn đề xã hội. Tại sao không thử nghiệm sức mạnh đó cùng vấn đề khuyết tật? Bấy lâu nay vẫn còn tồn tại một khoảng cách trong sự thấu hiểu và cách hỗ trợ giữa cộng đồng nói chung và người khuyết tật.
THƯ MỜI CÀ PHÊ GẶP GỠ & ĐỐI THOẠI
THƯ MỜI CÀ PHÊ GẶP GỠ & ĐỐI THOẠIVào 09h sáng thứ bảy ngày 30/08/2014, SALON VĂN HÓA CÀ PHÊ THỨ BẢY, tại lầu 1, Trung Nguyên Coffee 19B Phạm Ngọc Thạch , Q.3 sẽ diễn ra buổi CÀ PHÊ GẶP GỠ & ĐỐI THOẠI “Cà phê” với nhà nghiên cứu văn hóa, ông Nguyễn Vũ Tuấn Anh về chủ đề “Cội nguồn văn minh Đông Phương”. Chủ trì: GSTS Nguyễn Văn Trọng.
THÔNG BÁO TUYỂN ĐỘI CHƠI THỢ XANH THÀNH PHỐ 2014 - CITY GREENERS 2014 “NƯỚC VÀ CUỘC SỐNG”
THÔNG BÁO TUYỂN ĐỘI CHƠI THỢ XANH THÀNH PHỐ 2014 - CITY GREENERS 2014 “NƯỚC VÀ CUỘC SỐNG”

Sau thành công rực rỡ của hai mùa trước, năm nay, Thợ Xanh Thành Phố 2014 sẽ quay trở lại cùng chủ đề “Nước và cuộc sống” hứa hẹn những hành trình mới đầy thử thách thú vị và hấp dẫn. Bên cạnh đó, với slogan “Tiết kiệm nước, Cứu Trái đất – Save water, Save the Earth” chương trình cũng sẽ đem đến những thông tin gần gũi và bổ ích như kiến thức cơ bản về thuật ngữ “dấu chân nước”, tầm quan trọng của nước, hiện trạng ô nhiễm nước hiện nay, cách thức sử dụng nước tiết kiệm

Chuỗi sự kiện "Tuần Tử Tế +"
Chuỗi sự kiện \

Chuỗi sự kiện "Tuần Tử Tế +" nhằm khởi động cho chương trình "Sống Tử Tế", chiến dịch nhằm truyền cảm hứng và vận động công chúng cùng chung tay thực hiện những điều có ý nghĩa, những việc tốt đẹp với những người xung quanh để những giá trị nhân văn đằng sau những việc tốt đó sẽ lan tỏa xa hơn và góp phần xây dựng một xã hội tử tế hơn.

Thư mời tham dự Diễn đàn Người tiêu dùng
Thư mời tham dự Diễn đàn Người tiêu dùng

Dự án “Hỗ trợ các doanh nghiệp Việt Nam thực hiện trách nhiệm xã hội doanh nghiệp (CSR) nhằm mục tiêu sản xuất và tiêu dùng bền vững (SCP)” trân trọng kính mời Quý vị tham dự diễn đàn Niềm tin Người tiêu dùng tại Hà Nội và thành phố Hồ Chí Minh.

INVITATION FOR ORGANIZATIONS AND INDIVIDUALS
INVITATION FOR ORGANIZATIONS AND INDIVIDUALSINVITATION FOR ORGANIZATIONS AND INDIVIDUALS TO SUBMIT AN EXPRESSION OF INTEREST (EOI) PARTNERS CAPACITY DEVELOPMENT (PCD) PROGRAM A NEW PROGRAM FUNDED BY USAID
TUYỂN CỘNG TÁC VIÊN CHO CHUỖI CHƯƠNG TRÌNH “GIẢI CỨU NĂNG LƯỢNG”
TUYỂN CỘNG TÁC VIÊN CHO CHUỖI CHƯƠNG TRÌNH “GIẢI CỨU NĂNG LƯỢNG”Không chỉ có siêu nhân mới cứu được Trái Đất đâu các bạn. Mỗi việc làm nhỏ của chúng ta sẽ làm cho môi trường ngày càng xanh tươi hơn. Hãy cùng với GFOC thực hiện sứ mệnh ấy nào. \m/
Thi viết về môi trường dành cho học sinh cấp 2
Thi viết về môi trường dành cho học sinh cấp 2"Tiết kiệm năng lượng, sử dụng tài nguyên bền vững" là cuộc thi môi trường lớn thứ hai trong năm dành cho học sinh THCS (lứa tuổi 11-12) đã được khởi động ngay đầu tháng 9.
THƯ MỜI SALON ĐIỆN ẢNH
THƯ MỜI SALON ĐIỆN ẢNH

Vào 19h30 tối thứ bảy 20/09/2014, tại SALON VĂN HÓA CÀ PHÊ THỨ BẢY, tại lầu 1, Trung Nguyên Coffee 19B Phạm Ngọc Thạch , Q.3 buổi Salon điện ảnh có chủ đề: TUYỆT TÁC NÊN THƠ VÀ GIẢN DỊ CỦA ĐIỆN ẢNH IRAN, Phim: NHỮNG ĐỨA TRẺ THIÊN ĐƯỜNG (Bacheha-ye Aseman) - 1997

Toạ đàm: TÔI CHỌN TỬ TẾ, 20/9/2014, TP.HCM
Toạ đàm: TÔI CHỌN TỬ TẾ, 20/9/2014, TP.HCM

“Sống tử tế, suy cho cùng là sống tự do theo cách mình mong muốn. Đừng để những khuôn mẫu, những bạo quyền, và nỗi sợ cướp đi nhân phẩm của mình. Tin là thấy, hãy tin vào bản chất tốt của con người, và con người có quyền đặt ra những nguyên tắc sống cho mình. Hãy bắt đầu bằng những nguyên tắc đơn giản nhất: không gây hại cho người khác để thanh thản nói rằng "Tôi là người tử tế!".”

Mời bạn tham gia cuộc thi ảnh và viết “Sống xanh”
Mời bạn tham gia cuộc thi ảnh và viết “Sống xanh”

Tiếp nối thành công cuộc thi ảnh và viết “Sống xanh” năm 2013, báo Tuổi Trẻ và Ngân hàng Phương Đông (OCB) tiếp tục phối hợp tổ chức cuộc thi “Sống xanh” năm 2014.

Thư mời tham gia đợt tuyển thành viên duy nhất trong năm của VSEED
Thư mời tham gia đợt tuyển thành viên duy nhất trong năm của VSEEDDự án hỗ trợ và phát triển Doanh nghiệp xã hội (VSEED) thân chào bạn, Hãy thử thách bản thân với đợt tuyển thành viên duy nhất trong năm của VSEED mang tên: V- Challenge: Dare the blue
THƯ MỜI THAM DỰ LỚP HỌC TRANH BIỆN "NẾU NĂNG LƯỢNG CÓ TIẾNG NÓI"
THƯ MỜI THAM DỰ  LỚP HỌC TRANH BIỆN  \Thực tế Việt Nam và thế giới đang phải giải quyết bài toán đáp ứng nhu cầu năng lượng không ngừng tăng cao, trong điều kiện áp lực về giảm thiểu tác động tiêu cực tới môi trường - kinh tế - xã hội. Chiến dịch "Nếu năng lượng có tiếng nói" ra đời nhằm mục đích nâng cao nhận thức về năng lượng bền vững, bao gồm chuỗi sự kiện: Cuộc thi tranh biện online, Lớp học tranh biện về năng lượng, Tọa đàm về năng lượng… cùng nhiều hoạt động khác sẽ diễn ra từ nay đến cuối tháng 11/2014.
THƯ MỜI CÀ PHÊ GẶP GỠ & ĐỐI THOẠI
THƯ MỜI  CÀ PHÊ GẶP GỠ & ĐỐI THOẠInh chị và các bạn thân mến! Vào 9h sáng thứ bảy 18/10/2014, tại SALON VĂN HÓA CÀ PHÊ THỨ BẢY, Lầu 1, Trung Nguyên Coffee, 19B Phạm Ngọc Thạch, Quận 3 sẽ diễn ra buổi cà phê với PGS.TS Hoàng Dũng Chủ đề:"Ứng xử của tiếng Hán Việt trong tiếng Việt hiện đại" Chủ trì: GSTS Nguyễn Văn Trọng
Quỹ Sáng kiến trẻ em & thanh niên với biến đổi khí hậu
Quỹ Sáng kiến trẻ em & thanh niên với biến đổi khí hậu

Các bạn thân mến! Xin gửi đến các bạn trẻ, những người yêu thích hoạt động môi trường, thông tin về Quỹ “Sáng kiến trẻ em và thanh niên với biến đổi khí hậu” (gọi tắt là “Quỹ sáng kiến”).

Chương trình tài trợ các dự án nhỏ - Môi trường toàn cầu (UNDP- GEF SGP)
Chương trình tài trợ các dự án nhỏ - Môi trường toàn cầu (UNDP- GEF SGP)Chương trình tài trợ các dự án nhỏ - Môi trường toàn cầu (UNDP- GEF SGP) THÔNG BÁO KÊU GỌI Ý TƯỞNG DỰ ÁN
Tuyển 5 thành viên Đoàn Việt Nam tham gia "International Youth Camp on Integrity 2015"
Tuyển 5 thành viên Đoàn Việt Nam tham gia \Tổ chức Hướng tới Minh bạch (Towards Transparency) phối hợp với Tổ chức Minh bạch quốc tế (Transparency International) ở 6 quốc gia thành viên (Cambodia, Indonesia, Malaysia, Bangladesh, Pakistan, Myanmar) tổ chức “Hội trại tập huấn thanh niên quốc tế về Liêm chính 2015” tại Siem Riep – Cambodia vào tháng 01 năm 2015.
[Talkshow] - Khởi nghiệp Xanh
[Talkshow] - Khởi nghiệp XanhBạn đang tìm kiếm: - Một tư duy kinh doanh cần thiết dưới sự cạnh tranh khốc liệt của thị trường - Một ý tưởng khởi nghiệp độc đáo trong phân khúc thực phẩm xanh sạch - Những kinh nghiệm qua sự thất bại và thành công của một doanh nhân - Những chia sẻ về lĩnh vực thực phẩm sạch Vậy TALKSHOW “KHỞI NGHIỆP XANH” do CLB Paradox tổ chức, là nơi bạn cần đến.
Phát động cuộc thi Thiết kế TVC/Print-ad “One change, Billion changes”
Phát động cuộc thi Thiết kế TVC/Print-ad  “One change, Billion changes”Nằm trong khuôn khổ Tuần lễ không tác động TP HCM, cuộc thi Thiết kế TVC/Print-ad Online với chủ đề: “One change, Billion changes” mang đến thông điệp truyền thông về những việc làm đơn giản, nhỏ bé nhưng hiệu quả cao, góp phần chống biến đổi khí hậu; hoặc những việc làm mang tính cá nhân nhưng có thể lan tỏa tạo hiệu ứng cộng đồng.
Chương trình SALON ĐIỆN ẢNH với chủ đề: BỘ PHIM XUẤT SẮC VỀ ĐỀ TÀI PHÂN TÂM HỌC & NGHỆ THUẬT DIỄN XUẤT HÀNH XÁC CỦA CHRISTIAN BALE
Chương trình SALON ĐIỆN ẢNH  với chủ đề: BỘ PHIM XUẤT SẮC VỀ ĐỀ TÀI PHÂN TÂM HỌC &  NGHỆ THUẬT DIỄN XUẤT HÀNH XÁC CỦA CHRISTIAN BALECác anh chị và các bạn thân mến! vào 19h30, tối thứ bảy, ngày 25/10/2014 tại CÀ PHÊ THỨ BẢY-CINÉMATHÈQUE lầu 1, Trung Nguyên Coffee, 19B Phạm Ngọc Thạch, Quận 1 Chương trình SALON ĐIỆN ẢNH với chủ đề: BỘ PHIM XUẤT SẮC VỀ ĐỀ TÀI PHÂN TÂM HỌC & NGHỆ THUẬT DIỄN XUẤT HÀNH XÁC CỦA CHRISTIAN BALE Giới thiệu phim: THE MACHINIST (GÃ THỢ MÁY) Đao diễn: Brad Anderson Diễn viên: Christaian Bale-Jennifer Jason Leigh *Chủ trì: Đao diễn Bá Vũ
Doanh Nghiệp Xã Hội và Gây Quỹ Cộng Đồng ở Việt Nam Cùng Charity Map
Doanh Nghiệp Xã Hội và Gây Quỹ Cộng Đồng ở Việt Nam Cùng Charity Map

Hãy tới với Green Drink ngày 28 tháng 10 để gặp gỡ với Bilesh Ladva, thành viên của Charity Map, một hệ thống gây quỹ từ cộng đồng. Anh sẽ chia sẻ về các doanh nghiệp xã hội cấp cơ sở ở Việt Nam và thảo luận những ý tưởng về việc phát triển hệ thống gây quỹ cộng đồng tại đây. Bilesh và Green Drinks sẽ tiếp tục hỗ trợ các cuộc đối thoại về cơ hội và thách thức đối với các danh nghiệp xã hội mới thành lập cũng như các tổ chức đang ở giai đoạn phát triển ban đầu tại Việt Nam

SÁNG TẠO THUỴ ĐIỂN – NGÀY MAI BẮT ĐẦU TỪ NGÀY HÔM NAY
SÁNG TẠO THUỴ ĐIỂN – NGÀY MAI BẮT ĐẦU TỪ NGÀY HÔM NAYChào mừng quý vị đến với Sáng tạo Thụy Điển ở Thành phố Hồ Chí Minh. 3 tuần triển lãm với mục đích trưng bày những phát minh, sáng chế và sáng tạo của Thụy Điển, tạo điều kiện trao đổi ý tưởng giữa Thụy Điển và Việt Nam trong những lĩnh vực đó. Chúng tôi hy vọng rằng thông qua Sáng tạo Thụy Điển, người dân Việt Nam sẽ hiểu biết hơn về đất nước Thụy Điển ; các công ty Thụy Điển, các trường đại học Thụy Điển và nền văn hóa Thụy Điển.
Thư mời tham dự hội thảo "Thúc đẩy phát triển năng lượng tái tạo và sử dụng năng lượng hiệu quả tại Việt Nam"
Thư mời tham dự hội thảo \Kính gửi quý chuyên gia/cán bộ nghiên cứu hoạt động trong lĩnh vực năng lượng
CÀ PHÊ KIẾN TRÚC Đề tài:“Biến đổi khí hậu, Lũ và Tương Lai Đồng Bằng Sông Cửu Long” - HCMC
CÀ PHÊ KIẾN TRÚC Đề tài:“Biến đổi khí hậu, Lũ và Tương Lai Đồng Bằng Sông Cửu Long” - HCMCLà 1 trong 5 vùng châu thổ quan trọng của thế giới sẽ bị ảnh hưởng nặng nề của sự biến đổi khí hậu , Đồng Bằng Sông Cửu Long (ĐBSCL) cần sớm có các giải pháp khoa học để phòng chống, thích nghi và khắc phục tối đa các ảnh hưởng xấu, tranh thủ tối đa các lợi ích mới. 8000 năm lịch sử của ĐBSCL đã để lại một di sản kỳ diệu cần được gìn giữ. 20 triệu dân Việt Nam sống ở vùng này đang đóng góp 90% sản lượng gạo xuất khẩu, 69% thủy sản xuất khẩu ... và tương đối có nhiều ưu thế về thổ nhưỡng...
Mời xem phim chủ đề Tăng trưởng - TTNCPT - Đại học Mở TPHCM
Mời xem phim chủ đề Tăng trưởng - TTNCPT - Đại học Mở TPHCMNếu áo quần là nhu cầu, thì thời trang là một trong những biểu tượng hàng đầu của xã hội tiêu thụ. Là người tiêu dùng, có lẽ một bộ phận trong chúng ta đã quan tâm muốn biết quần áo chúng ta mặc hàng ngày được sản xuất ra sao. Là một quốc gia xuất khẩu may mặc, Việt Nam cũng cần biết: người tiêu dùng ở châu Âu đã hiểu gì về ngành nghề này? Họ nghĩ gì, chờ đợi gì? Các cơ quan chức năng ở các nước phát triển đang có dự định gì về tiêu chuẩn nhập khẩu?
THƯ MỜI SALON ĐIỆN ẢNH - Tp.HCM
THƯ MỜI SALON ĐIỆN ẢNH - Tp.HCMAnh chị và các bạn thân mến! Vào 19h30 tối thứ bảy 06/12/2014, tại SALON VĂN HÓA CÀ PHÊ THỨ BẢY, 19B Phạm Ngọc Thạch, Q.1, TPHCM buổi Salon điện ảnh có chuyên đề: TƯỞNG NHỚ ĐẠO DIỄN MIKE NICHOLS VỪA QUA ĐỜI … NHỚ LẠI KIỆT TÁC HÀI LÀM THAY ĐỔI HOLLYWOOD Phim: THE GRADUATE (SINH VIÊN TỐT NGHIỆP)
Giao lưu với nhóm "Gandhi Voyage" - 14/12 HCMC
Giao lưu với nhóm \

Thông tin giao lưu với nhóm "Gandhi Voyage" - Chủ nhật tuần này tại Tp.HCM

TỌA ĐÀM "BUÝT SÀI GÒN - VĂN MINH & TIẾP CẬN" - 13/12 HCMC
TỌA ĐÀM \

Tọa đàm “Buýt sài gòn,Văn minh & Tiếp cận” là một hoạt động nằm trong dự án “Nào ta cùng buýt” được thực hiện bởi Mạng lưới các tác nhân thay đổi (Be Change Agents)dưới sự bảo trợ của Trung tâm Sống và Học tập vì Môi trường và Cộng đồng(Live&Learn).

Tập huấn thanh niên về Biến đổi khí hậu, 13-14/12, HCMC
Tập huấn thanh niên về Biến đổi khí hậu, 13-14/12, HCMC

Trong khuôn khổ dự án “Thích ứng với biến đổi khí hậu lấy trẻ em làm trọng tâm” hợp tác giữa Trung tâm Sống và Học tập vì Môi trường và Cộng đồng (Live & Learn) và Plan tại Việt Nam, với sự điều phối của Mạng lưới Thế Hệ Xanh và sự tài trợ của Cơ quan phát triển Quốc tế Australia (AusAID), tổ chức Live and Learn sẽ tổ chức một khóa tập huấn nhằm nâng cao năng lực cho thanh niên và trẻ em trong ứng phó với biến đổi khí hậu.

Hội thảo: CHIẾN LƯỢC TĂNG TRƯỞNG XANH Ở VIỆT NAM – HN
Hội thảo:  CHIẾN LƯỢC TĂNG TRƯỞNG XANH Ở VIỆT NAM – HNHội thảo: CHIẾN LƯỢC TĂNG TRƯỞNG XANH Ở VIỆT NAM – VAI TRÒ CỦA CÁC TỔ CHỨC ĐÀO TẠO VÀ NGHIÊN CỨU. Hà Nội, ngày 19 tháng 12 năm 2014
TỌA ĐÀM “CUỘC CHIẾN THỦY ĐIỆN VÀ VAI TRÒ CSOs" - HN
TỌA ĐÀM “CUỘC CHIẾN THỦY ĐIỆN VÀ VAI TRÒ CSOs\14:00 thứ Sáu ngày 19/12 tuần này, tại Khuyên Club sẽ diễn ra chương trình tọa đàm “CUỘC CHIẾN THỦY ĐIỆN VÀ VAI TRÒ CSOs.
CÀ PHÊ THỨ BẢY 20/12 - HCMC
CÀ PHÊ THỨ BẢY 20/12 - HCMC

CÀ PHÊ THỨ BẢY 20/12 - HCMC: 09h sáng thứ bảy: CÀ PHÊ Ý TƯỞNG MỚI. Chủ đề: “Tại sao thiết kế?" (Why Design?) 19h30 tối thứ bảy: Salon điện ảnh có chuyên đề: Phim Pháp hay và đáng xem nhất trong thập niên gần đây - Phim: The Intouchables (Những kẻ bên lề)

HỘI THẢO "TRUYỀN THÔNG & CÁC TỔ CHỨC XÃ HỘI" - TPHCM - 29/12
HỘI THẢO \8h00 thứ Hai, ngày 29/12 này tại tòa nhà 34 Hoàng Việt, quận Tân Bình - TPHCM, Trung tâm Truyền thông Giáo dục cộng đồng (MEC) sẽ tổ chức Hội thảo đóng góp ý kiến lần 2 cho báo cáo nghiên cứu khảo sát về Năng lực truyền thông của các tổ chức xã hội. Chương trình có tên gọi: "Truyền thông & các tổ chức xã hội".
Xem phim “Dàn đồng ca” ngẫm tình thày trò thời nay - TP.HCM
Xem phim “Dàn đồng ca” ngẫm tình thày trò thời nay - TP.HCMBộ phim “Dàn đồng ca” kể về thầy giáo Mathieu – người đã mở lối cho những học sinh trường nội trú “Đáy Ao” bằng âm nhạc. Chẳng cần đến nút thắt giật gân, ly kỳ, bộ phim vẫn dẫn người xem nhẹ nhàng chìm đắm vào cuộc sống của trẻ em Pháp những năm sau Thế chiến thứ II, để rồi, chợt giật mình trở về thực tại với những “đáy ao” vẫn nhan nhản sau hơn 60 năm.
Thư mời tham gia cuộc thi "Sáng tác ảnh về môi trường
Thư mời tham gia cuộc thi \Cuộc thi "Sáng tác Ảnh về Môi trường" được Trung tâm Sáng kiến Sức khỏe và Dân số (CCIHP) phối hợp với Trung tâm Đào tạo và Truyền thông Môi trường – Tổng cục Môi trường tổ chức nhằm thúc đẩy sự quan tâm đến môi trường của mọi tầng lớp nhân dân, các tổ chức, đơn vị và các cá nhân, đồng thời cuộc thi cũng mong muốn góp thêm tiếng nói với các nhà quản lý, các nhà lập chính sách về những nỗ lực bảo vệ và cải tạo môi trường của các tổ chức, cá nhân trong thời gian qua.
Sân chơi du lịch mới cho người trẻ tuổi
Sân chơi du lịch mới cho người trẻ tuổiVới mục đích xây dựng ý thức, văn hóa du lịch cho các thanh thiếu niên Việt Nam, cuộc thi Du lịch có trách nhiệm với môi trường xã hội diễn ra và kéo dài đến 15/6 qua nhiều vòng thi hấp dẫn.
Chương trình tham vấn cộng đồng: “Don Sahong: Câu chuyện cá leo thang – Một dòng sông, hàng triệu cuộc sống" (8g30 21/01/2015)
Chương trình tham vấn cộng đồng: “Don Sahong: Câu chuyện cá leo thang – Một dòng sông, hàng triệu cuộc sống\

Kính gứi quý vị thông tin hoạt động của Ngôi nhà Hữu nghị Mekong phối hợp cùng Mạng lưới Sông ngòi Việt Nam.

CÀ PHÊ THỨ BẢY
CÀ PHÊ THỨ BẢYCà phê thứ bảy - TP HCM 24/1/2015
Green Drinks 27 Jan 2015: Bike4afuture Đạp xe đôi từ Việt Nam đến Paris
Green Drinks 27 Jan 2015: Bike4afuture Đạp xe đôi từ Việt Nam đến Paris

Chúng tôi hân hạnh mang chương trình Green Drinks Saigon trở lại với một format mới và những cơ hội mới cho các sự kiện giao lưu xã hội ý nghĩa và truyền tải nhiều thông tin. Hãy tham gia một buổi tối đầy sự kiện hành động cùng chúng tôi: Chúng ta sẽ chào đón các diễn giả Simon Nelson & Nguyễn Kim Ngân với cuộc nói chuyện ngắn gọn và thú vị về lý do họ đạp xe từ TP. HCM đến Paris để hành động vì biến đổi khí hậu,

THƯ MỜI SALON ĐIỆN ẢNH tối thứ bảy 31/01/2015,
THƯ MỜI SALON ĐIỆN ẢNH tối thứ bảy 31/01/2015,Anh chị và các bạn thân mến! Vào 19h30 tối thứ bảy 31/01/2015, tại SALON VĂN HÓA CÀ PHÊ THỨ BẢY, Nhân mùa Oscar 2015 Chuyên đề:Tác phẩm văn học vĩ đại của thập niên 1960: BAY TRÊN TỔ CHIM CÚC CU của Ken Kesey, từ tiểu thuyết sang phim Chiếu phim BAY TRÊN TỔ CHIM CÚC CU Kỷ niệm 40 năm bộ phim đoạt 5 giải Oscar hàng đầu (Big Five) 1975 - 2015 Đạo diễn: Milos Forman Diễn viên: Jack Nicholson, Louise Fletcher
UNAOC-EF SUMMER SCHOOL 2015 CHÍNH THỨC MỞ ĐƠN ĐĂNG KÝ
UNAOC-EF SUMMER SCHOOL 2015 CHÍNH THỨC MỞ ĐƠN ĐĂNG KÝVới mục tiêu tạo ra những thay đổi tích cực cho xã hội bằng việc bồi dưỡng những thanh niên ưu tú, tổ chức giáo dục EF Education First và Tổ chức liên minh các nền văn minh thế giới (Liên Hợp Quốc) đồng tổ chức Trường học Mùa hè UNAOC – EF Summer School
Kỳ diệu dàn hòa tấu nội tiết
Kỳ diệu dàn hòa tấu nội tiếtMuôn vàn cám ơn Mẹ thiên nhiên tặng cho con người hệ nội tiết kỳ diệu. Dễ thương và ảo diệu. Em bé say sưa bú mẹ. Khi bé mút, tế bào thần kinh gởi tín hiệu đến tuyến yên, yên trước tiết ra prôlactin làm vú chế tạo sữa. Ôxytôcin được yên sau nhả, lùa sữa vào miệng bé. Tuyến tùng ban ngày như một ẩn sĩ ngồi thiền, đêm đến thành tráng sĩ múa kiếm chế tạo mêlatônin đưa người vào giấc nồng. Bốn hột cận giáp, nội tiết nhí nhất, nằm sau tuyến giáp, điều hòa lượng canxi trong máu.
Cuộc thi Video Dành cho Sinh viên - USAID Vietnam
Cuộc thi Video Dành cho Sinh viên - USAID Vietnam

Cơ quan Phát triển Quốc tế Hoa Kỳ (USAID) vừa công bố phát động cuộc thi video dành cho sinh viên các trường đại học, cao đẳng và dạy nghề. Cuộc thi được tổ chức nhằm mục đích khuyến khích và huy động thanh niên Việt Nam tham gia vào giải quyết các thách thức phát triển của đất nước.

Thư ngỏ cuộc thi Video Tranh biện online - VDebate contest
Thư ngỏ cuộc thi Video Tranh biện online - VDebate contest

Bạn mong muốn nâng cao tiếng nói của thanh niên trong các vấn đề môi trường, biến đổi khí hậu, năng lượng, thiên tai,... Bạn yêu thích khám phá vẻ đẹp tranh biện và mong muốn có cơ hội thực hành nhiều hơn, Thế Hệ Xanh thân mời các bạn cùng tham gia cuộc thi video tranh biện online -VDEBATE CONTEST "NẾU NĂNG LƯỢNG CÓ TIẾNG NÓI

MỜI XEM PHIM "DỆT MAY: THỜI TRANG ĐỘC HẠI"
MỜI XEM PHIM \Nếu áo quần là nhu cầu, thì thời trang là một trong những biểu tượng hàng đầu của xã hội tiêu thụ. Là người tiêu dùng, có lẽ một bộ phận trong chúng ta đã quan tâm muốn biết quần áo chúng ta mặc hàng ngày được sản xuất ra sao. Là một quốc gia xuất khẩu may mặc, Việt Nam cũng cần biết: người tiêu dùng ở châu Âu đã hiểu gì về ngành nghề này? Họ nghĩ gì, chờ đợi gì? Các cơ quan chức năng ở các nước phát triển đang có dự định gì về tiêu chuẩn nhập khẩu?
Giới thiệu quán quân Oscar 2015
Giới thiệu quán quân Oscar 2015Ida là bộ phim đen trắng kể về nhân vật Ida (Agata Trzebuchowska thủ diễn), một cô gái mồ côi lớn lên trong một tu viện, sống trong những năm 1960. Tình cờ cô khám phá ra nguồn gốc Do Thái của mình và đằng sau nó là những bí mật quá khứ bi thảm của gia đình trong Thế chiến thứ 2... Bộ phim đã khắc họa một giai đoạn lịch sử đầy đau thương của người dân Ba Lan trong thời gian bị Đức quốc xã chiếm đóng.Trước khi đoạt giải Oscar, phim còn mang về những giải thưởng thanh thế tại các LHP
Chất liệu xanh trong Quy hoạch
Chất liệu xanh trong Quy hoạchSau hơn 150 năm từ khin gười Pháp quy hoạch khu vực trung tâm và có những cái nhìn đầu tiên về quy hoạch Thủ Thiêm thì vùng đất này vẫn còn là một mảng xanh rậm rạp ngay giữa lòng Sài Gòn ngày càng trở nên đông đúc, ngột ngạt. Nhưng lá phổi bên lề thành phố này chắc chắn cũng không chịu đựng được lâu trước sức ép mạnh mẽ từ mọi phía của cả đô thị Sài Gòn và các vùng phụ cận. Nếu việc gần như toàn bộ cái lõi trung tâm của Thủ Thiêm sẽ được bê tông hóa để xây dựng khu “siêu trung tâm thương mại,
NHỮNG KIẾN TRÚC BỀN VỮNG NHIỀU THÚ VỊ
NHỮNG KIẾN TRÚC BỀN VỮNG NHIỀU THÚ VỊChương trình lần thứ 2 của năm 2015 sẽ diễn ra vào ngày 02/04. Chúng tôi vô cùng hân hạnh được giới thiệu với quý vị bài trình bày “NHỮNG KIẾN TRÚC BỀN VỮNG NHIỀU THÚ VỊ” - SUSTAINABLE ARCHITECTURE DELIGHTS do Kiến trúc sư (KTS.) Hidetoshi Sawa, đối tác của KTS. Võ Trọng Nghĩa trình bày.
Xem phim WHIPLASH (Tay trống cự phách) - Best Editing Oscar 2015
Xem phim WHIPLASH (Tay trống cự phách) - Best Editing Oscar 2015Tay Trống Cự Phách - Whiplash: Nội dung kể về chàng trai Andrew (Miles Teller) được nhận vào trường Shaffer, trường nhạc đỉnh nhất nước Mĩ. Tại đây, anh tham gia ban nhạc jazz của trường và phải đối mặt với Fletcher (Terence Fletcher), một chỉ huy dàn nhạc với yêu cầu cực kì khắt khe.
Gặp gở và đối thoại: Một số nét dặc trưng của đô thị Việt Nam
Gặp gở và đối thoại: Một số nét dặc trưng của đô thị Việt NamVào 9h sáng thứ bảy 28 /03/2015 tại SALON VĂN HÓA CÀ PHÊ THỨ BẢY, Lầu 1, Trung Nguyên Coffee, 19B Phạm Ngọc Thạch, Quận 3 sẽ diễn ra buổi cà phê với TS Huỳnh Thế Du Chủ đề: Một số nét dặc trưng của đô thị Việt Nam. Chủ trì: Chuyên gia KT Bùi Văn
Dự án ĂN SẠCH tuyển thành viên BAN TRUYỀN THÔNG
Dự án ĂN SẠCH cần tuyển thành viên BAN TRUYỀN THÔNG: - 2 designer có khả năng thiết kế ấn phẩm truyền thông - 1 photographer có đam mê hoạt động cộng đồng, thích ghi lại khoảnh khắc hoạt động
Tọa đàm: “Tôi chọn màu xanh" - HCMC
Tọa đàm: “Tôi chọn màu xanh\

Hiện nay khi các bạn nghe nói đến những hành động bảo vệ môi trường, bạn sẽ nghĩ ngay đến những việc như đi nhặt rác, gom rác hoặc trồng cây, đạp xe, hết! Nó trở thành một lối mòn mà ai cũng đi nhưng hiệu quả lại không bao lâu, để rồi nó trở nên ngán ngẩm với tất cả mọi người. Vậy câu hỏi là chúng ta có nên đi theo con đường mòn đó hay là sáng tạo ra một phương thức khác hấp dẫn và lâu dài hơn?

Xem phim hay "Một thời để yêu và một thời để chết"
Xem phim hay \

Một thời để yêu và một thời để chết (tiếng Anh: A Time to Love and a Time to Die) là một phim CinemaScope năm 1958 của Mỹ do Douglas Sirk đạo diễn và John Gavin đóng vai chính[1] Phim này dựa trên tiểu thuyết "Zeit zu leben und Zeit zu sterben" (Thời để sống và thời để chết) của nhà văn Đức Erich Maria Remarque, với bối cảnh là Mặt Trận phía Đông trong Chiến tranh thế giới thứ hai và nước Đức thời Đức Quốc xã.

Cuộc thi sáng tác phim tuyên truyền "Khoảnh khắc 3T"
Cuộc thi sáng tác phim tuyên truyền \Tiết giảm, Tái sử dụng và Tái chế chất thải – gọi tắt là 3T, có nguồn gốc từ khái niệm 3R (Reduce - Reuse - Recycle), là những giải pháp được ưu tiên hàng đầu trong quản lý tổng hợp chất thải rắn, hướng tới phát triển bền vững. Cuộc thi “Khoảnh khắc 3T” được tổ chức nhằm vận động sáng tác phim tuyên truyền với nội dung về 3T và phân loại chất thải tại nguồn.
CÀ PHÊ KIẾN TRÚC “CÂY XANH VÀ NGƯỜI DÂN ĐÔ THỊ ”
CÀ PHÊ KIẾN TRÚC  “CÂY  XANH  VÀ  NGƯỜI DÂN ĐÔ THỊ ”Vào 9h sáng thứ bảy, 11/04/2015, tại SALON VĂN HÓA quán CÀ PHÊ THỨ BẢY, Lầu 1, 19B Phạm Ngọc Thạch, Quận 3, TPHCM sẽ diễn ra buổi CÀ PHÊ KIẾN TRÚC Chủ đề: “CÂY XANH VÀ NGƯỜI DÂN ĐÔ THỊ ”. Diễn giả: TS-KTS Vũ Thị Hồng Hạnh. Chủ trì: KTS Nguyễn Hữu Thái
Chiếu phim Nga: LEVIATHAN (QUÁI VẬT THỜI ĐẠI)
Chiếu phim Nga: LEVIATHAN (QUÁI VẬT THỜI ĐẠI)Chiếu phim Nga: LEVIATHAN (QUÁI VẬT THỜI ĐẠI) Đạo diễn: Andrey Zvyagintsev Diễn viên: Aleksei Serebryakov - Elena Lyadova - Vladimir Vdovichenkov - Phim đoạt 10 giải thưởng điện ảnh quốc tế năm 2014 - Đoạt giải Quả Cầu Vàng Phim nói tiếng nước ngoài hay nhất 2014 - Đề cử Oscar Phim nói tiếng nước ngoài hay nhất 2014
Tìm kiếm TNV hưởng ứng GYSD 2015
Tìm kiếm TNV hưởng ứng GYSD 2015Đồng Hành Ước Mơ là một nhóm tình nguyện được tổ chức với mục đích cung cấp tình nguyện viên hỗ trợ, giúp đỡ các bạn học sinh, sinh viên gặp khó khăn ở các mái ấm, nhà mở trên địa bàn thành phố Hồ Chí Minh trong việc học tập. Hai đối tượng mà nhóm nhắm đến là trẻ em đường phố và người khiếm thị. Với tư cách là một trong những đối tác cộng đồng (Community Partner) của GYSD2015, Đồng Hành Ước Mơ sẽ tổ chức một sự kiện tình nguyện cho trẻ em ở Hóc Môn, Tp.HCM, để cùng hưởng ứng ngày hội toàn cầu.
Thư mời TRIỂN LÃM SÁNG KIẾN THANH NIÊN 2015
Thư mời TRIỂN LÃM SÁNG KIẾN THANH NIÊN 2015Bạn sẽ có cơ hội kết nối và học hỏi từ rất nhiều các bạn trẻ năng động trên khắp miền đất nước. Có những sáng kiến đạt giải qua các cuộc thi trong nước và quốc tế như ứng dụng công nghệ thông tin vào giáo dục, những dự án môi trường, ngày hội vui chơi cho trẻ vùng cao, lớp học trung thực… Và rất nhiều cơ hội về ý tưởng, mạng lưới và nguồn lực từ các tổ chức NGO và doanh nghiệp đang chờ bạn! Những công dân tích cực, bạn đã sẵn sàng nhận hộ chiếu của mình?
CUỘC THI LÀM PHỤ ĐỂ CHO CLIP MÔI TRƯỜNG VÀ BIẾN ĐỔI KHÍ HẬU
CUỘC THI LÀM PHỤ ĐỂ CHO CLIP MÔI TRƯỜNG VÀ BIẾN ĐỔI KHÍ HẬUCó bao giờ bạn xem được một clip rất ý nghĩa, rất tâm đắc và vội vàng đăng lên Facebook để chia sẻ cái “phiêu linh” đó với bạn bè nhưng chẳng đứa nào hiểu vì nó là Tiếng Anh chưa?. Có bao giờ bạn muốn học hỏi thêm 1 kỹ năng mới *VD như làm sub phim chẳng hạn* và tưởng tượng rằng mình học chơi, thực hành mà cũng có thưởng to chưa? *** Nếu rồi thì hãy tham gia ngay cuộc thi này! *** Mà cho dù là chưa thì cũng cứ tham gia cuộc thi này! **
Cuộc thi tranh biện qua Video "Nếu năng lượng có tiếng nói"
Cuộc thi tranh biện qua Video \Thế Hệ Xanh thân mời các bạn cùng tham gia cuộc thi Video Tranh biện "NẾU NĂNG LƯỢNG CÓ TIẾNG NÓI"
KHẢO SÁT CÔNG DÂN VỀ NĂNG LƯỢNG
KHẢO SÁT CÔNG DÂN VỀ NĂNG LƯỢNGTrung tâm Sống và Học tập vì Môi trường và Cộng đồng (Live&Learn), trực thuộc Liên hiệp các Hội Khoa học và Kỹ thuật Việt Nam, và Liên minh Năng lượng Bền vững Việt Nam đang thực hiện khảo sát online
Tham Gia Cuộc Thi Hành Trình Những Người Trẻ Phi Lý
Tham Gia Cuộc Thi Hành Trình Những Người Trẻ Phi LýBạn là một người trẻ, đang ấp ủ những ý tưởng khởi nghiệp tuyệt vời với khát khao giải quyết các vấn đề xã hội nhức nhối hiện nay nhưng lại băn khoăn chưa biết hướng đi nào phù hợp? Bao lần bạn tự hỏi liệu bản thân đã đủ khả năng để khởi nghiệp hay chưa? Dự án của mình có khả thi hay không? Mình có thể tiếp cận nguồn vốn từ những nơi nào ? Có thể học hỏi kinh nghiệm từ những ai ?
TỌA ĐÀM "MINH BẠCH TÁC NHÂN THÚC ĐẨY HOẠT ĐỘNG ĐỘI NHÓM HIỆU QUẢ"
TỌA ĐÀM \Minh bạch - Trung thực hiện nay đang bị nhầm tưởng chỉ là một mảng do chính những nhóm/CLB/tổ chức hoạt động về minh bạch trung thực mới quan tâm và hướng tới. Nhưng thực chất, minh bạch là một tác nhân quan trọng không thể thiếu để thúc đẩy hoạt động nhóm/CLB/tổ chức hiệu quả. Vì thế để giúp đập tan định kiến này về minh bạch cũng như sẽ thúc đẩy sự quan tâm và định hướng nhóm/CLB/tổ chức của các bạn hướng đến minh bạch sẽ là một giá trị xuyên suốt trong hoạt động của các bạn.
SỐC VĂN HÓA
SỐC VĂN HÓAVào 9h sáng thứ bảy 16/05/2015, tại SALON VĂN HÓA CÀ PHÊ THỨ BẢY, Lầu 1, 19B Phạm Ngọc Thạch, Quận 3, TPHCM sẽ diễn ra buổi GẶP GỠ & ĐỐI THOẠI với KTS, HS LÝ TRỰC DŨNG Chủ đề: SỐC VĂN HÓA, VĂN MINH TRUNG HOA, VĂN MINH PHƯƠNG TÂY , XÂM LƯỢC, ĐỒNG HÓA,HỘI NHẬP. VĂN HÓA VIỆT TRONG VÀ SAU CHIẾN TRANH, TRẢI NGHIỆM, KIẾN GIẢI VÀ NHẬN ĐỊNH CỦA CÁ NHÂN
Chiếu Phim Hy Lạp: THIÊN THU VÀ MỘT NGÀY
Chiếu Phim Hy Lạp: THIÊN THU VÀ MỘT NGÀYVào 19h30 tối thứ bảy 23/05/2015, tại SALON VĂN HÓA quán CÀ PHÊ THỨ BẢY, lầu 1, 19B Phạm Ngọc Thạch, quận 3, TPHCM, Chuyên đề: Những kiệt tác được giải thưởng Cannes, Phim Hy Lạp: MIA AIONIÓTITA KAI MIA MÉRA (THIÊN THU VÀ MỘT NGÀY). Đạo diễn: Theodoros Angelopoulos. Diễn viên: Bruno Ganz - Isabelle Renauld * Cành Cọ Vàng năm 1998
Chiếu phim: Phim Thổ Nhĩ Kỳ Kış Uykusu (Ngủ đông)
Chiếu phim: Phim Thổ Nhĩ Kỳ Kış Uykusu (Ngủ đông)Vào 19h30 tối thứ bảy 06/06/2015, tại SALON VĂN HÓA CÀ PHÊ THỨ BẢY, chương trình SALON ĐIỆN ẢNH Chuyên đề: THẾ GIỚI ĐIỆN ẢNH NGÒAI HOLYWOOD Chiếu phim: Phim Thổ Nhĩ Kỳ Kış Uykusu (Ngủ đông)
Workshop: Tìm hiểu sản phẩm xanh - Tp.HCM 20-21/6/2015
Workshop: Tìm hiểu sản phẩm xanh - Tp.HCM 20-21/6/2015Bạn là người tiêu dùng quan tâm đến các sản phẩm dịch vụ xanh? Hãy cùng đến tham gia workshop "Tìm hiểu sản phẩm xanh" để biết thêm nhiều thông tin bổ ích, tham gia những trò chơi thú vị và có cơ hội mang về những phần quà hấp dẫn. Workshop được Mạng Xã hội Sống Xanh .vn * và Saigon Green Fair ** phối hợp tổ chức trong khuôn khổ Phiên chợ xanh lần 2.
Cà phê Kiến Trúc 9h sáng thứ bảy ngày 13/06/2015 - Tp.HCM
Cà phê Kiến Trúc 9h sáng thứ bảy ngày 13/06/2015 - Tp.HCMVào 9h sáng thứ bảy, 13/06/2015, tại SALON VĂN HÓA quán CÀ PHÊ THỨ BẢY, Lầu 1, 19B Phạm Ngọc Thạch, Quận 3, TPHCM sẽ diễn ra buổi CÀ PHÊ KIẾN TRÚC Chủ đề:“Ngập lụt đô thị ở TPHCM: chiến lược và giải pháp”
TUYỂN CÔNG TÁC VIÊN SỰ KIỆN RA ĐỒNG CÙNG NÔNG DÂN LẦN 2
TUYỂN CÔNG TÁC VIÊN SỰ KIỆN RA ĐỒNG CÙNG NÔNG DÂN LẦN 2

ĂN SẠCH là một dự án phi lợi nhuận về phát triển nông nghiệp bền vững được thành lập bởi một nhóm bạn trẻ Hà Nội vào ngày 04/01/2015. Dự án ra đời dưới sự bảo trợ của chương trình huấn luyện lãnh đạo trẻ hướng tới các vấn đề xã hội mang tên I COMMIT, do Trung tâm Nghiên cứu Phát triển Bền vững CSDS Việt Nam phối hợp với tổ chức EyeOpenerWork (Hà Lan) thực hiện, trong khuôn khổ chương trình Active Citizens của Hội đồng Anh. Trong giai đoạn truyền thông dự án, ĂN SẠCH đã tổ chức hoạt động MỘT NGÀY

Sự kiện ÁNH SÁNG CUỐI ĐƯỜNG HẦM
Sự kiện ÁNH SÁNG CUỐI ĐƯỜNG HẦM

Cuộc cách mạng công nghiệp, sự tăng trưởng kinh tế…. và trái đất đang nóng lên, than dầu mỏ tài nguyên thiên nhiên đang cạn kiệt. Từ đợt nóng khủng khiếp tại Ấn Độ khiến hơn 1000 người thiệt mạng, đến cơn dông của Hà Nội, “nắng nóng ở miền Trung người chết lúa héo” rồi “hạn hán Ninh Thuận tiếp diễn gay gắt”... Chẳng lẽ không còn cách nào khác? Phải chăng con đường chúng ta đi đang bế tắc?

THƯ MỜI SALON ĐIỆN ẢNH 27/06/2015
THƯ MỜI SALON ĐIỆN ẢNH  27/06/2015Anh chị và các bạn thân mến! Vào 19h30 tối thứ bảy 27/06/2015, tại SALON VĂN HÓA quán CÀ PHÊ THỨ BẢY, lầu 1, 19B Phạm Ngọc Thạch, quận 3, TPHCM Chuyên đề: GIỚI THIỆU OSCAR 2014 NỮ DIỄN VIÊN CHÍNH XUẤT SẮC NHẤT Chiếu phim: STILL ALICE (VẪN LÀ ALICE)
CÂY TRỒNG BIẾN ĐỔI GEN: THẾ GIỚI MONSANTO
CÂY TRỒNG BIẾN ĐỔI GEN: THẾ GIỚI MONSANTOTrung tâm Nghiên cứu Phát triển - Trường Đại học Mở Tp.HCM trân trọng kính mời Quý Thầy Cô và các bạn sinh viên đến tham dự buổi xem phim và tọa đàm với chủ đề: "CÂY TRỒNG BIẾN ĐỔI GEN: THẾ GIỚI MONSANTO" Thời gian: Thứ hai, ngày 29/06/2015, lúc 18g00 Địa điểm: Hội trường B (P.601 cũ), lầu 6, Trường Đại học Mở TpHCM, 97 Võ Văn Tần, Q.3, Tp.HCM.
Sustainable “Farm to Table” in Vietnam? HCMC 2 July
Sustainable “Farm to Table” in Vietnam? HCMC 2 July

Join us for Green Drinks on July 2 with our guest speaker Hiroki from CitiFarm informing you about the issues of agricultural safety in Vietnam:

Vòng tài trợ Rút Ngắn Khoảng Cách vì Môi Trường 2015: Kêu gọi Đề xuất Dự án
Vòng tài trợ Rút Ngắn Khoảng Cách vì Môi Trường 2015: Kêu gọi Đề xuất Dự ánQuỹ Cộng Đồng Rút Ngắn Khoảng Cách của Trung tâm Hỗ trợ Phát triển Cộng đồng LIN kêu gọi đề xuất dự án từ các tổ chức phi lợi nhuận địa phương (NPO) đang làm việc để cải thiện và/hoặc bảo vệ môi trường tại thành phố Hồ Chí Minh hoặc các tỉnh lân cận. Đây là vòng tài trợ thứ hai của Quỹ trong năm 2015 và là lần thứ năm mà quỹ tài trợ tập trung vào một chủ đề cụ thể.
ĐÊM NHẠC ACOUSTIC GÂY QUỸ VỚI DỰ ÁN ĂN SẠCH
ĐÊM NHẠC ACOUSTIC GÂY QUỸ VỚI DỰ ÁN ĂN SẠCH

Dự án ĂN SẠCH là một dự án phi lợi nhuận với mục tiêu thay đổi nhận thức của người nông dân về NÔNG NGHIỆP XANH! Chúng tôi trân trọng giới thiệu đêm nhạc gây quỹ chủ đề ACOUSTIC! MÙA ĐI QUA PHỐ Hãy đến với một buổi tối thứ 7 lãng mạn, nhẹ nhàng tại AnCafe! Link sự kiện: https://www.facebook.com/events/414025952133324/ Mọi người ủng hộ Ăn Sạch nhé! Cảm ơn ạ!

Cà phê gặp gỡ và đối thoại chủ đề: Ung thư biết sớm trị lành
Cà phê gặp gỡ và đối thoại chủ đề: Ung thư biết sớm trị lànhAnh chị và các bạn thân mến! Vào 9h sáng thứ bảy 25/07/2015, tại SALON VĂN HÓA CÀ PHÊ THỨ BẢY, Lầu 1, Trung Nguyên Coffee, 19B Phạm Ngọc Thạch, Quận 3 sẽ diễn ra buổi cà phê gặp gỡ và đối thoại với GSTS Nguyễn Chấn Hùng Chủ đề: Ung thư biết sớm trị lành (Có tặng 30 quyển sách dành cho quý khách tham dự đến sớm nhất). Chủ trì: BS Đỗ Hồng Ngọc
Chiếu phim và tọa đàm "ĐIỀU TRA ĐẶC BIỆT: VÌ SAO CÁC BÃI CÁT BIẾN MẤT?"
Chiếu phim và tọa đàm \

Trung tâm Nghiên cứu Phát triển & Khoa Đào tạo Đặc biệt - Trường Đại học Mở Tp.HCM trân trọng kính mời Quý Thầy Cô và các bạn sinh viên đến tham dự buổi xem phim và tọa đàm với chủ đề: "ĐIỀU TRA ĐẶC BIỆT: VÌ SAO CÁC BÃI CÁT BIẾN MẤT?" Thời gian: Thứ sáu, ngày 31/07/2015, lúc 18g00 Địa điểm: Hội trường B (P.601 cũ), lầu 6, Trường Đại học Mở Tp.HCM, 97 Võ Văn Tần, Q.3, Tp.HCM. Ngôn ngữ: Tiếng Việt.

TỌA ĐÀM VỀ GIỐNG CÂY TRỒNG BIẾN ĐỔI GEN TẠI VIỆT NAM (TỌA ĐÀM GMO)
TỌA ĐÀM VỀ GIỐNG CÂY TRỒNG BIẾN ĐỔI GEN TẠI VIỆT NAM (TỌA ĐÀM GMO)

Với mục đích tạo điều kiện cho công chúng hiểu rõ hơn về vấn đề cây trồng biến đổi gen tại Việt Nam và những tác động của nó đối với sản xuất nông nghiệp, môi trường và con người, Quỹ Hòa bình và Phát triển phối hợp cùng với Trung tâm Nghiên cứu Xã hội và Giáo dục Trí Việt sẽ tổ chức buổi Tọa đàm với chủ đề "giống cây trồng biến đổi gen tại Việt Nam".

MANDALA NIGHT series
MANDALA NIGHT series

Đêm gặp gỡ đầu tiên giành cho nhữn ai muốn tạo ra thay đổi ! Bước vào vòng tròn của những người đang hoặc sẽ đóng góp chuyên môn của mình cho những sáng kiến phi lợi nhuận. Tìm thêm những cơ hội mới và hiểu sâu hơn về tình nguyện chuyên môn từ những người cùng chí hướng và từ các tổ chức phi lợi nhuận địa phương đang làm việc với các tình nguyện viên chuyên môn.

CrowdPitch S01E06 "Narrow the Gap" with Green Drinks & LIN Center
CrowdPitch S01E06 \Be ready for this August, since CrowdPitch, Green Drinks, and LIN Center are joining force to promote social entrepreneurship and environmental projects, with our upcoming 6th episode of CrowdPitch Season 1. Time: 6.30pm, August 27th Venue: Hoa Sen University Ticket: VND 150,000 (online) - VND 200,000 (at-the-door)
Chiếu phim "CÂY TRỒNG BIẾN ĐỔI GEN: THẾ GIỚI MONSANTO"
Chiếu phim \

Trường Đại học Mở Tp.HCM trân trọng kính mời Quý Thầy Cô và các bạn sinh viên đến tham dự buổi xem phim và tọa đàm với chủ đề: "CÂY TRỒNG BIẾN ĐỔI GEN: THẾ GIỚI MONSANTO" Thời gian: Thứ hai, ngày 24/08/2015, lúc 09g00 Địa điểm: Cơ sở 3, số 68 Lê Thị Trung thị xã Thủ Dầu Một – tỉnh Bình Dương.

Thư mời sự kiện kết nối "Kinh doanh vì cộng đồng"
Thư mời sự kiện kết nối \

Kính gửi quý đơn vị, Viện hợp tác phát triển châu Âu (IECD) và Trung tâm Đào tạo Phát triển Xã hội (SDTC) trân trọng kính mời quý đơn vị đến tham dự sự kiện kết nối "KINH DOANH VÌ CỘNG ĐỒNG" Mục tiêu của sự kiện nhằm tạo cơ hội giao lưu, chia sẻ kinh nghiệm và tăng cường sự gắn kết, hợp tác giữa các tổ chức kinh doanh vì cộng đồng và các đơn vị hỗ trợ phát triển kinh doanh. Thời gian: 08h30 - 12h00 ngày 19/08/2015 (thứ 4) Địa điểm: Trường đại học Tôn Đức Thắng

Chiếu phim “Food Inc.” (đề cử Oscar 2010) về sự thật của nền công nghiệp thực phẩm - 23/8/2015 HCMC
Chiếu phim “Food Inc.” (đề cử Oscar 2010) về sự thật của nền công nghiệp thực phẩm - 23/8/2015 HCMC

Trong hoạt động xanh phối hợp giữa Mạng Xã hội SốngXanh.vn và Saigon Green Fair tháng 8, chúng tôi hân hạnh giới thiệu với các bạn một bộ phim nổi tiếng thế giới về chủ đề thực phẩm, theo sau là phần thảo luận mở. Food, Inc. là một phim tài liệu sản xuất năm 2008 do Robert Kenner - người từng đạt giải thưởng Emmy - làm đạo diễn. Phim cũng đã được đề cử giải Oscar năm 2010 cho hạng mục Best Documentary, Features cùng nhiều giải thưởng và đề cử quan trọng khác.

CƠ HỘI GẶP GỠ VÀ TRAO ĐỔI VỚI GIÁO SƯ VÕ TÒNG XUÂN
CƠ HỘI GẶP GỠ VÀ TRAO ĐỔI VỚI GIÁO SƯ VÕ TÒNG XUÂN

HỘI THẢO CHUYÊN ĐỀ VỚI DIỄN GIẢ: GIÁO SƯ TIẾN SỸ NÔNG HỌC VÕ TÒNG XUÂN Chương trình do Dự án Mô hình Máy phát điện dựa trên Năng lượng sóng biển (SEAWEED) tổ chức. Dự án thuộc Đại học Tân Tạo và được tài trợ thông qua chương trình PEER Science thuộc USAID - Hoa Kỳ từ 8/2013

Nói chuyện về "Giáo dục Văn hóa Hòa bình" - Tp.HCM 17/9/2015
Nói chuyện về \
ĂN SẠCH TÌM BẠN ĐỒNG HÀNH THẾ HỆ II
ĂN SẠCH TÌM BẠN ĐỒNG HÀNH THẾ HỆ II

Ăn sạch đang tìm bạn đồng hành, muốn đi chung thì kích vào đây : http://on.fb.me/1KrS9oZ #AnSach #tuyengen2ansach #AnSachProject

Mời cộng đồng sống xanh Việt Nam ấn like fanpage: facebook.com/AEMOMekongDelta
Mời cộng đồng sống xanh Việt Nam ấn like fanpage: facebook.com/AEMOMekongDelta

Mời cộng đồng sống xanh Việt Nam ấn like fanpage để ủng hộ A.E.M Project cũng như theo dõi các chương trình, sự kiện của nhóm.

VỪA HỌC VỪA CHƠI VỚI BUỔI SINH HOẠT NGOẠI KHÓA “GIÁO DỤC BIẾN ĐỔI KHÍ HẬU VÀ VẼ TRANH VỀ MÔI TRƯỜNG”
VỪA HỌC VỪA CHƠI VỚI BUỔI SINH HOẠT NGOẠI KHÓA “GIÁO DỤC BIẾN ĐỔI KHÍ HẬU VÀ VẼ TRANH VỀ MÔI TRƯỜNG”Với mục đích cung cấp kiến thức cho các em học sinh tiểu học về Biến đổi khí hậu – vấn đề đang được cả thế giới quan tâm nhưng ở vùng quê hẻo lánh thì các em có được rất ít thông tin về biến đổi khí hậu. Chính vì thế mà buổi sinh hoạt ngoại khóa này có ý nghĩa vô cùng quan trọng trong việc cung cấp kiến thức về biến đổi khí hậu cho các em học sinh.
[CẦN THƠ] Mô hình nhà học Bằng chai nhựa kêu gọi Góp vỏ chai bỏ đi
[CẦN THƠ] Mô hình nhà học Bằng chai nhựa kêu gọi Góp vỏ chai  bỏ đi

Nhằm kêu gọi sinh viên trong toàn trường quyên góp vỏ chai nhựa bỏ đi để xây dựng mô hình nhà chai thí điểm tại Khoa Môi trường & TNTN, đồng thời tận dụng nó để làm phòng học. Và đồng thời kêu gọi mọi người chung tay hành động vì Môi trường xanh, sạch đẹp.

KHỞI ĐỘNG QUỸ SÁNG KIẾN “TRẺ EM VÀ THANH NIÊN VỚI BIẾN ĐỔI KHÍ HẬU” GIAI ĐOẠN 2015 – 2016
KHỞI ĐỘNG QUỸ SÁNG KIẾN “TRẺ EM VÀ THANH NIÊN VỚI BIẾN ĐỔI KHÍ HẬU” GIAI ĐOẠN 2015 – 2016

Cơ hội nhận được tài trợ cho ý tưởng xanh từ Quỹ Sáng kiến “Trẻ em và Thanh niên với Biến đổi khí hậu” 2015-2016

"Cho con chơi đi, con không cần quà"
\

Đó là câu nói hồn nhiên của một em học sinh tại điểm trường Tiểu học Ngô Quyền, xã An Phúc, huyện Đông Hải, Bạc Liêu trong chương trình "Cùng em đến lớp" năm 2015.

Tham dự Lễ trao giải Cuộc thi "Sáng kiến vì cộng đồng 2015"
Tham dự Lễ trao giải Cuộc thi \

Lễ trao giải Cuộc thi "Sáng kiến vì cộng đồng 2015" được diễn ra vào ngày 04/01/2016 sắp tới, tại trường Đại học Quốc Gia thu hút đông đảo sự quan tâm của dư luận.

CHUỖI SỰ KIỆN ECY 2016: ĐỪNG QUAN TÂM MỘT NỬA
CHUỖI SỰ KIỆN ECY 2016: ĐỪNG QUAN TÂM MỘT NỬAECY 2016 “ĐỪNG QUAN TÂM MỘT NỬA” là chương trình đầy ý nghĩa do đội UEH SISE trực thuộc Đại học Kinh tế thành phố Hồ Chí Minh tổ chức với sứ mệnh nâng cao ý thức của sinh viên về các vấn đề cộng đồng, tạo điều kiện cho các bạn sinh viên tiếp xúc và tìm hiểu các dự án Kinh doanh vì cộng đồng – giải pháp cho việc phát triển một cộng đồng bền vững.
Cuộc thi ảnh #ĐỪNGLÀMNGƠ
Cuộc thi ảnh #ĐỪNGLÀMNGƠ Cuộc thi ảnh “#ĐừngLàmNgơ” là một hoạt động trong chuỗi sự ECY 2016: “ĐỪNG QUAN TÂM MỘT NỬA” của đội UEH SISE thuộc Trường Đại học Kinh tế thành phố Hồ Chí Minh. Cuộc thi mong muốn tác động rộng rãi đến nhiều đối tượng, đặc biệt là sinh viên đang theo học tại các trường Đại học trong địa bàn thành phố Hồ Chí Minh...
Làm thế nào để có một chế độ ăn tốt cho sức khỏe? và những điều bạn nên biết
Làm thế nào để có một chế độ ăn tốt cho sức khỏe? và những điều bạn nên biết

Chế độ ăn tốt cho sức khỏe hay còn gọi là chế độ ăn sạch đang ngày càng phổ biến rộng rãi và trở thành một lối sống lành mạnh. Vậy làm thế nào để có một chế độ ăn tốt cho sức khỏe và duy trì nó một cách hiệu quả. Chúng ta hãy cùng nhau tìm hiểu bài viết dưới đây nhé.

Triển lãm ảnh “TỪ BÀN TAY ĐẾN BÀN TAY”
Triển lãm ảnh “TỪ BÀN TAY ĐẾN BÀN TAY”Triển lãm ảnh “TỪ BÀN TAY ĐẾN BÀN TAY” nằm trong chuỗi sự kiện ECY 2016: “ĐỪNG QUAN TÂM MỘT NỬA” của đội UEH SISE thuộc Trường Đại học Kinh tế thành phố Hồ Chí Minh. Trưng bày những câu chuyện và hình ảnh ghi nhận một cách chân thực những khoảnh khắc đáng suy ngẫm trong cuộc sống, hứa hẹn sẽ đánh thức những xúc cảm sâu lắng nhất của người xem về cộng đồng xung quanh, và về chính bản thân họ giữa cộng đồng ấy.
Hội thảo sản xuất và ứng dụng silica từ vỏ trấu
Hội thảo sản xuất và ứng dụng silica từ vỏ trấu

Ngày 28-4-2017 tại Viện hàn lâm Khoa học và Công nghệ Việt nam, Hà Nội (Tòa nhà A1, VAST, 18 Hoàng Quốc Việt, quận Cầu Giấy) sẽ diễn ra Chương trình Hợp tác Quốc tế “Giải pháp Công nghệ Toàn diện” và hội thảo "Nghiên cứu, Sản xuất, Ứng dụng Silica và Nano Silica từ Trấu".

Én Xanh 2017_Tọa đàm Sáng kiến Kinh doanh vì Cộng đồng
Én Xanh 2017_Tọa đàm Sáng kiến Kinh doanh vì Cộng đồng

Nằm trong kế hoạch lan tỏa tinh thần Én Xanh trên cả nước, đồng thời gợi mở những hướng khởi nghiệp, khởi sự kinh doanh khác, CSIP phối hợp cùng CLB Quản Trị & Khởi Nghiệp sẽ tổ chức một sự kiện Giới thiệu chương trình Én Xanh tại Thành phố Hồ Chí Minh cùng Tọa đàm “Sáng kiến kinh doanh vì cộng đồng”. - Thời gian: 8h30 - 11h30, Thứ Sáu, ngày 14/7/2017 - Địa điểm: Hub Cafe’, Saigon Innovation Hub, 273 Điện Biên Phủ, P7, Q3, Tp. HCM

Muốn đương đầu với biến đổi khí hậu ư, hãy cho những bé gái đến trường.
Muốn đương đầu với biến đổi khí hậu ư, hãy cho những bé gái đến trường.

Nếu tôi hỏi bạn kể tên những cách hiệu quả nhất trong cuộc chiến chống lại thay đổi khí hậu, bạn sẽ trả lời thế nào? Lắp đặt những tấm pin năng lượng mặt trời trên mái? Xây dựng tua bin gió ? Hay là dùng xe chạy điện ?

Thế còn việc giáo dục các bé gái thì sao?

Sống Xanh trên Facebook

Nhập email để nhận hoặc hủy bản tin Sống Xanh

Liên kết

  

   

     

 

 

 

 

Liên kết khác